

作品包括:
Word版设计说明书1份
CAD版本图纸,共17张
UG三维图一套
摘要
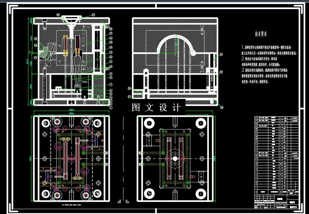
这一次设计的模具是根据实物选择题目,查看实物的结构,分析别人这样设计的原因,从而提高自己,这次设计先查看一些模具的资料,发现目前模具行业用的软件类型.一般使用UG与cad结合的方式,前期先使用cad软件排位,进行模具的布局,使导向机构,成型机构,冷却机构,顶出机构在模具里面合理的布局,做到不干涉,还能节省模具的空间,降低模具的成本,一般模具都会使用标准模架,国内的模具的标准模架一般是龙记模架比较多.
温馨提示:
1、题目前面的备注【字母数字编号】为本站整理分类的编号,与课题内容无关,请选题时忽视;
2、若题目上备注三维,则表示文件里包含三维源文件,由于三维组成零件数量较多,为保证预览截图的简洁性,本站将三维文件夹进行了打包。三维及CAD预览截图,均为本站电脑打开软件进行截图的,保证能够打开,下载原件超高清,下载后解压即可;
3、本站所有资源如无特殊说明,都需要本地电脑安装Office2007。图纸软件为AutoCAD,PROE,UG,SolidWorks,CATIA等;
4、本站所有图文资料仅供用户学习参考,不作为任何商用或其他用途;
5、本站不保证下载资源的准确性、安全性和完整性, 不包修改,不支持退换,同时也不承担用户因使用这些下载资源对自己和他人造成任何形式的伤害或损失;
6、 下载文件中如有侵权或不适当内容,请与我们联系,我们立即纠正。