

作品包括:
Word版设计说明书1份
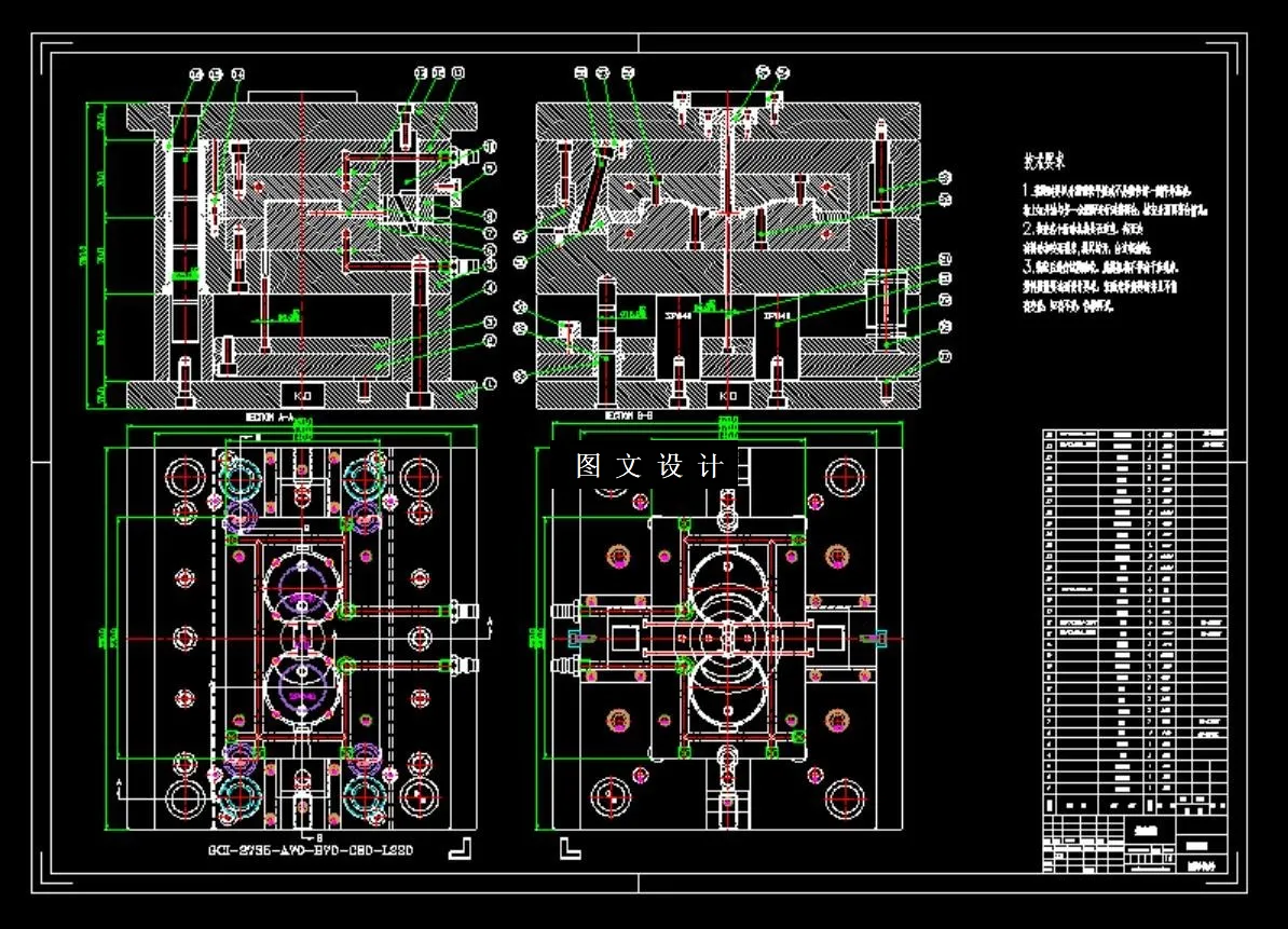
CAD版本图纸,共15张
UG三维图一套
摘要
本次设计是关于水杯上盖注塑模具,分析盖子的外形特征以及工艺要求,合理选用材料的种类,对产品进行造型设计,选定型腔布置以及浇口种类,最终确定模具结构,以及对成型零件的计算,注射机的选用等.采用一模两腔 定模隧道滑块侧抽芯 顶针顶出 假三板模的结构。
温馨提示:
1、题目前面的备注【字母数字编号】为本站整理分类的编号,与课题内容无关,请选题时忽视;
2、若题目上备注三维,则表示文件里包含三维源文件,由于三维组成零件数量较多,为保证预览截图的简洁性,本站将三维文件夹进行了打包。三维及CAD预览截图,均为本站电脑打开软件进行截图的,保证能够打开,下载原件超高清,下载后解压即可;
3、本站所有资源如无特殊说明,都需要本地电脑安装Office2007。图纸软件为AutoCAD,PROE,UG,SolidWorks,CATIA等;
4、本站所有图文资料仅供用户学习参考,不作为任何商用或其他用途;
5、本站不保证下载资源的准确性、安全性和完整性, 不包修改,不支持退换,同时也不承担用户因使用这些下载资源对自己和他人造成任何形式的伤害或损失;
6、 下载文件中如有侵权或不适当内容,请与我们联系,我们立即纠正。