

作品包括:
Word版说明书1份,共27页,约11000字
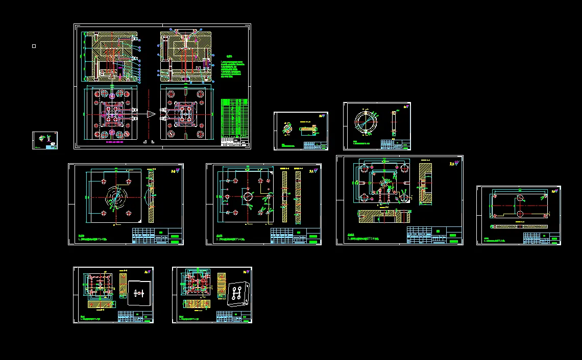
CAD版本图纸,共10张
UG三维图一套
![1750139942305823.webp T)`UKW8[)T`8ZLS$BR]@]V8.webp](/static/upload/image/20250617/1750139942305823.webp)
摘要
本文主要介绍的是限烟器套注塑模具的设计方法。首先分析了限烟器套制件的工艺特点,包括材料性能、成型特性与条件、结构工艺性等,并选择了成型设备。接着介绍了限烟器套注塑模的分型面的选择、型腔数目的确定及布置,重点介绍了浇注系统、成型零件、合模导向机构、脱模机构、定距分型机构以及冷却系统的设计。然后选择标准模架和模具材料,并对注射机的工艺参数进行相关校核。最后对模具的工作原理进行阐述,以及在安装调试过程中可能出现的问题进行总结、分析,并给出了相应的解决方法。
本文论述的限烟器套注塑模具采用两板式结构,即浇注系统凝料和制件在不同的分型面脱出,采用一模四腔的型腔布置,最后利用推杆将制件推出。
关键词:限烟器套;注塑模;两板模;浇注系统;脱模机构;
目录
摘要 1
Abstract 2
绪论 4
1.模塑工艺规程的编制 6
1.1塑件的工艺性分析 7
1.1.1塑件的原材料分析 7
1.1.2塑件的结构和尺寸精度及表面质量分析 8
1.2计算塑件的体积和质量 8
1.3塑件注塑工艺参数的确定 9
1.4塑料成型设备的选取 10
2.注塑模的结构设计 10
2.1分型面选择 10
2.2确定型腔的数目及排列方式 12
2.2.1模腔数量的确定 12
2.2.2型腔的排列方式 13
2.3浇注系统设计 13
2.3.1主流道设计 13
2.3.2分流道设计 14
2.3.3浇口设计 15
2.3.4排气结构的设计 15
2.3.5主流道衬套的选取 16
2.4 导柱的设计 16
2.5推出机构设计 17
2.6成型零件结构设计 17
2.6.1定模板与动模板的设计 17
3.限烟器套注塑模具的有关计算 19
4.模具加热和冷却系统的设计 20
5.注塑机有关参数的校核 22
5.1模具合模时校核 22
5.2模具开模时校核 22
6.绘制模具总装图和非标零件工作图 23
6.1本模具总装图和非标零件工作图见附图 23
6.2本模具的工作原理 23
结论 23
致谢 24
参考文献 25
温馨提示:
1、题目前面的备注【字母数字编号】为本站整理分类的编号,与课题内容无关,请选题时忽视;
2、若题目上备注三维,则表示文件里包含三维源文件,由于三维组成零件数量较多,为保证预览截图的简洁性,本站将三维文件夹进行了打包。三维及CAD预览截图,均为本站电脑打开软件进行截图的,保证能够打开,下载原件超高清,下载后解压即可;
3、本站所有资源如无特殊说明,都需要本地电脑安装Office2007。图纸软件为AutoCAD,PROE,UG,SolidWorks,CATIA等;
4、本站所有图文资料仅供用户学习参考,不作为任何商用或其他用途;
5、本站不保证下载资源的准确性、安全性和完整性, 不包修改,不支持退换,同时也不承担用户因使用这些下载资源对自己和他人造成任何形式的伤害或损失;
6、 下载文件中如有侵权或不适当内容,请与我们联系,我们立即纠正。