

作品包括:
Word版说明书1份,共38页,约12000字
CAD版本图纸,共14张
UG三维图一份

摘要
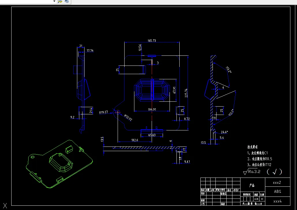
这次的毕业设计的内容是汽车内饰板塑料注射模具设计。
注射成形的过程是把塑料原料放入料筒中经过加热熔融塑化成为黏流态的流体,用柱塞或螺杆的高压推动下,使熔体通过喷嘴以较高压力注入模具的型腔中,经过冷却、凝固阶段,冷却定形后,然后开模分型得成形塑件,得到塑料制品。
塑料模具注射成形的最大特点是:成形同期短,能一次成形外形复杂、尺寸精密等的塑料工件;对各种塑料的适应性强;生产效率高,产品质量稳定,易于实现自动化生产。
设计中主要进行的工作有首先是对塑料进行工艺性能的分析并画出塑件零件图,以及主流道的设计、模具型腔的分部以及型腔位置的选择,并要画出它们的零件图,模架的选择和校核、注塑机的选取和校核等,而其中最重要的一部就是对模具结构中型腔、型芯各径向尺寸和高度尺寸的计算,这些工作都要在查阅有关书籍后进行,总的设计,最后要画出模具设计的总装配图,并要对模具进行装配和试模,对其中出现的问题对模具进行改进,直到最后的零件符合设计要求。
关键词:汽车内饰板;注射模具;型芯型腔计算
目 录
1.1 我国塑料模具的发展现状 1
1.2 国外塑料模的发展状况 2
2 汽车内饰板注塑成型工艺分析 4
2.1塑件分析 4
2.1.1 汽车内饰板结构分析 4
2.1.2精度等级分析和表面质量 5
2.2 汽车内饰板材料的选取 5
2.3 ABS成型工艺参数 5
2.3.1ABS塑料主要的性能指标 6
2.3.2 ABS的注射成型工艺参数: 6
3 成型方案的确定 7
3.1型腔的排列 8
型腔排列 8
3.2分型面选取 8
4 注射机型号的确定 9
5 模架的选取 10
6 成型零件设计及工作尺寸的计算 11
6.1成型零件设计 11
6.2 型腔尺寸的计算 12
型腔深度尺寸计算 12
6.3型芯尺寸的计算 12
型芯高度尺寸计算: 13
7 浇注系统的设计 14
7.1主流道设计 14
7.2分流道的布置 15
7.3浇口的设计 16
8 抽芯机构的设计 18
8.1抽芯机构的选择 18
8.2 斜推杆的设计 19
8.2.1 抽芯距计算 19
8.2.2 斜推杆的设计 20
8.3斜导柱分型与抽芯机构 21
8.3.1 抽芯机构的计计算 21
(1)抽芯距的计算 21
(2)抽心力的计算 21
8.3.2 斜导柱的结构尺寸设计 22
8.3.3滑块的设计 22
8.32.4 楔紧块的设计 23
8 推出机构的设计 24
8.1脱模机构的原则 24
8.2脱模力的计算 24
8.3推杆的设计 25
8.4 推杆的布置 25
9.温度调节系统和排气系统的设计 26
9.1温度调节系统的设计 26
9.2 排气系统的设计 27
10 注塑机的相关参数校核 28
10.1注射量的校核 28
10.2锁模力的校核 28
10.3模具闭合高度的校核 28
10.4模具开模行程校核 28
11模具装配图及工作原理 29
模具动作过程 29
12总结 30
参考文献 31
致 谢 32
温馨提示:
1、题目前面的备注【字母数字编号】为本站整理分类的编号,与课题内容无关,请选题时忽视;
2、若题目上备注三维,则表示文件里包含三维源文件,由于三维组成零件数量较多,为保证预览截图的简洁性,本站将三维文件夹进行了打包。三维及CAD预览截图,均为本站电脑打开软件进行截图的,保证能够打开,下载原件超高清,下载后解压即可;
3、本站所有资源如无特殊说明,都需要本地电脑安装Office2007。图纸软件为AutoCAD,PROE,UG,SolidWorks,CATIA等;
4、本站所有图文资料仅供用户学习参考,不作为任何商用或其他用途;
5、本站不保证下载资源的准确性、安全性和完整性, 不包修改,不支持退换,同时也不承担用户因使用这些下载资源对自己和他人造成任何形式的伤害或损失;
6、 下载文件中如有侵权或不适当内容,请与我们联系,我们立即纠正。