

作品包括:
Word版说明书1份,共33页,约18000字
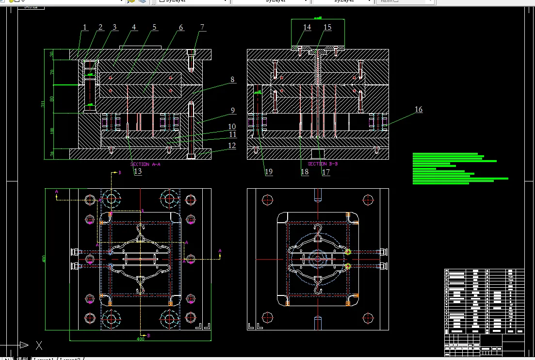
CAD版本图纸,共9张
UG三维图一份
![1750569652439689.webp J615]MZU30HNH1@$8D7EGCG.webp](/static/upload/image/20250622/1750569652439689.webp)
摘要
在现在的生活中,塑料产品可以说是琳琅满目,大部分的衣架都属于塑料制品,而如何才能提高塑料制品的生产效率呢。本次设计课题便是围绕这一主题展开。在该塑料模具设计论文中,系统的阐述了塑料衣架模具的整个设计流程,其中主要包括以下几大模块:设计背景及工艺的分析,注射机的选型及工艺参数的确定,浇注系统、成型零部件、冷却系统、脱模机构等的设计以及最后对该模具进行简单的分析等。
在本模具的具体设计过程中,根据塑料制品的外观要求,了解塑件的用途,分析塑件的工艺性、尺寸要求以及尺寸精度等技术要求,经讨论分析,最终对该模具采用一模2腔,侧浇口进料;经过对各参数的多次校核,最终选择了型号为XS-ZY-125的注射机;通过CAD和UG绘制二维总装图、零件图以及模具3D图;并附上论文说明,系统地运用简要文字、简明示意图以及计算等分析塑件,从而对该塑件作出合理的模具设计。
【关键词】 塑料衣架 注塑模 模具设计
目录
引 言 1
第一章 设计背景 2
1.1 塑料简介 2
1.2 注塑成型 2
1.3 注塑模 2
第二章 工艺分析 4
2.1 塑件分析 4
2.1.1 塑件的视图 4
2.1.2 塑件的尺寸及精度 5
2.1.3 塑件表面粗糙度 5
2.2 ABS材料分析 5
2.2.1 ABS材料的基本特性 5
2.2.2 ABS材料的成型性能 6
2.2.3 ABS材料的主要用途 6
2.3 塑件的工艺分析 6
2.3.1 脱模斜度 6
2.3.2 塑件的壁厚 6
2.3.3 塑件的圆角 6
2.3.4 孔 7
2.4 注射成型工艺过程分析 7
2.5 型腔数目的确定 8
2.6 分型面的选择 8
2.6.1 分型面的设计 8
2.6.2 型腔的布局 8
第三章 注射机选型及确定工艺参数 10
3.1 参数计算 10
3.1.1 计算塑件的一次注射量 10
3.1.2 计算塑件的锁模力 10
3.2 确定成型工艺参数 10
3.2.1确定热塑性塑料的成型时的工艺参数 10
3.2.2 确定注射机的主要计算参数 11
3.3模架的选用 12
3.4注射机主要参数的校核 12
3.4.1 最大注射压力的校核 12
3.4.2 最大注射量的校核 12
3.4.3 模具闭合高度的校核 12
第四章 浇注系统的设计 13
4.1 确定浇注系统的原则 13
4.2 主流道的设计 13
4.3分流道的设计 14
4.4浇口的设计 15
5.1 成型零部件结构设计 16
5.1.1 凹模的设计 16
5.1.2 凸模的设计 16
5.2 成型零部件工作尺寸的计算 17
第六章 冷却系统的设计 19
6.1 模具温度调节系统概述 19
6.2 温度调节对塑件质量的影响 19
6.3 模具冷却系统的组成及目的 19
6.4 模具冷却系统设计原则 19
6.5 模具的冷却类型 20
6.5.1 冷却水道的联结方式 20
6.5.2 型腔的冷却形式 20
6.5.3型芯的冷却形式 21
第七章 脱模机构的设计 22
7.1 脱模机构的选用原则 22
7.2 脱模机构类型的选择 22
7.3 推杆机构具体设计 22
第八章 排气系统的设计 23
8.1 排气的概述 23
8.2 排气的类型 23
第九章 模具的分析 25
9.1 模具材料的选用 25
10.1.1 成型零件材料的选用 25
10.1.2 注射模材料的选用 25
10.2模具经济性的分析 26
结 论 28
致 谢 29
参考文献 30
温馨提示:
1、题目前面的备注【字母数字编号】为本站整理分类的编号,与课题内容无关,请选题时忽视;
2、若题目上备注三维,则表示文件里包含三维源文件,由于三维组成零件数量较多,为保证预览截图的简洁性,本站将三维文件夹进行了打包。三维及CAD预览截图,均为本站电脑打开软件进行截图的,保证能够打开,下载原件超高清,下载后解压即可;
3、本站所有资源如无特殊说明,都需要本地电脑安装Office2007。图纸软件为AutoCAD,PROE,UG,SolidWorks,CATIA等;
4、本站所有图文资料仅供用户学习参考,不作为任何商用或其他用途;
5、本站不保证下载资源的准确性、安全性和完整性, 不包修改,不支持退换,同时也不承担用户因使用这些下载资源对自己和他人造成任何形式的伤害或损失;
6、 下载文件中如有侵权或不适当内容,请与我们联系,我们立即纠正。