

作品包括:
Word版说明书1份,共40页,约17000字
CAD版本图纸,共4张
摘要
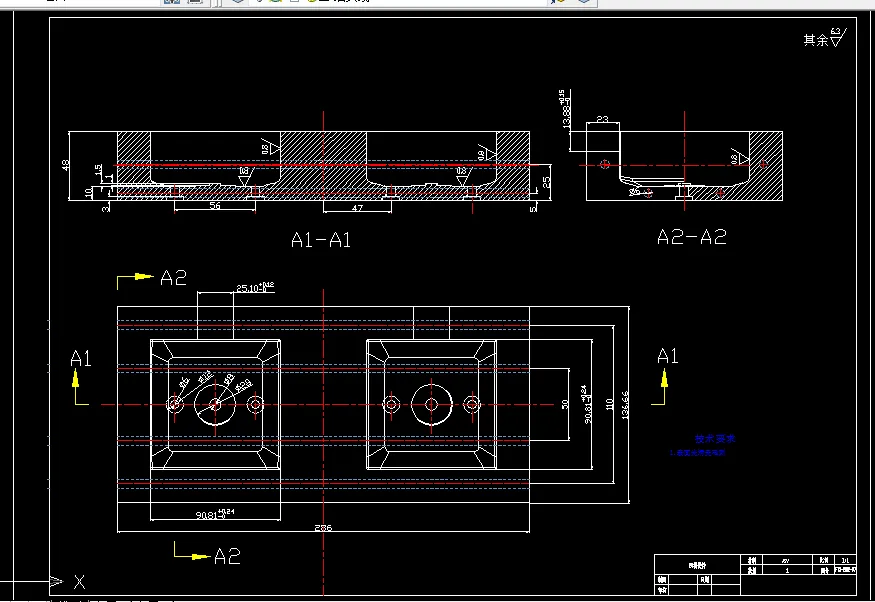
本塑件是风扇调速器上盖,为盒类结构,较为简单。内表面为哑光,生产批量大,为了保证生产批量,提高生产效率以及降低生产成本,采用一模两腔成型结构。该模具的设计特点是:为了满足中小型塑件的成型要求,采用了侧浇口浇注系统、一模两腔的结构,为了保证塑件的质量,两腔均衡地布置在两侧。采用一次分型,一次推出推杆推出机构,使模具结构得到简化。利用Pro/E、AutoCAD等计算机辅助设计软件对塑件进行三维建模,初步模具设计,以及绘画装配图和零件图,简化了模具设计的过程。
关键词:风扇调速器、模具设计、侧浇口、一模两腔
目录
摘要 I
Abstract II
第一章 绪论 1
1.1引言 1
1.2风扇调速器上盖注塑模具设计的意义 2
1.3风扇调速器上盖注塑模具设计的特点 2
第二章 塑件成型工艺性分析 3
2.1塑件的分析 3
2.1.1外形尺寸 3
2.1.2精度等级 3
2.1.3脱模斜度 3
2.2材料的选择 4
2.3PP的性能分析 4
2.3.1成型性能 4
2.3.2使用性能 4
2.3.3主要用途 5
2.4PP的注射成型工艺过程及工艺参数 5
2.4.1注射成型过程 5
2.4.2注射工艺参数 5
第三章 模具结构形式和注射机型号的拟定 7
3.1分型面的确定 7
3.1.1分型面的定义 7
3.1.2分型面位置的确定 7
3.2模具结构形式的确定 8
3.2.1型腔数量的确定 8
3.2.2型腔排列形式的确定 8
3.2.3模具结构形式的确定 8
3.3注射机的选用原则 8
3.4注射机的选择 9
3.4.1注射量的计算 9
3.4.2浇注系统凝料体积的初步计算 9
3.4.3选择注射机 9
3.5注射机的相关参数的校核 9
3.5.1注射压力校核 9
3.5.2锁模力校核 10
第四章 浇注系统的设计 11
4.1主流道的设计 11
4.1.1主流道尺寸 11
4.1.2主流道的凝料体积 11
4.1.3主流道当量半径 11
4.2分流道的设计 12
4.2.1分流道的布置形式 12
4.2.2分流道的长度 12
4.2.3分流道的当量直径 13
4.2.4分流道截面形状 13
4.2.5分流道截面尺寸 13
4.2.6凝料体积 13
4.2.7校核剪切速率 14
4.2.8分流道的表面粗糙度和脱模斜度 14
4.3浇口的设计 14
4.3.1侧浇口尺寸的确定 15
4.4主流道剪切速率的校核 16
4.4.1主流道的体积流量 16
4.4.2主流道的剪切速率 16
4.5冷料穴的设计 16
第五章 成型零件的设计及模具相关计算 17
5.1成型零件的结构设计 17
5.1.1凹模的结构设计 17
5.1.2凸模的结构设计 18
5.2成型零件钢材的选用 19
5.3成型零件工作尺寸的计算 19
5.3.1凹模径向尺寸的计算 20
5.3.2凹模深度尺寸的计算 20
5.3.3型芯径向尺寸的计算 20
5.3.4型芯高度尺寸的计算 21
5.4成型零件尺寸及动模板底部厚度的计算 21
5.4.1凹模侧壁厚度的计算 21
5.4.2动模板底部厚度的计算 22
5.5模架的选取 22
5.5.1各模板尺寸的确定 23
5.5.2模架各尺寸的校核 23
5.6排气系统的设计 23
5.7脱模推出机构的设计 24
5.7.1脱模机构的设计原则 24
5.7.2推出方式的确定 24
5.7.3脱模力的计算 24
5.7.4推杆的直径及数量 25
5.8冷却系统的设计 26
5.8.1冷却系统的计算 26
5.9导向结构的设计 27
结 论 28
致 谢 29
参考文献 29
附件一 30
温馨提示:
1、题目前面的备注【字母数字编号】为本站整理分类的编号,与课题内容无关,请选题时忽视;
2、若题目上备注三维,则表示文件里包含三维源文件,由于三维组成零件数量较多,为保证预览截图的简洁性,本站将三维文件夹进行了打包。三维及CAD预览截图,均为本站电脑打开软件进行截图的,保证能够打开,下载原件超高清,下载后解压即可;
3、本站所有资源如无特殊说明,都需要本地电脑安装Office2007。图纸软件为AutoCAD,PROE,UG,SolidWorks,CATIA等;
4、本站所有图文资料仅供用户学习参考,不作为任何商用或其他用途;
5、本站不保证下载资源的准确性、安全性和完整性, 不包修改,不支持退换,同时也不承担用户因使用这些下载资源对自己和他人造成任何形式的伤害或损失;
6、 下载文件中如有侵权或不适当内容,请与我们联系,我们立即纠正。