

作品包括:
Word版说明书1份,共47页,约23000字
CAD版本图纸,共4张
摘 要
应用Pro/ENGINEER在模具设计的应用,和在Pro/ENGINEER环境进行塑料模具设计的基本流程和方法,分析了电磁炉底座塑件的结构特点及其成型材料的成型特征,利用Pro/ENGINEER设计一种防油、防水、防尘电磁炉底座的注射模具结构。模拟最优方案,节省模具设计的时间。
关键词:电磁炉底座 、注射模 、模具设计、Pro/ENGINEER的应用
目录
摘 要 I
Abstract II
第一章 绪论 1
1.1 国内模具工业的现状 1
1.2 模具工业的发展趋势。 1
1.3电磁炉的地位及本设计的内容特点 2
1.3.1电磁炉的地位 2
1.3.2 本设计的内容 2
第二章 Pro/ENGINEER的简介 2
2.1 Pro/ENGINEER在模具设计中的应用 2
2.1.1 Pro/ENGINEER软件的集成制造技术 2
2.1.2 Pro/ENGINEER的并行工程技术 2
2.1.3 Pro/ENGINEER的注塑模具设计专家(EMX) 3
2.1.4 Pro/ENGINEER的注塑模设计功能 3
2.2 模具设计基本流程和基本方法 4
2.2.1模具设计基本流程 4
2.2.2 模具设计基本方法 4
第三章 塑件的成型工艺分析 6
3.1塑件的分析 6
3.2 塑料材料的成型特性 6
3.2.1 基本特性 6
3.2.2 主要用途 7
3.2.3 成型特点 7
3.3 ABS塑料的注射过程及工艺参数 7
3.3.1 注射成型过程 7
3.3.2 ABS的工艺参数 7
第四章 电磁炉底座模具设计 9
4.1注射模的基本结构和分类 9
4.1.1注射模的基本结构 9
4.1.2模具的分类 9
4.2分型面的选择 9
4.2注射机的选择 11
4.2.1注射机型号的确定 11
4.2.2注射机的相关参数的校核 12
4.3浇注系统的设计 13
4.3.1 主流道的设计 13
4.3.2 浇口的设计 14
4.3.3 浇口位置的选择 14
4.3.4 冷料穴的设计 15
4.4 排气系统的设计 16
4.5 成型零件的设计计算 16
4.5.1凹模的结构设计 16
4.5.2 凸模的结构设计 16
4.5.3 成型零件钢材的选用 16
4.5.4 成型零件的工作尺寸计算 16
4.5.5 模架的选取和模板的校核 20
4.5.6 脱模机构的设计 22
4.5.7合模导向机构的设计 25
4.5.8 温度调节系统的设计计算 25
4.5.9 安装螺孔尺寸 30
4.5.10 导向与定位结构的设计 30
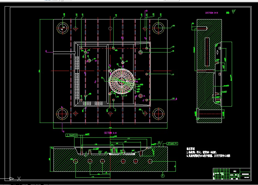
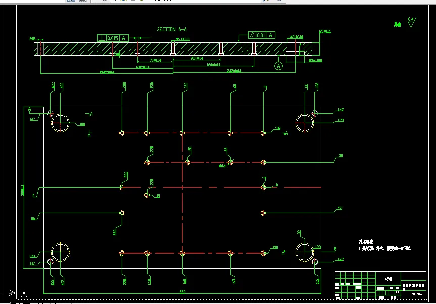
4.5.11 总装图和零件图的绘制 30
设计总结 31
致 谢 32
参考文献 33
附件 34
Developing Trend for Plastic and Plastic Mold 34
译文 39
塑胶及塑胶模具的发展趋势 39
温馨提示:
1、题目前面的备注【字母数字编号】为本站整理分类的编号,与课题内容无关,请选题时忽视;
2、若题目上备注三维,则表示文件里包含三维源文件,由于三维组成零件数量较多,为保证预览截图的简洁性,本站将三维文件夹进行了打包。三维及CAD预览截图,均为本站电脑打开软件进行截图的,保证能够打开,下载原件超高清,下载后解压即可;
3、本站所有资源如无特殊说明,都需要本地电脑安装Office2007。图纸软件为AutoCAD,PROE,UG,SolidWorks,CATIA等;
4、本站所有图文资料仅供用户学习参考,不作为任何商用或其他用途;
5、本站不保证下载资源的准确性、安全性和完整性, 不包修改,不支持退换,同时也不承担用户因使用这些下载资源对自己和他人造成任何形式的伤害或损失;
6、 下载文件中如有侵权或不适当内容,请与我们联系,我们立即纠正。