

作品包括:
Word版设计说明书1份
CAD版本图纸,共15张
UG三维图一份
摘要
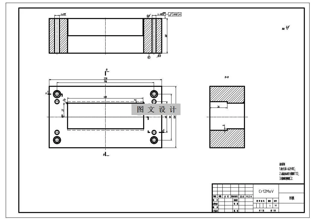
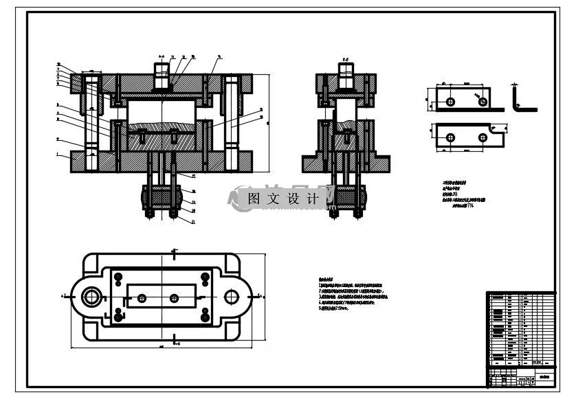
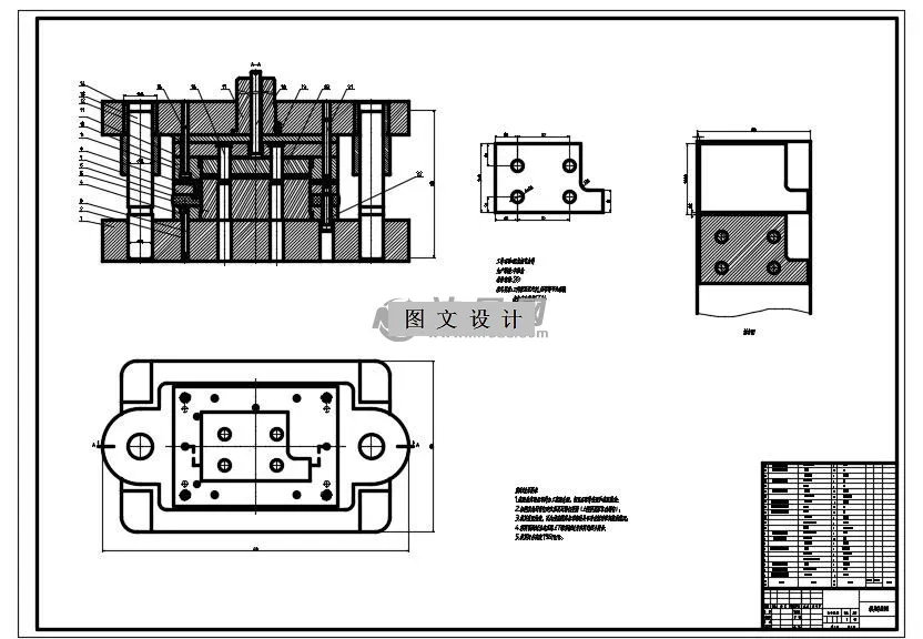
本课题名称为靠板弯曲工艺模具设计,工件所涉及落料、冲孔、弯曲工艺等。工件尺寸较大,材料厚度较大,模具设计过程中需要考虑影响弯曲成型的因素,并做好相对应的防范措施。复合模具在冲压生产用运用比较广泛,模具陈本低廉,具有至少两个或多个工艺,并在压力机的一次进程中,在同一工位上完成两个或者两个以上冲压工序的冲压方法。因复合模具同时完成多个工序,冲压出的工件精度较高;单工序模具在实际生产中,所需要设计周期短,模具耗材少,尺寸精度高等有点。结合课题零件,分析其结构组成、尺寸精度、拟定冲压工艺方案,确定模具结构,计算相关参数,设计模具零部件等。
温馨提示:
1、题目前面的备注【字母数字编号】为本站整理分类的编号,与课题内容无关,请选题时忽视;
2、若题目上备注三维,则表示文件里包含三维源文件,由于三维组成零件数量较多,为保证预览截图的简洁性,本站将三维文件夹进行了打包。三维及CAD预览截图,均为本站电脑打开软件进行截图的,保证能够打开,下载原件超高清,下载后解压即可;
3、本站所有资源如无特殊说明,都需要本地电脑安装Office2007。图纸软件为AutoCAD,PROE,UG,SolidWorks,CATIA等;
4、本站所有图文资料仅供用户学习参考,不作为任何商用或其他用途;
5、本站不保证下载资源的准确性、安全性和完整性, 不包修改,不支持退换,同时也不承担用户因使用这些下载资源对自己和他人造成任何形式的伤害或损失;
6、 下载文件中如有侵权或不适当内容,请与我们联系,我们立即纠正。