

作品包括:
Word版设计说明书1份
CAD版本图纸,共12张
摘要
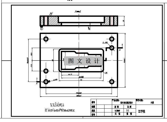
该制件的模具为复合模。通过以上的设计,可得到模具装配图。模具的上模部分由上模座、垫板、凸模固定板、凸模及落料凹模等组成。上模座、垫板、落料凹模及凸模固定板用4个M10×75mm的圆柱头内六角螺钉和2个 10×70mm的圆柱销定位。 螺钉选取:M10×60mm的标准件,采用45钢。 圆柱销选取: 10×80mm的标准件,采用45钢。 下模部分由下模座、卸料板、橡胶及凸凹模固定板等组成。卸料方式是采用的弹性卸料。下模座、凸凹模固定板用4个M10×60mm的圆柱头内六角螺钉和2个 10×50mm的圆柱销定位,下模座、凸凹模固定板、橡胶及卸料板上安装2个M10×75mm卸料螺钉进行卸料。 螺钉选取:M12×50mm的标准件,采用45钢。 圆柱销选取: 12×80mm的标准件,采用45钢。 卸料螺钉选取:M12×60mm的标准件,采用45钢。 冲孔废料由漏料孔漏出。1460354
温馨提示:
1、题目前面的备注【字母数字编号】为本站整理分类的编号,与课题内容无关,请选题时忽视;
2、若题目上备注三维,则表示文件里包含三维源文件,由于三维组成零件数量较多,为保证预览截图的简洁性,本站将三维文件夹进行了打包。三维及CAD预览截图,均为本站电脑打开软件进行截图的,保证能够打开,下载原件超高清,下载后解压即可;
3、本站所有资源如无特殊说明,都需要本地电脑安装Office2007。图纸软件为AutoCAD,PROE,UG,SolidWorks,CATIA等;
4、本站所有图文资料仅供用户学习参考,不作为任何商用或其他用途;
5、本站不保证下载资源的准确性、安全性和完整性, 不包修改,不支持退换,同时也不承担用户因使用这些下载资源对自己和他人造成任何形式的伤害或损失;
6、 下载文件中如有侵权或不适当内容,请与我们联系,我们立即纠正。