

作品包括:
Word版设计说明书1份
CAD版本设计模具图纸
UG三维图一份
摘要
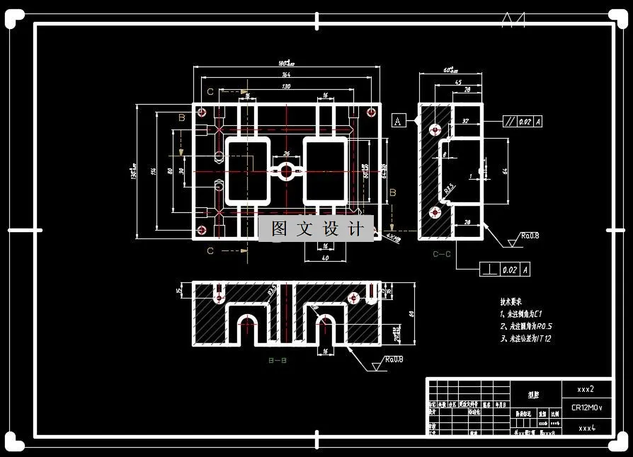
本次设计采用的是点浇口的三板模的模架,所以模具的张开需要一定的顺序来控制,根据点浇口的张开原理, 首先张开的,定模板和中间板,主要的功能就是为了使浇口与塑件断开,张开的距离就由定距拉杆来限制, 其实,是定模座板与中间板张开, 主要的作用就是使主流道从浇口套里面脱出, 致使整个浇注系统全部脱离模具,最后,是动模板和定模板的张开,使模具进行分型,这个时候,斜导柱带动滑块完成侧向抽芯,同时 推出机构将塑件推出。在这个过程中,起到关键作用的就是,定距拉杆,与模胚开闭器。
温馨提示:
1、题目前面的备注【字母数字编号】为本站整理分类的编号,与课题内容无关,请选题时忽视;
2、若题目上备注三维,则表示文件里包含三维源文件,由于三维组成零件数量较多,为保证预览截图的简洁性,本站将三维文件夹进行了打包。三维及CAD预览截图,均为本站电脑打开软件进行截图的,保证能够打开,下载原件超高清,下载后解压即可;
3、本站所有资源如无特殊说明,都需要本地电脑安装Office2007。图纸软件为AutoCAD,PROE,UG,SolidWorks,CATIA等;
4、本站所有图文资料仅供用户学习参考,不作为任何商用或其他用途;
5、本站不保证下载资源的准确性、安全性和完整性, 不包修改,不支持退换,同时也不承担用户因使用这些下载资源对自己和他人造成任何形式的伤害或损失;
6、 下载文件中如有侵权或不适当内容,请与我们联系,我们立即纠正。