

作品包括:
Word版说明书1份,共44页,约14000字
CAD版本图纸,共8张
UG三维图一份

摘 要
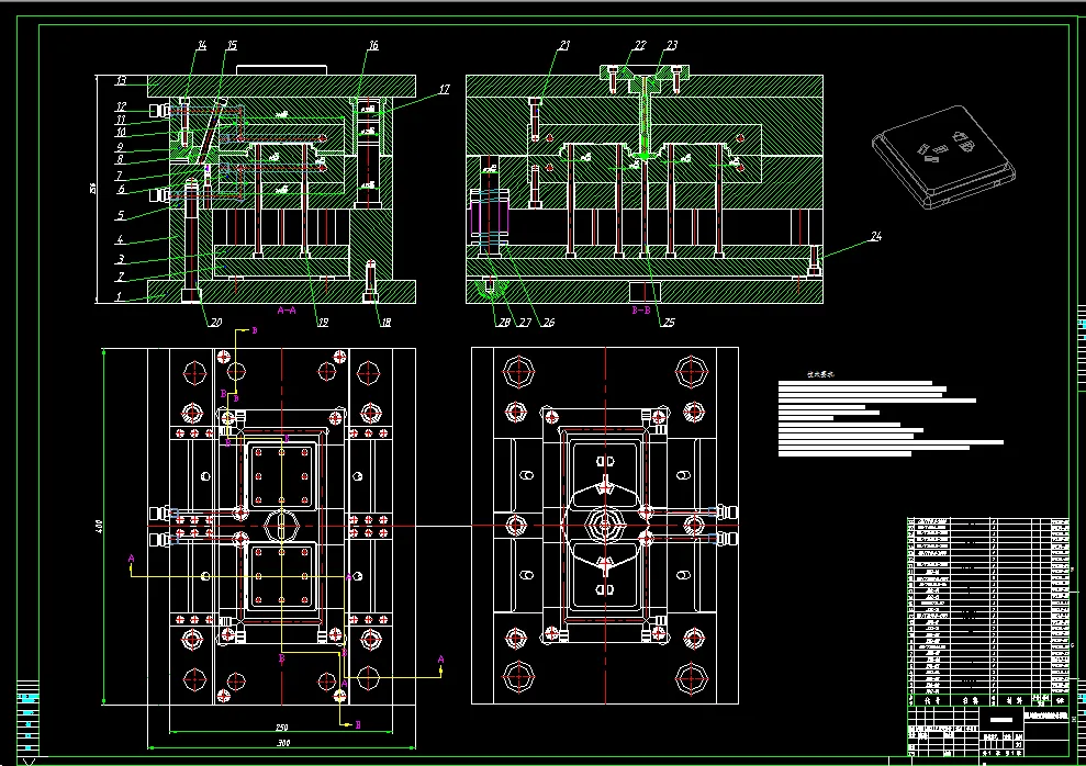
介绍了在AUTOCAD、UG环境下,塑料墙壁插座外壳的注射模具设计与加工过程。着重分析了设计的整个流程,包括产品二维和三维造型及材料性能分析。然后进行成型零件设计、侧向分型与抽芯机构设计等部分,以及注射成型设备的选用和成型工艺参数的确定,在此基础上对模具零部件进行细部设计修改。塑料墙壁插座外壳采用侧浇口,利用外侧抽芯,推杆顶料,推件板完成脱模,该模具结构紧凑,工作可靠,生产效率高。最后分析了模具的工作过程,对模具结构与注射机的匹配进行了校核。
关键词:注射模具;结构设计;墙壁插座外壳
目录
前 言 3
第1章 绪 论 2
1.1 塑料成型模具在加工工业中的地位 2
1.2 中国塑料模具工业发展现状 3
第2章 塑件的工艺性分析 4
2.1 设计任务 4
2.2 塑件的材料分析 5
2.3 塑件的尺寸精度分析 5
2.4 塑件的表面质量分析 5
2.5 塑件的结构工艺性分析 6
2.5.1 塑件形状分析 6
2.5.2 塑件脱模斜度分析 6
2.5.3 塑件壁厚分析 6
第3章 塑件成型方案的确定 7
3.1 塑件成型方法的确定 7
3.2 分型面及其选择 7
3.3 型腔数目和排列方式的确定 8
3.4 模具结构形式的初步确定 9
3.5 初选注射机 9
3.5.1 塑件体积的计算 9
3.5.2 塑件质量的计算 10
3.5.3 注射机的选择 10
第4章 浇注系统与排气系统的设计 11
4.1 浇注系统的设计 11
4.1.1 浇注系统的组成及设计原则 11
4.1.2 主流道的设计 12
4.1.3 分流道的设计 14
4.1.4 浇口的设计 15
4.2 排气系统的设计 15
第5章 成型零部件设计 16
5.1 成型零件结构的设计 16
5.2 成型零部件的工作尺寸计算 17
第6章 推出机构的设计 19
6.1 推出机构设计的原则 19
6.2 脱模力的计算 19
6.3 脱模方式的确定 20
6.4 推杆的设计 21
第7章 侧向分型与抽芯机构 22
7.1 抽芯距的计算 22
7.2 抽芯力的计算 22
7.3 侧向分型与抽芯机构类型的确定 23
7.4 斜导柱的计算 24
7.4.1 斜导柱设计的形式 24
7.4.2 斜导柱倾斜角的选择 24
7.4.3 斜导柱直径的计算 25
7.4.4 斜导柱长度的计算 25
7.4.5 斜导柱与模具中其他零件的配合关系 26
7.4.6 斜导柱的材料和热处理 26
7.5 滑块的设计 27
7.6 限位装置的设计 28
7.7 楔紧块的设计 29
第8章 模具温度调节系统 30
8.1 模具温度及塑料成型温度 30
8.1.1 模具温度及调节的重要性 30
8.2 冷却系统设计计算 30
8.3 冷却系统的设计 31
第9章 模具结构零部件的设计 32
9.1 模架设计 32
9.3 合模导向机构设计 34
第10章 注射机的校核 35
10.1 最大注射量的校核 35
10.2 锁模力的校核 35
10.3 注射压力的校核 36
10.4 模具安装部分的校核 36
10.5 模具开模行程的校核 36
10.6 模具闭合高度的校核 36
10.7 顶出部分的校核 36
第11章 模具的工作原理 37
11.1 模具的结构组成 37
11.2 模具的工作原理 37
第12章 设计总结 38
参考文献 39
致 谢 40
温馨提示:
1、题目前面的备注【字母数字编号】为本站整理分类的编号,与课题内容无关,请选题时忽视;
2、若题目上备注三维,则表示文件里包含三维源文件,由于三维组成零件数量较多,为保证预览截图的简洁性,本站将三维文件夹进行了打包。三维及CAD预览截图,均为本站电脑打开软件进行截图的,保证能够打开,下载原件超高清,下载后解压即可;
3、本站所有资源如无特殊说明,都需要本地电脑安装Office2007。图纸软件为AutoCAD,PROE,UG,SolidWorks,CATIA等;
4、本站所有图文资料仅供用户学习参考,不作为任何商用或其他用途;
5、本站不保证下载资源的准确性、安全性和完整性, 不包修改,不支持退换,同时也不承担用户因使用这些下载资源对自己和他人造成任何形式的伤害或损失;
6、 下载文件中如有侵权或不适当内容,请与我们联系,我们立即纠正。