

作品包括:
Word版设计说明书1份
CAD版本图纸,共18张
UG三维图一套
摘要
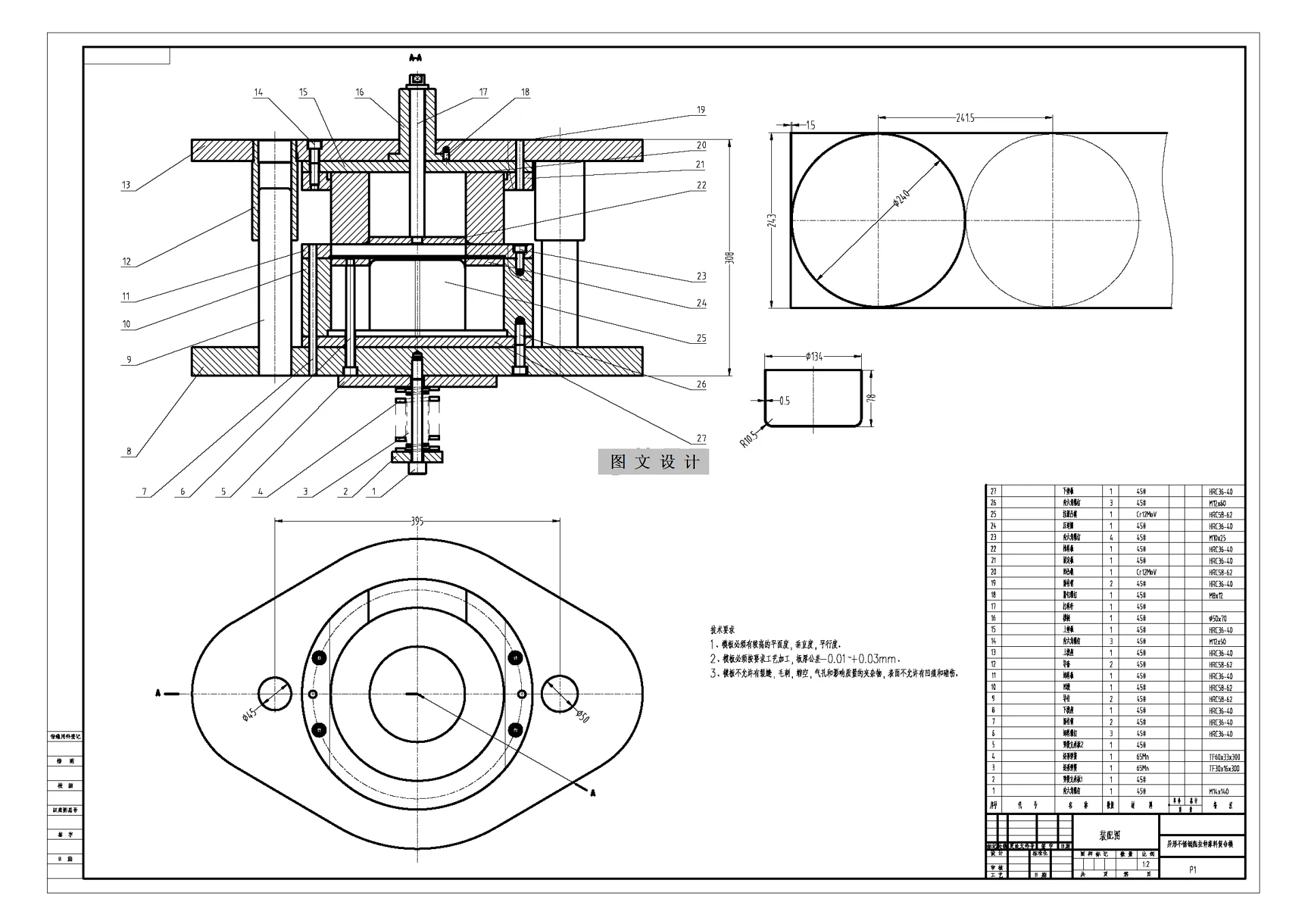
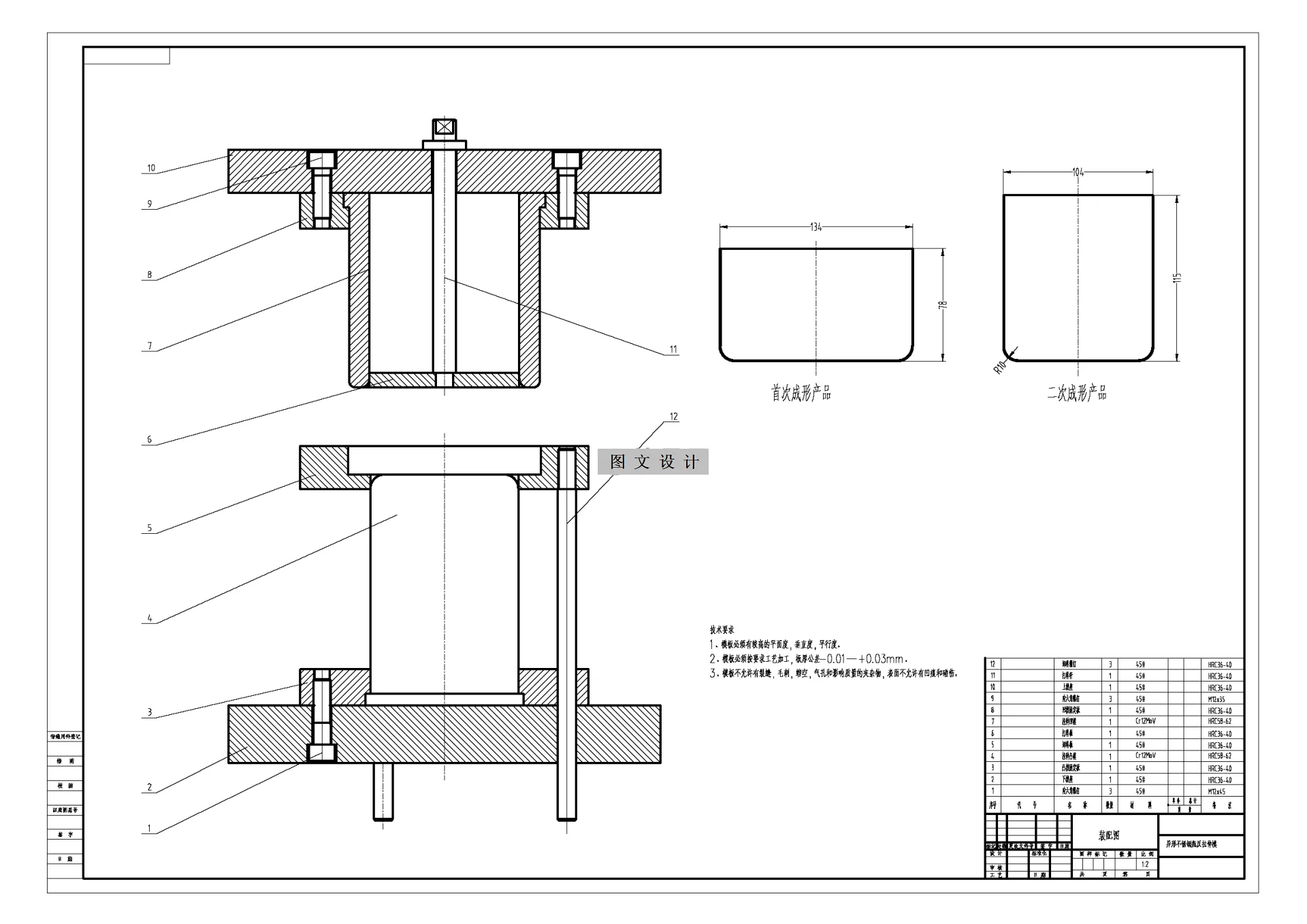
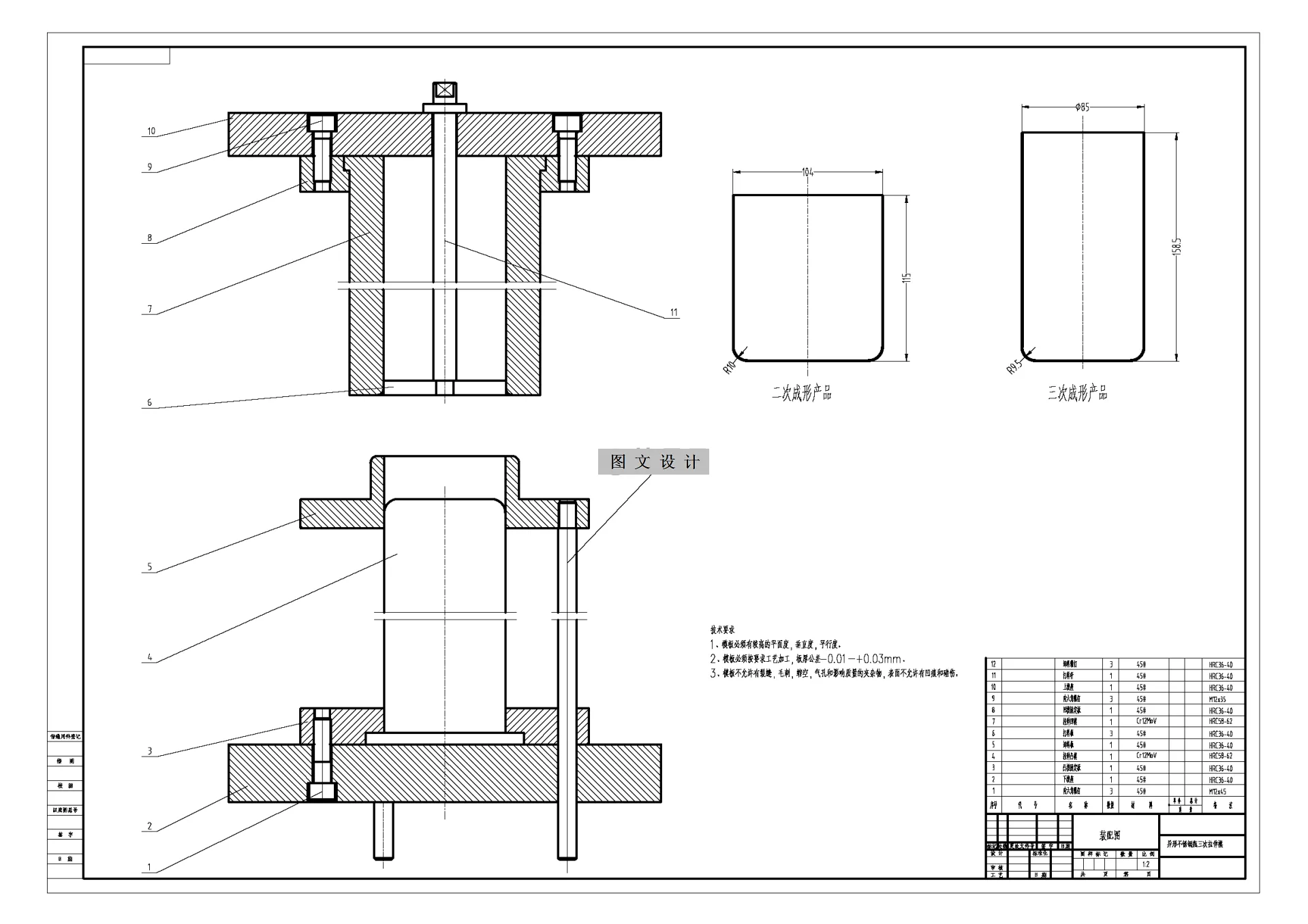
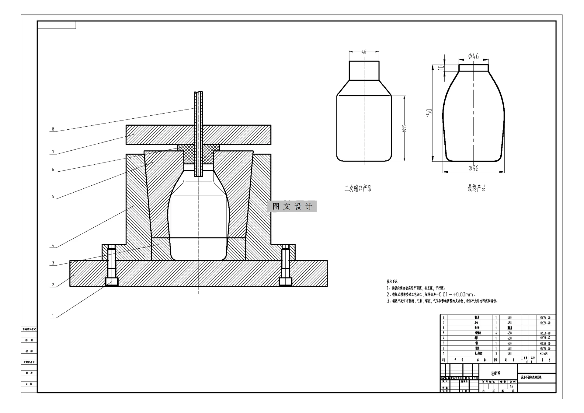
设计首先对冲模的基本成形机理及现状发展趋势做出简要阐释,指出冲模是一种低能耗高效率的产出方式,在综合分析产品工艺性指标及对比不同结构预案后,确定本次工件易采用连续模具的方案进行。 模具设计之前进行了排样结构设计和工艺计算两部分内容。第一部分通过排样参数选用和工件各工位的合理分解排布确定了包含冲裁,冲孔弯曲落料在内的多工位的合理结构,并以此为基础进行了第二部分,主要涵盖材料利用率,基本冲裁力参数,刃口精度公差等几部分的计算与校核,为后续模具结构具体实施打下基础。模具结构设计是在确保总体原则的情况下针对凸模,凹模,以及凸模固定板,辅助部件这几大方向完成了本体参数的设计和选用,最终将他们合理的装配,完成了本次工件级进模结构的设计。最后选用合理的压力设备与模具适配,以满足后续试模的需要。 在此次的设计当中,我翻阅查看了大量的模具设计资料,在异形不锈钢成形模具的设计与应用当中,和以前的设计方法相比较而言,模具的广泛应用,使得产品的质量得到了巨大的提升,模具的创新思路以及要求要紧跟现代化的步伐下,需要与未来的发展相结合。 本次设计的内容为异形不锈钢成形冲压模,完成冲孔、落料、拉深三道工序。使用AUTOCAD软件完成零件的绘制并完成装配图的绘制,进而完成装配工程图和相关的零件图。
温馨提示:
1、题目前面的备注【字母数字编号】为本站整理分类的编号,与课题内容无关,请选题时忽视;
2、若题目上备注三维,则表示文件里包含三维源文件,由于三维组成零件数量较多,为保证预览截图的简洁性,本站将三维文件夹进行了打包。三维及CAD预览截图,均为本站电脑打开软件进行截图的,保证能够打开,下载原件超高清,下载后解压即可;
3、本站所有资源如无特殊说明,都需要本地电脑安装Office2007。图纸软件为AutoCAD,PROE,UG,SolidWorks,CATIA等;
4、本站所有图文资料仅供用户学习参考,不作为任何商用或其他用途;
5、本站不保证下载资源的准确性、安全性和完整性, 不包修改,不支持退换,同时也不承担用户因使用这些下载资源对自己和他人造成任何形式的伤害或损失;
6、 下载文件中如有侵权或不适当内容,请与我们联系,我们立即纠正。