

作品包括:
Word版设计说明书1份
开题报告一份
CAD版本图纸,共9张
UG三维图一份
摘要
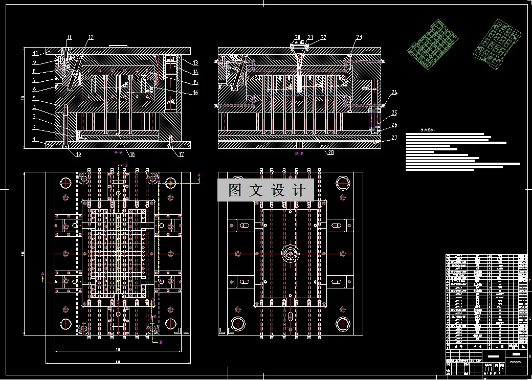
首先对塑料垫板外观特点和结构特点进行分析,确定好材料和模具设计方案,并且选择了合适的型腔数目,为一模一腔,在根据其塑件的体积,初步选择注塑机,确定其型号为HTF530J/TJ,分型面的选择和塑件的外形四面有6处侧凹,设计了6处侧向分型抽芯机构,确定了分型面是在塑件中间最大外形处,选择了浇注形式为直浇口的结构,接着对模具的冷却系统和脱模系统等进行设计分析,确定了直通式冷却和推杆的顶出方式,最后根据已知结构零件尺寸确定好了模架,然后针对设计出来的模具与注塑机进行相关参数校核。本次设计成型零件型芯型腔都采用整体式,材质采用Cr12MoV,CrWMn、淬火+低温回火,硬度60HRC,来保证塑料垫板的质量。
温馨提示:
1、题目前面的备注【字母数字编号】为本站整理分类的编号,与课题内容无关,请选题时忽视;
2、若题目上备注三维,则表示文件里包含三维源文件,由于三维组成零件数量较多,为保证预览截图的简洁性,本站将三维文件夹进行了打包。三维及CAD预览截图,均为本站电脑打开软件进行截图的,保证能够打开,下载原件超高清,下载后解压即可;
3、本站所有资源如无特殊说明,都需要本地电脑安装Office2007。图纸软件为AutoCAD,PROE,UG,SolidWorks,CATIA等;
4、本站所有图文资料仅供用户学习参考,不作为任何商用或其他用途;
5、本站不保证下载资源的准确性、安全性和完整性, 不包修改,不支持退换,同时也不承担用户因使用这些下载资源对自己和他人造成任何形式的伤害或损失;
6、 下载文件中如有侵权或不适当内容,请与我们联系,我们立即纠正。