

作品包括:
Word版设计说明书1份
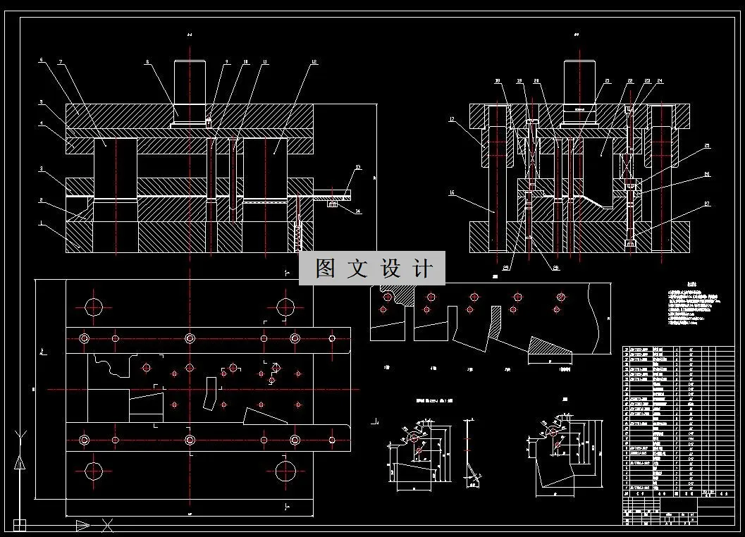
CAD版本图纸,共13张
摘要
本论文设计是对边撑连接片冲压复合模设计,通过对制件的材料,结构,尺寸精度等进行工艺分析。本制件选用材料Q235-A。边撑连接片总体V形弯曲,厚度为mm,有落料冲孔弯曲三个工序,内部两侧有2个圆孔。经过三种成型工艺方案的对比,考虑到生产效率以及精度等因素,决定设计级进模具来成型边撑连接片。设计中应寻求一种合理的排样方案,以实现成本优化;继而对模具进行全面的工艺进行计算,选择最合理的设计方案。工艺的设计和计算包括排样方式的确定以及依据材料性质计算所需冲压力,以确保选用合适的冲压机性型号。对于模具的刃口设计和计算,应选择适当的冲模间隙,以提升模具的耐用性,并确保成品的精准度。在模具设计中,应依据冲模刃口尺寸进行标准件的选择,以实现标准化,并完成装配图及主要构件的设计工作。最后,为了满足生产实际,需选择合适的标准模架,并对压力机和模具的高度进行校核与确定,确保所选压力机能满足边撑连接片级进成型生产要求。
温馨提示:
1、题目前面的备注【字母数字编号】为本站整理分类的编号,与课题内容无关,请选题时忽视;
2、若题目上备注三维,则表示文件里包含三维源文件,由于三维组成零件数量较多,为保证预览截图的简洁性,本站将三维文件夹进行了打包。三维及CAD预览截图,均为本站电脑打开软件进行截图的,保证能够打开,下载原件超高清,下载后解压即可;
3、本站所有资源如无特殊说明,都需要本地电脑安装Office2007。图纸软件为AutoCAD,PROE,UG,SolidWorks,CATIA等;
4、本站所有图文资料仅供用户学习参考,不作为任何商用或其他用途;
5、本站不保证下载资源的准确性、安全性和完整性, 不包修改,不支持退换,同时也不承担用户因使用这些下载资源对自己和他人造成任何形式的伤害或损失;
6、 下载文件中如有侵权或不适当内容,请与我们联系,我们立即纠正。