

作品包括:
Word版设计说明书1份
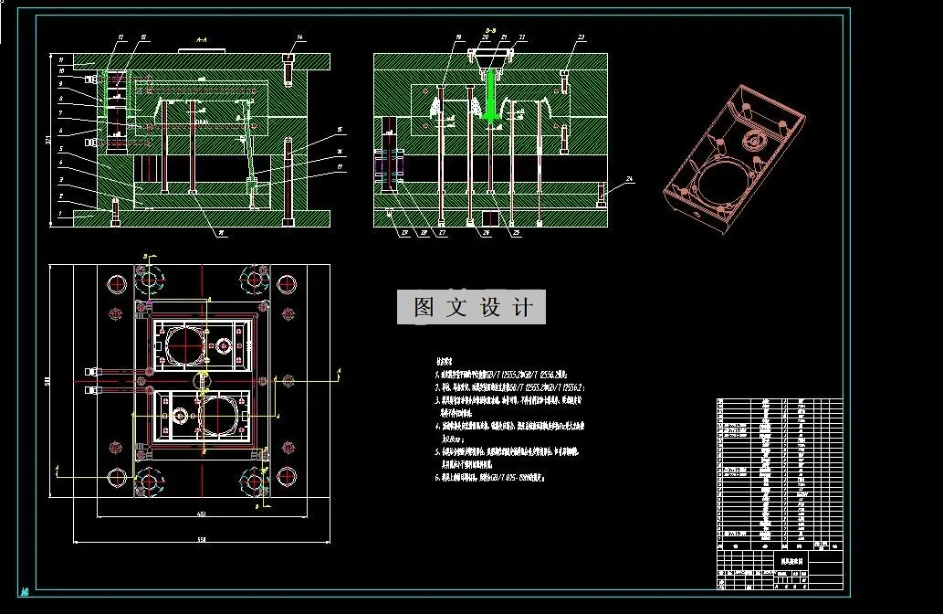
CAD版本图纸,共8张
UG三维图一份
摘要
本课题来源于企业的生产实际,以大量的音箱壳注射模具设计制造为基础,根据多年从事注射模设计制造的经验,总结工厂的生产工程实践成果。研究音箱壳注射模具的整体结构设计,浇注系统中浇道、浇口的形式、位置选择,排溢系统的设计,塑件主要部位的脱模推出方式,以及制造方法和工艺要点。一模两腔,侧浇口,斜顶杆抽芯成型,推杆推出,本资料含有模具装配图、模具三维、多张模具零件图、说明书等等
温馨提示:
1、题目前面的备注【字母数字编号】为本站整理分类的编号,与课题内容无关,请选题时忽视;
2、若题目上备注三维,则表示文件里包含三维源文件,由于三维组成零件数量较多,为保证预览截图的简洁性,本站将三维文件夹进行了打包。三维及CAD预览截图,均为本站电脑打开软件进行截图的,保证能够打开,下载原件超高清,下载后解压即可;
3、本站所有资源如无特殊说明,都需要本地电脑安装Office2007。图纸软件为AutoCAD,PROE,UG,SolidWorks,CATIA等;
4、本站所有图文资料仅供用户学习参考,不作为任何商用或其他用途;
5、本站不保证下载资源的准确性、安全性和完整性, 不包修改,不支持退换,同时也不承担用户因使用这些下载资源对自己和他人造成任何形式的伤害或损失;
6、 下载文件中如有侵权或不适当内容,请与我们联系,我们立即纠正。