

作品包括:
Word设计说明书1份,共42页,约10000字
任务书一份
CAD版本图纸,共9张
UG三维图一套

摘 要
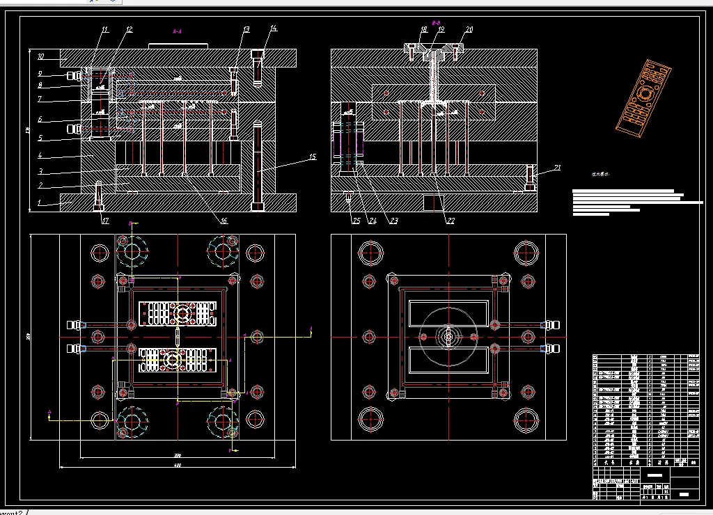
本次毕业设计是为生产遥控器上盖设计一副模具,从多个方面进行了研究,其中重点对塑件的工艺和结构这些方面进行了大量的分析,首先分析了产品的工艺性,之后开始着手设计模具的浇注系统、成型的部分和顶出、冷却等方面的设计。在设计完成后结果显示设计可以满足塑件的加工工艺。在设计过程中,我分别采用了UG和CAD两种软件,其中,前者主要是对遥控器上盖进行造型同时帮助我设计得出了塑件的体积和重量,并对结构型式以及浇注系统、推出机构、型芯型腔的结构设计有很大设计帮助。经过一系列的设计,绘制出了模具的三维,最后导出了工程装配图。
关键词:遥控器上盖;注塑模具;浇注系统;
目 录
摘 要 I
ABSTRACT II
1 绪论 6
1.1研究背景 6
1.2研究设计意义 6
1.3国内外相关研究情况 6
2 工艺方案及分析 8
2.2 尺寸和精度 8
2.3 工件材料 9
2.3.1 工件材料选择 9
2.3.2 ABS主要技术指标 9
2.3.3 注射工艺参数 10
3 模具结构分析 12
3.1 确定型腔数量及其排布方式 12
3.2 模具结构形式的确定 12
本次模具设计的采用单分型面大水口两板模结构图如图: 13
3.3浇注系统设计 14
3.3.1主流道的设计 14
3.3.2分流道的设计 15
3.3.3 浇口的设计 17
3.4冷却系统的设计 19
3.4.2 冷却系统的计算 20
(1)求冷却水的体积流量V 20
(2)冷却时间计算 21
(3)成型周期计算 21
3.5 合模机构的设计 22
3.5.1导向机构的作用: 22
3.5.2导柱的选择 22
3.5.3导套的选择 23
3.6 脱模机构的设计 24
3.6.1推出机构的设计原则 24
3.6.2推出机构的选择 24
3.6.3推杆的设计 24
3.6.4脱模力的计算 25
3.6.5推出机构的布局 25
4 模具设计的有关计算 27
4.1型腔结构设计 27
4.3 成型零部件尺寸计算 28
5工件的体积估算和注射机型号的选择 31
5.1估算零件体积 31
5.2 锁模力 32
5.3 选择注塑机及注塑机的主要参数 32
5.4 注塑机的校核 33
5.4.1 注射量校核 33
6 模具总装图 34
6.1模具工作原理 34
6.2 模具装配图 34
7 结论 35
参考文献 38
致 谢 39
温馨提示:
1、题目前面的备注【字母数字编号】为本站整理分类的编号,与课题内容无关,请选题时忽视;
2、若题目上备注三维,则表示文件里包含三维源文件,由于三维组成零件数量较多,为保证预览截图的简洁性,本站将三维文件夹进行了打包。三维及CAD预览截图,均为本站电脑打开软件进行截图的,保证能够打开,下载原件超高清,下载后解压即可;
3、本站所有资源如无特殊说明,都需要本地电脑安装Office2007。图纸软件为AutoCAD,PROE,UG,SolidWorks,CATIA等;
4、本站所有图文资料仅供用户学习参考,不作为任何商用或其他用途;
5、本站不保证下载资源的准确性、安全性和完整性, 不包修改,不支持退换,同时也不承担用户因使用这些下载资源对自己和他人造成任何形式的伤害或损失;
6、 下载文件中如有侵权或不适当内容,请与我们联系,我们立即纠正。