

作品包括:
说明书一份,共29页,约14000字
CAD版本图纸,共8张
UG三维图一份
摘要
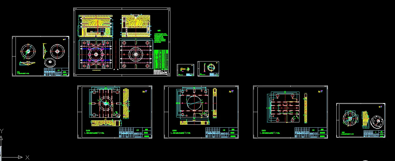
本文主要介绍的是桶盖注塑模具的设计方法。首先分析了桶盖制件的工艺特点,包括材料性能、成型特性与条件、结构工艺性等,并选择了成型设备。接着介绍了桶盖注塑模的分型面的选择、型腔数目的确定及布置,重点介绍了浇注系统、成型零件、合模导向机构、脱模机构、定距分型机构以及冷却系统的设计。然后选择标准模架和模具材料,并对注射机的工艺参数进行相关校核。最后对模具的工作原理进行阐述,以及在安装调试过程中可能出现的问题进行总结、分析,并给出了相应的解决方法。
本文论述的桶盖注塑模具采用两板式结构,即浇注系统凝料和制件在不同的分型面脱出,采用一模一腔的型腔布置,最后利用推板将制件推出。
关键词:桶盖;注塑模;两板模;浇注系统;脱模机构;定距分型机构
目录
摘要 1
Abstract 2
第一章 绪论 4
1.1 选题的依据及意义 4
1.2 国内外研究现状及发展趋势 4
第二章 桶盖工艺性分析 7
2.1 材料性能 7
2.2 成型特性和条件 7
2.3 结构工艺性 8
2.4 零件体积及质量估算 8
2.5 桶盖注塑工艺参数的确定 8
2.6 初选注射机的型号和规格 9
第三章 桶盖注塑模具的结构设计 11
3.1 分型面的选择 11
3.2 确定模具基本结构及模架的选定 12
3.3 确定型腔的数量和布局 12
3.4浇注系统设计 13
3.4.1主流道设计 13
3.4.2 分流道截面设计及布局 14
3.4.3 浇口设计及位置选择 15
3.4.4 浇口套的设计 16
3.5 注塑模成型零部件设计 16
3.5.1 型腔、型芯结构设计 16
3.5.2 成型零件工作尺寸计算 17
3.6 合模导向机构设计 18
3.7 脱模机构设计 18
3.7.1 脱模力计算 19
3.7.2 浇注系统凝料脱出机构 19
3.8冷却系统设计 20
3.9模架及模具材料的选择 21
第四章 注射机相关参数校核 22
4.1 最大注射量的校核 22
4.2 注射压力校核 23
4.3 锁模力校核 23
4.4 模具厚度的校核 23
第五章 模具的工作原理及安装、调试 25
5.1 模具的工作原理 25
5.2 模具的安装 26
5.3 试模 26
5.4 设计总结 27
参考文献 28
致谢 28
温馨提示:
1、题目前面的备注【字母数字编号】为本站整理分类的编号,与课题内容无关,请选题时忽视;
2、若题目上备注三维,则表示文件里包含三维源文件,由于三维组成零件数量较多,为保证预览截图的简洁性,本站将三维文件夹进行了打包。三维及CAD预览截图,均为本站电脑打开软件进行截图的,保证能够打开,下载原件超高清,下载后解压即可;
3、本站所有资源如无特殊说明,都需要本地电脑安装Office2007。图纸软件为AutoCAD,PROE,UG,SolidWorks,CATIA等;
4、本站所有图文资料仅供用户学习参考,不作为任何商用或其他用途;
5、本站不保证下载资源的准确性、安全性和完整性, 不包修改,不支持退换,同时也不承担用户因使用这些下载资源对自己和他人造成任何形式的伤害或损失;
6、 下载文件中如有侵权或不适当内容,请与我们联系,我们立即纠正。