

作品包括:
Word设计说明书1份,共40页,约18000字
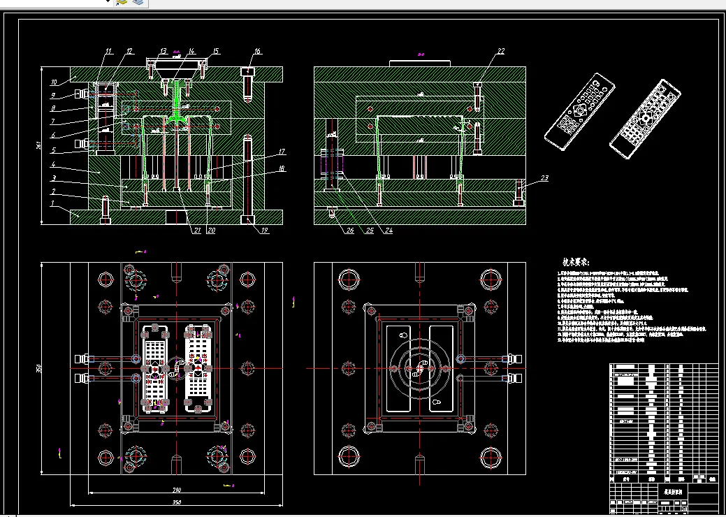
CAD版本图纸,共9张
UG三维图一份

摘要
塑料属于工程实际中非常重要的一类材料,在整个工业领域中,这一门类发展最为迅速。注塑模具的发展,对整个国家的发展有着非常重要的作用,是国家重点的发展分支,能够衡量国家的发展水平,模具行业必将是未来重点发展。
本研究旨在设计一套塑料模具以用来注塑成型生产电视遥控器上盖。首先进行了对电视遥控器上盖结构的详细分析,考虑到电视遥控器上盖用途和使用环境,选择适合其生产的ABS材料来满足其强度和耐用性等使用要求。模腔数目设计方案上采用了一模两腔的结构,为了实现更好的注塑效果,采用潜伏式浇口进行注胶,确保塑料材料充分填充模具。确定了设计方案后,利用三维软件对产品体积进行分析,初选注塑机型号,确定分型面最佳位置,以确保成型件易于脱模且尺寸精度可控。随后,详细设计了模具的浇注系统、脱模机构和冷却系统,通过优化每个部件的布局和参数来提高成型效率和产品质量。针对成型零件的结构和尺寸特点,进行了详细的计算和结构选择工作,确保每个零件都符合设计要求,使其在生产过程中能够达到预期的性能指标。最终,校核验证了所选注塑机主要参数,确保能满足正常生产要求。
关键词:电视遥控器上盖;注塑模具;潜伏式浇口;脱模机构;
目录
1 绪论 1
1.1题目背景 1
1.2国内外相关研究情况 1
1.2.1国内注塑模具相关研究情况 1
1.2.2国外注塑模具相关研究情况 2
1.3模具工业的发展趋势 2
1.4毕业设计主要内容 3
2 电视遥控器上盖工艺性分析 4
2.1塑件的结构分析 4
2.2 精度等级分析和表面质量 4
2.3材料的选取及分析 5
2.4 ABS的成型工艺参数 5
3 注射机的选择 7
3.1 单次注射量计算 7
3.2 注射机初选 8
4 模具主要结构设计 9
4.1分型面的选择 9
4.2确定型腔数量及排列方式 9
4.3 浇注系统的设计 10
4.3.1主流道设计 10
4.3.2分流道的设计 11
4.3.3 浇口设计 12
4.3.4冷料穴设计 13
4.4 成型零件机构设计及工作尺寸计算 14
4.4.1 成型零件结构设计 14
4.4.2 成型零件工作尺寸计算 15
4.5脱模机构的设计 17
4.5.1 脱模机构基本要求 17
4.5.2 推出机构的确定 17
4.5.3脱模力的计算 17
4.5.4 推杆的布置 18
4.6导向机构设计 19
4.6.1 导向机构的作用 19
4.6.2 导柱导套的结构形式 19
4.7 侧向分型抽芯机构的设计 20
4.7.1侧向抽芯机构的选择 20
4.7.3抽芯力计算 22
4.7.4斜推杆设计 22
4.8模具冷却系统及排气系统设计 23
4.8.1 排气系统设计 23
4.8.2 温度系统设计 23
4.8.3冷却系统的简单计算 23
4.8.3.1 单位时间内注入模具中的塑料熔体的总质量W 23
4.8.3.2确定单位质量的塑件在凝固时所放出的热量 24
4.8.4冷却水道的布置 25
5 注射机工艺参数校核及模架选择 26
5.1注射压力校核 26
5.2锁模力的校核 26
5.3模具厚度尺寸校核 26
5.4 开模行程校核 27
5.5模架的选择 27
6 模具装配图及开合模过程 29
6.1 模具装配图以及3D模型 29
6.2模具开合模过程 30
结 论 31
参考文献 32
致 谢 34
温馨提示:
1、题目前面的备注【字母数字编号】为本站整理分类的编号,与课题内容无关,请选题时忽视;
2、若题目上备注三维,则表示文件里包含三维源文件,由于三维组成零件数量较多,为保证预览截图的简洁性,本站将三维文件夹进行了打包。三维及CAD预览截图,均为本站电脑打开软件进行截图的,保证能够打开,下载原件超高清,下载后解压即可;
3、本站所有资源如无特殊说明,都需要本地电脑安装Office2007。图纸软件为AutoCAD,PROE,UG,SolidWorks,CATIA等;
4、本站所有图文资料仅供用户学习参考,不作为任何商用或其他用途;
5、本站不保证下载资源的准确性、安全性和完整性, 不包修改,不支持退换,同时也不承担用户因使用这些下载资源对自己和他人造成任何形式的伤害或损失;
6、 下载文件中如有侵权或不适当内容,请与我们联系,我们立即纠正。