

作品包括:
Word版设计说明书1份
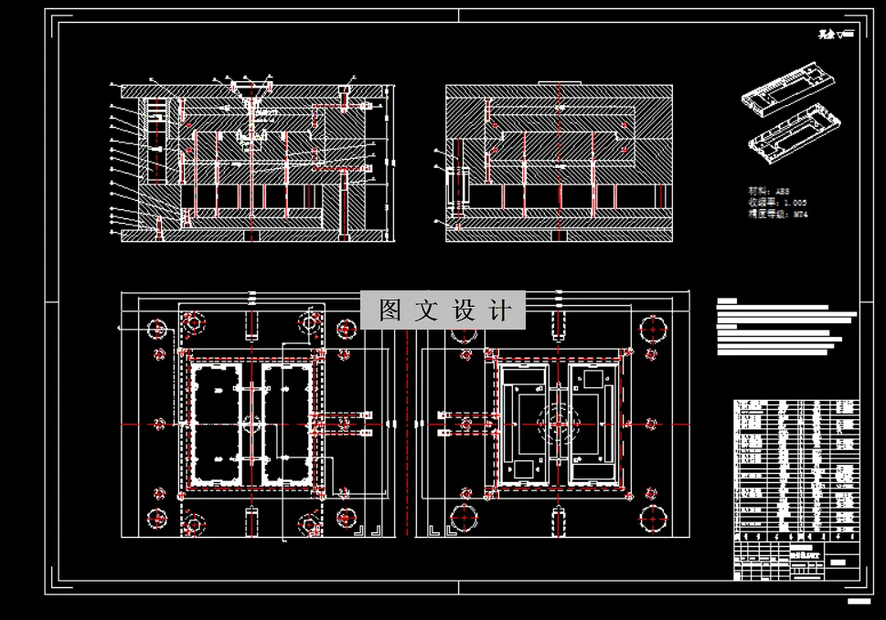
CAD版本图纸,共10张
UG三维图一份
摘要
在现代社会中,塑料零件的使用随处可见,比较常见的塑件有日用品:水杯塑胶盖、文具、玩具、花盘等。还有电器零件、汽车外装饰件、汽车内装饰件、工业零件等众多领域。塑料零件都有一个共同的特点,是使用塑料原料棵粒通过注塑成型机在模具中加压成型等工艺成型得来的商品零件,所以设计塑料模具成型零件对人类日常使用及工业能带来很大的方便。从而推动了社会的以及工业的发展。注塑模具是现代生活中不可缺失的重要工业,它的影响对社会的有多深远是不可言喻的。1682728
温馨提示:
1、题目前面的备注【字母数字编号】为本站整理分类的编号,与课题内容无关,请选题时忽视;
2、若题目上备注三维,则表示文件里包含三维源文件,由于三维组成零件数量较多,为保证预览截图的简洁性,本站将三维文件夹进行了打包。三维及CAD预览截图,均为本站电脑打开软件进行截图的,保证能够打开,下载原件超高清,下载后解压即可;
3、本站所有资源如无特殊说明,都需要本地电脑安装Office2007。图纸软件为AutoCAD,PROE,UG,SolidWorks,CATIA等;
4、本站所有图文资料仅供用户学习参考,不作为任何商用或其他用途;
5、本站不保证下载资源的准确性、安全性和完整性, 不包修改,不支持退换,同时也不承担用户因使用这些下载资源对自己和他人造成任何形式的伤害或损失;
6、 下载文件中如有侵权或不适当内容,请与我们联系,我们立即纠正。