

作品包括:
Word版说明书1份,共26页,约14000字
CAD版本图纸,共19张

前言....................................................................1
二、塑件的工艺性分析...............................................3
(一)塑件的模型建立2D图一、3D图二,................................. 3
(二)塑料的结构特点、化学和成型使用性能,.......................... 4
(三)塑件工艺参数、模具型制品的收缩率、壁外形及圆角、脱模斜度......5
三、分型面设计与型腔...............................................6
(一)确定制品分型分型面...............................................6
(二)型腔数量的确定....................................................7
四、成型设备的选择与塑料工艺参数的编制..............................7
(一)计算塑件、浇注系统的体积及塑件的质量...........................7
(二)选择注射机的类型和型号..........................................9
(三)塑件注射工艺参数的确定........................................10
(四)查表填写原材料的注射工艺参数及塑件模塑的工艺卡 ..........11
五、模具的结构设计.....................................................12
(一)浇注系统的设计..................................................12
(二)成型零件的设计..................................................15
(三)顶出机构设计....................................................16
(四)冷却系统设计....................................................19
(五)导向机构设计....................................................22
六、排气系统设计....................................................23
七、模架的选择及校核...............................................24
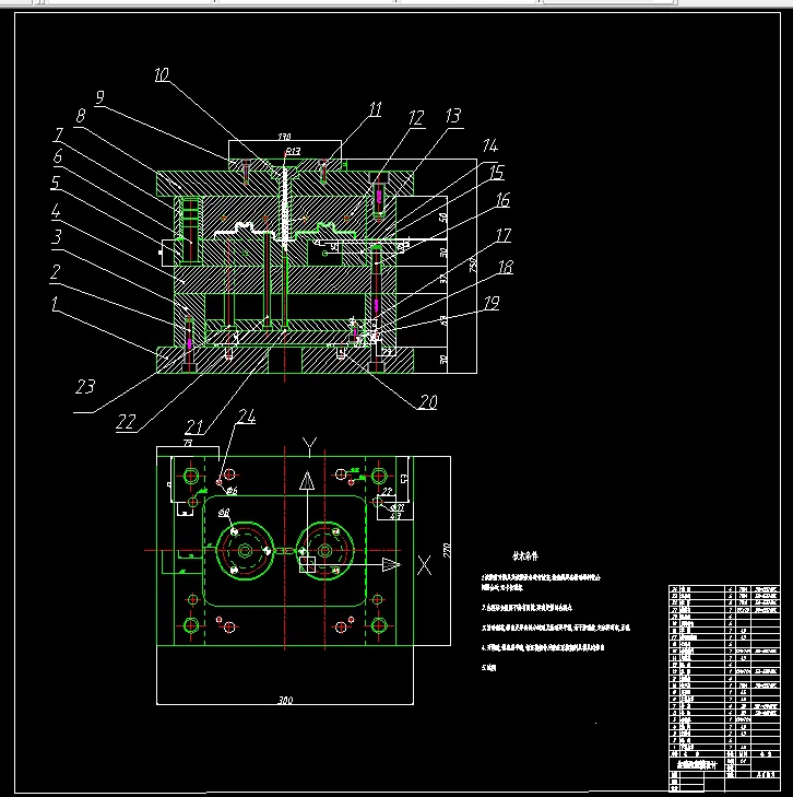
八、模具装配图和零件图............................................28
致谢...................................................................29
参考文献............................................................29
温馨提示:
1、题目前面的备注【字母数字编号】为本站整理分类的编号,与课题内容无关,请选题时忽视;
2、若题目上备注三维,则表示文件里包含三维源文件,由于三维组成零件数量较多,为保证预览截图的简洁性,本站将三维文件夹进行了打包。三维及CAD预览截图,均为本站电脑打开软件进行截图的,保证能够打开,下载原件超高清,下载后解压即可;
3、本站所有资源如无特殊说明,都需要本地电脑安装Office2007。图纸软件为AutoCAD,PROE,UG,SolidWorks,CATIA等;
4、本站所有图文资料仅供用户学习参考,不作为任何商用或其他用途;
5、本站不保证下载资源的准确性、安全性和完整性, 不包修改,不支持退换,同时也不承担用户因使用这些下载资源对自己和他人造成任何形式的伤害或损失;
6、 下载文件中如有侵权或不适当内容,请与我们联系,我们立即纠正。