

作品包括:
Word版设计说明书1份,共27页,约15000字
CAD版本图纸,共15张
UG三维图一份

摘要
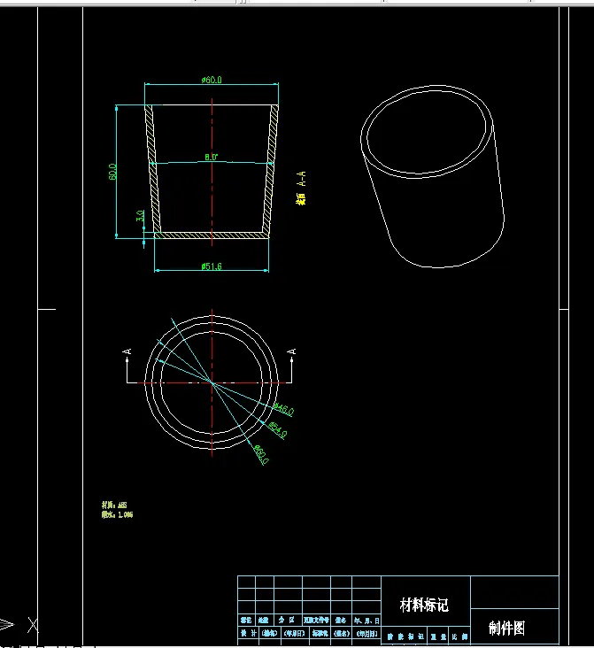
本次主要设计是对水杯注射模的设计, 重点对塑件的成型原理、原料选用和注射技术进行分析。通过根据形状、尺寸、精度及表面质量要求的分析结果,确定所需的模塑成型方案,制品的后加工、分型面的选择、型腔的数目和排列、成型零件的结构、浇注系统等。该塑件有内螺纹,需两次分型。故设计中主要解决了分型面的选择,型腔数目的确定,脱模机构的设计.采用了二次脱模机构来脱模,保证塑件能顺利的成型出模。
关键词:脱模机构;注射模;丙烯腈-丁二烯-苯乙烯塑料
目录1 引言 1
1.1 概述 1
1.2 国内研究现状 1
1.3 国外研究现状 2
2.1塑件的成型分析 3
2.2壁厚分析 4
2.3圆角分析 4
3.1材料的选择: 4
3.2材料简介: 5
3.3基本特性: 5
3.4物理性质 5
5.1估算塑件的体积和质量 7
5.2选择注射机 8
6.1型腔数目 8
6.2型腔的排布: 9
7 分型面的选择 11
8 浇注系统的设计 12
8.1浇注系统设计原则: 12
8.2主流道设计: 12
8.3分流道设计: 12
8.4浇口的设计: 13
8.5冷料穴的设计 15
8.6 排气系统的设计 15
9 塑料工艺尺寸的计算 15
9.1凹模的的结构设计: 15
9.2凸模的结构设计: 16
10 导向机构的设计 16
10.1导柱导向机构的作用: 16
10.2导柱导套的设计原则: 16
10.3导柱导套的设计: 17
(6)导柱工作部分的表面粗糙度为Ra0.4μm; 18
10.4导柱与导套的布置: 19
11 脱模机构的设计 20
11.1脱模机构的组成: 20
11.2设计原则: 20
12温度调节系统的设计 21
12.1模具冷却系统的设计 21
12.2模具冷却时间的确定 21
12.3冷却系统的设计原则 21
12.4冷却系统的结构设计: 22
12.5冷却系统的计算 22
13 模具工作过程 23
14 设计总结 24
参考文献: 24
致谢 25
温馨提示:
1、题目前面的备注【字母数字编号】为本站整理分类的编号,与课题内容无关,请选题时忽视;
2、若题目上备注三维,则表示文件里包含三维源文件,由于三维组成零件数量较多,为保证预览截图的简洁性,本站将三维文件夹进行了打包。三维及CAD预览截图,均为本站电脑打开软件进行截图的,保证能够打开,下载原件超高清,下载后解压即可;
3、本站所有资源如无特殊说明,都需要本地电脑安装Office2007。图纸软件为AutoCAD,PROE,UG,SolidWorks,CATIA等;
4、本站所有图文资料仅供用户学习参考,不作为任何商用或其他用途;
5、本站不保证下载资源的准确性、安全性和完整性, 不包修改,不支持退换,同时也不承担用户因使用这些下载资源对自己和他人造成任何形式的伤害或损失;
6、 下载文件中如有侵权或不适当内容,请与我们联系,我们立即纠正。