

作品包括:
Word版说明书1份,共49页,约15000字
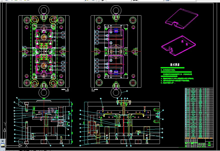
CAD版本图纸,共19张
UG三维图一份
摘要
本文首先分析了塑料模具的发展趋势,然后分析投影仪舱盖的结构特点,重点介绍了模具的斜顶机构,通过运CAD、Moldflow等软件对塑件成型进行工艺分析。在传统的模具设计的基础上,可以大大提高生产效率,减少成本投入和能源的消耗。CAD在模具设计中的运用大大提高了设计效率,尤其是对复杂的零件提升效果更加明显。运用Moldflow对模具结构中成型部分进行模拟、分析、优化,选出最佳的设计方案。提高了劳动生产率,降低了成本。
关键词:塑料模具;斜顶;CAD;Moldflow
前言 1
第一章 塑件的工艺分析 3
1.1塑件结构 3
1.2塑件分析 3
1.3塑件材料的特征 4
1.4塑件材料的成型性能 4
1.5尺寸公差标准 5
第二章 模具结构方案的确定 7
2.1模具型腔数量的确定 7
2.2模具型腔的排列方式 7
2.3分型面的选择 8
2.4型腔和型芯的结构设计 11
第三章 成型设备的选择与模塑工艺参数的编制 13
3.1塑件的体积计算 13
3.2注塑机的选择 13
第四章 CAE模流分析 15
4.1 CAE模流分析模型建立 15
4.2网格的划分、诊断、修复 15
第五章 浇注系统的设计 17
5.1概述 17
5.2普通流道系统的基本结构 17
第六章 推出机构的设计 25
6.1 用途 25
6.2 推出机构的要求 25
6.3 推出力的计算 25
6.4 推出机构的形式 25
第七章 成型零件的设计 27
7.1 型腔凹模径向尺寸计算: 27
第八章 斜顶设计 31
8.1斜顶的简介 31
8.2斜销参数: 31
8.3斜销设计应注意的事项: 31
第九章 排气冷却系统 33
9.1排气系统 33
9.2冷却系统 33
第十章 导向机构 37
10.1导柱、导套类型 37
10.2导柱、导套注意事项 37
第十一章 模架的选用 39
11.1模架尺寸的确定 39
11.2模具闭合高度的确定 40
第十二章 注射机的安装尺寸与模具的校核 41
12.1注射量的校核 41
12.2注射量的校核 41
12.3注射量的校核 41
12.4模具厚度的校核 42
12.4模具开模行程的校核 42
12.5模具安装尺寸的校核 42
结论 43
参考文献 44
致谢 45
温馨提示:
1、题目前面的备注【字母数字编号】为本站整理分类的编号,与课题内容无关,请选题时忽视;
2、若题目上备注三维,则表示文件里包含三维源文件,由于三维组成零件数量较多,为保证预览截图的简洁性,本站将三维文件夹进行了打包。三维及CAD预览截图,均为本站电脑打开软件进行截图的,保证能够打开,下载原件超高清,下载后解压即可;
3、本站所有资源如无特殊说明,都需要本地电脑安装Office2007。图纸软件为AutoCAD,PROE,UG,SolidWorks,CATIA等;
4、本站所有图文资料仅供用户学习参考,不作为任何商用或其他用途;
5、本站不保证下载资源的准确性、安全性和完整性, 不包修改,不支持退换,同时也不承担用户因使用这些下载资源对自己和他人造成任何形式的伤害或损失;
6、 下载文件中如有侵权或不适当内容,请与我们联系,我们立即纠正。