

作品包括:
Word版说明书1份,共54页,约17000字
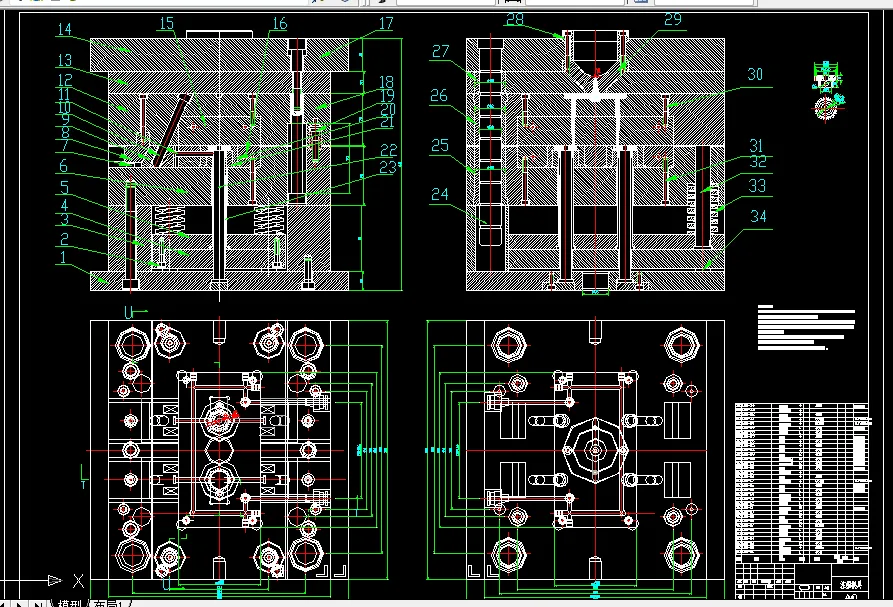
CAD版本图纸,共14张
摘要
本设计为齿轮注塑模的设计,设计分型面选在截面最大处,由于产品有内孔,所以模具结构需要侧抽芯,塑件成型后利用推管将成型制品从 动模上推出,回程时利用复位杆复位。
设计中需要对塑件的尺寸进行计算,确定尺寸精度,然后进行注射机的选取。对注射机参数进行校核,包括模具闭合厚度、模具安装尺寸、模具开模行程、注射机的锁模力等。各个参数都满足要求后才能确定注射机的型号。
在设计过程中,为了更清楚的表达模具的内部结构,因此附有大量的模具结构图和模具局部图,并通过通过CAD和三维软件画出它的二维、三维立体图。
关键词:塑料件,分型面,浇口,工艺分析
目 录
摘要 I
第一章 绪论 1
第二章 塑件分析 3
2.1塑件结构 3
2.2 制品质量 3
2.3 尺寸精度 4
第三章 材料的选择与工艺性分析 5
3.1 注塑成型工艺简介 5
3.2 塑件材料选择 6
3.3 材料ABS的注塑成型参数 6
3.4 材料ABS性能 6
3.5 初选择注塑机 8
第四章 拟定模具结构形式 9
4.2 型腔数量的确定 9
第五章 注塑机的选择及校核 11
5.1 最大注塑量的校核 11
5.2 锁模力的校核 11
5.3 塑化能力的校核 11
5.4 喷嘴尺寸校核 11
5.5 定位圈尺寸校核 12
5.6 模具外形尺寸校核 12
5.7 模具厚度校核 12
5.8 模具安装尺寸校核 13
第六章 浇注系统的设计 14
6.1 主流道 15
6.2 分流道与浇口 16
第七章 成型零件的工作尺寸计算 16
7.1 成型零件工作尺寸的计算 17
7.1.2型芯尺寸的计算: 19
7.1.3侧型芯尺寸计算: 20
7.2 型腔壁厚、支撑板厚度的确定 22
第八章 脱模推出机构的设计 24
8.1 在设计脱模推出机构是应遵循下列原则 25
8.2 脱模力的计算 25
8.3 推管的设计 25
第九章 排气系统设计 26
第十章 温度调节系统设计 27
10.1 对温度调节系统的要求 28
10.2 冷却系统设计 28
10.2.1 设计原则 28
10.2.2 冷却时间的确定 29
第十一章 导向与定位机构 29
第十三章 侧抽芯设计 36
13.1 斜导柱设计 38
13.2 滑槽的设计 40
13.3 楔紧设计 41
13.4 滑块定位设计 41
13.5 弹簧设计计算 42
第十四章 注塑工艺不良缺陷以及成因 42
14.1 残余应力引起的龟裂 43
14.2 外部应力引起的龟裂 43
14.3 外部环境引起的龟裂 44
结论 46
参考文献 47
致 谢 48
温馨提示:
1、题目前面的备注【字母数字编号】为本站整理分类的编号,与课题内容无关,请选题时忽视;
2、若题目上备注三维,则表示文件里包含三维源文件,由于三维组成零件数量较多,为保证预览截图的简洁性,本站将三维文件夹进行了打包。三维及CAD预览截图,均为本站电脑打开软件进行截图的,保证能够打开,下载原件超高清,下载后解压即可;
3、本站所有资源如无特殊说明,都需要本地电脑安装Office2007。图纸软件为AutoCAD,PROE,UG,SolidWorks,CATIA等;
4、本站所有图文资料仅供用户学习参考,不作为任何商用或其他用途;
5、本站不保证下载资源的准确性、安全性和完整性, 不包修改,不支持退换,同时也不承担用户因使用这些下载资源对自己和他人造成任何形式的伤害或损失;
6、 下载文件中如有侵权或不适当内容,请与我们联系,我们立即纠正。