

作品包括
Word版说明书1份,共50页,约20000字
CAD版本图纸,共19张
UG三维图一份

摘要
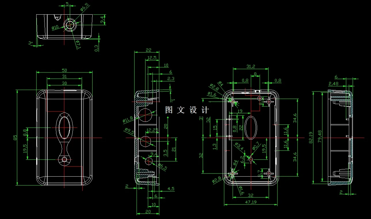
根据任务书的指示,我们现在的任务是完成视频发射器上盖零件进行塑胶模具设计。模具是工业之母,从上世纪发展至今,无论是发展速度和水平都非常高,而且影响力十分大。模具里面有塑胶模具、冲压模具、压铸模具等等,这里面塑胶模具是模具种类里面最常见的一种。
为了更好的完成本次设计,需要做非常多的工作。第一步是要清楚地认识
和了解该塑件的基本信息,比如它的用途、基本形状构造和所用塑胶的材料。第二步是要考虑该塑件的分型面,这是非常重要的一步,分型面影响到塑件的整套模具设计的脱模机构设计以及塑件的外观。第三步是确定型腔的数量和布局。
第四步根据塑件的结构,判断塑件需不需要进行侧抽芯。第五步是完成塑件的浇注系统,其中包括进胶口、流道、进胶系统相关配件等等。第六步是确定塑件的顶出系统,常见的顶出系统有推杆和推板。第七步是确定塑件的冷却系统,原则是要冷却均匀。第八步是要结合前面的数据选择合适的模架
本次我们大概的方向是先把上面的步骤的主要参数整理好,然后再进行三
维建模和完成二维的装配图和主要零件图,最后编写说明书。
关键词:视频发射器上盖、模具设计、成型工艺、说明书
目 录
摘要 1
Abstract 2
目 录 3
第一章 绪论 6
1.1塑胶模具的介绍 6
1.2 注塑模具成型工艺 7
1.3国内外的模具发展 8
1.3 选题的意义 9
第2章 塑件结构与注塑工艺分析 10
2.1塑件的结构分析 10
2.1.1塑件的精确度及壁厚 11
2.2.2零件尺寸精度分析 12
2.2.2分析塑件的尺寸精度 12
2.2.3分析塑件的外观 13
2.2塑件材料的选用及性能分析 13
2.2.1 ABS的特点 13
2.2.1 ABS的技术指标 13
2.3塑件体积与质量 14
第3章 型腔的布局与浇注系统的设计 15
3.1分型面的设计 15
3.1.1分型面选用原则 15
3.1.2分型面的确定 15
3.2模具型腔布局 16
3.3注塑用量与注塑机的选择 17
3.2.1注塑时所需要的体积计算 17
3.2.2注塑机的选择 17
3.4排气机构的设计 19
3.5主流道的设计 19
3.6分流道的设计 22
3.7浇口的设计 23
3.7冷料穴的设计 24
3.8模具排气方式设计 25
第4章 成型零件的计算 26
4.1型腔的结构设计 26
4.2型芯结构设计 28
第5章 冷却系统设计 32
5.1冷却系统的概述 32
5.2冷却系统的计算 33
第6章 顶出系统的设计 35
6.1推出系统的设计 35
6.1.1推杆的设计 35
6.1.2推杆强度校核 35
6.2侧向抽芯滑块的设计 36
6.2.1 抽芯机构的结构形式 37
6.2.3 抽芯距S'的计算 37
6.2.4斜导柱倾斜角 设计 37
6.2.5斜导柱直径计算 38
6.2.6滑块斜导柱长度 38
6.3复位机构的设计 39
第7章 注塑机及模架校核 40
7.1 模架的选择 40
7.1.1标准模架尺寸计算 40
7.2注塑机注塑量校核 41
7.3锁模力的校核 42
7.4校核注射压力 43
7.5校核模具安装尺寸 43
7.6校核移模行程 43
总结 45
致谢 46
参考文献 47
附录 49
温馨提示:
1、题目前面的备注【字母数字编号】为本站整理分类的编号,与课题内容无关,请选题时忽视;
2、若题目上备注三维,则表示文件里包含三维源文件,由于三维组成零件数量较多,为保证预览截图的简洁性,本站将三维文件夹进行了打包。三维及CAD预览截图,均为本站电脑打开软件进行截图的,保证能够打开,下载原件超高清,下载后解压即可;
3、本站所有资源如无特殊说明,都需要本地电脑安装Office2007。图纸软件为AutoCAD,PROE,UG,SolidWorks,CATIA等;
4、本站所有图文资料仅供用户学习参考,不作为任何商用或其他用途;
5、本站不保证下载资源的准确性、安全性和完整性, 不包修改,不支持退换,同时也不承担用户因使用这些下载资源对自己和他人造成任何形式的伤害或损失;
6、 下载文件中如有侵权或不适当内容,请与我们联系,我们立即纠正。