

作品包括:
Word版说明书1份,共57页,约17000字
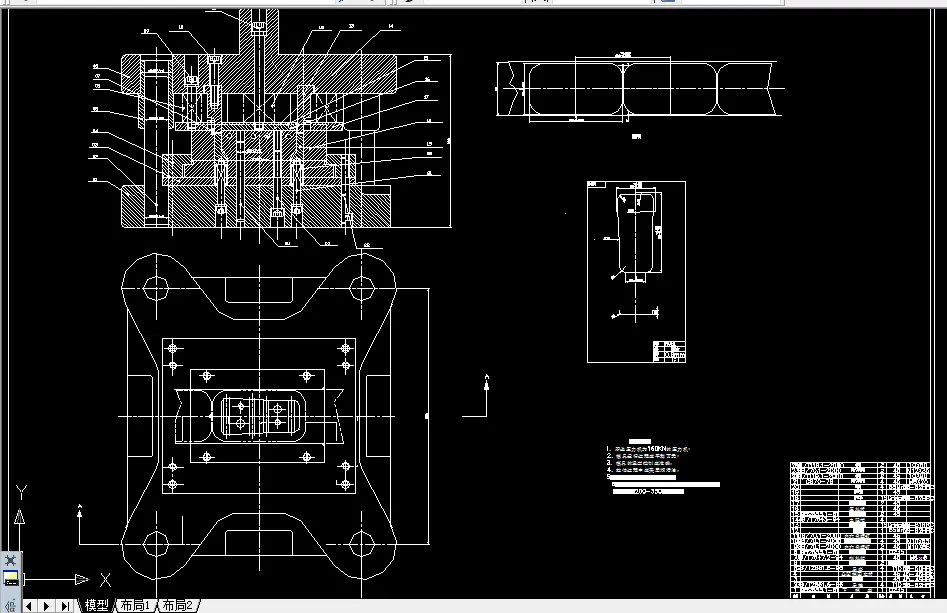
CAD版本图纸,共8张
摘要
冷冲模是广泛运用的模具之一,但在特殊条件下也可进行加热,即热冲压模具。冲压模具具有成本低,产品质量稳定,能加工多种性能,状态的零件的特点。但在应用时也受到模具寿命和生产安全等方面的制约。本文主要是根据零件的生产技术要求,设计了落料拉深的复合模具,同时设计了浮动式切边模具。在第一套模具的设计中,主要采用的是落料和反拉深的结合,此结构相对较为简单。由于镁合金的塑性成型需要在一定的温度条件下才能实现,所以温度的控制是一个关键点,在此采用了嵌入式电阻丝进行电加热,且辅以温控系统的控制,成型温度为100-350℃。第二套模具主要采用浮动式切边,在该设计中主要是对切边的行程进行控制。各个导板计算需精确。
关键词 冷冲压;落料;拉深;浮动式切边
目录
摘要 I
Abstract II
第1章 绪论 1
1.1 模具行业发展的现状及未来发展趋势 1
1.1.1 模具行业发展现状及技术趋势现状 1
1.1.2 我国及国外模具行业的发展状况及发展趋势 3
1.1.3 未来冲压模具制造技术发展趋势 4
1.2 课题研究的目的意义及主要内容 6
1.2.1 课题研究的目的及意义 6
1.2.2 本课题的主要研究内容 6
第2章 零件的工艺性分析 8
2.1 零件的工艺性分析 8
2.1.1 冲裁件的精度与粗糙度 8
2.1.2 冲裁件的材料 8
2.2 工艺方案的确定 8
2.2.1 工艺方案 8
2.2.2 排样的确定 9
2.2.3 冲裁件的排样 9
2.2.4 搭边 9
2.2.5 材料利用率 10
2.2.6 模具及板材的温度 11
2.3 本章小结 11
第3章 冲压模具总体结构设计 12
3.1 模具总体结构设计 12
3.1.1 模具形式 12
3.1.2 操作与定位方式 12
3.1.3 送料卸料方式 12
3.1.4 模架类型及精度 13
3.2 本章小结 13
第4章 冲压模具工艺与设计计算 14
4.1 计算冲压力、压力中心、初选压力机 14
4.1.1 计算毛坯尺寸 14
4.1.2 计算落料冲裁力 14
4.1.3 计算拉深力 14
4.1.4 压力机选择 15
4.1.5 确定压力中心 15
4.2 凸模与凹模刃口尺寸的确定 15
4.2.1 落料凸、凹模刃口尺寸的计算 15
4.2.2 落料凹模 17
4.2.3 拉深凸模 18
4.2.4 落料拉深凸凹模 19
4.2.5 计算冲裁间隙 20
4.3 本章小结 20
第5章 冲压模具的零件选用 22
5.1 模架的确定 22
5.1.1 上模座 23
5.1.2 下模座 23
5.1.3 导柱、导套 24
5.2 模具的闭合高度的计算 24
5.3 模柄的确定 25
5.4 导料板、卸料板的确定 26
5.4.1 导料板(JB/T7648.5-1994) 26
5.4.2 卸料板 26
5.5 挡料方式 27
5.6 推件装置 27
5.7 弹性元件 27
5.8确定装配基准 27
5.9总装简图 28
5.10本章小结 29
第6章 切边模总体设计 30
6.1 切边模总体设计 30
6.1.1 总体工艺方案的选择 30
6.1.2 浮动式切边模的特点 30
6.1.3 切边过程中的运动分析 30
6.2 冲模结构设计要点 31
6.2.1 凹模冲切的移动量 31
6.2.2 凹模运动斜度和尺寸设计 32
6.3 本章小结 32
第7章 主要结构设计 33
7.1 工作移动量的确定 33
7.1.1 凹模冲切移动量 33
7.1.2 凹模运动斜度和尺寸设计 34
7.2 凸模设计 35
7.3 定位芯的设计 36
7.4 导板的设计 36
7.4.1 左导板设计 38
7.4.2 右导板设计 39
7.4.3 前导板设计 40
7.4.4 后导板设计 40
7.5 压力机的选用 41
7.5.1 压力机行程选择 41
7.5.2 压力机压力选择 41
7.6 本章小结 43
第8章 切边模零件的确定 44
8.1 模架的选择 44
8.1.1 上模座 44
8.1.2 下模座 45
8.1.3 导柱、导套 45
8.2 模柄的确定 46
8.3 确定装配基准与材料 46
8.4 切边模总装简图 47
8.5 本章小结 48
结论 49
致谢 50
参考文献 51
温馨提示:
1、题目前面的备注【字母数字编号】为本站整理分类的编号,与课题内容无关,请选题时忽视;
2、若题目上备注三维,则表示文件里包含三维源文件,由于三维组成零件数量较多,为保证预览截图的简洁性,本站将三维文件夹进行了打包。三维及CAD预览截图,均为本站电脑打开软件进行截图的,保证能够打开,下载原件超高清,下载后解压即可;
3、本站所有资源如无特殊说明,都需要本地电脑安装Office2007。图纸软件为AutoCAD,PROE,UG,SolidWorks,CATIA等;
4、本站所有图文资料仅供用户学习参考,不作为任何商用或其他用途;
5、本站不保证下载资源的准确性、安全性和完整性, 不包修改,不支持退换,同时也不承担用户因使用这些下载资源对自己和他人造成任何形式的伤害或损失;
6、 下载文件中如有侵权或不适当内容,请与我们联系,我们立即纠正。