

作品包括:
Word设计说明书1份
CAD版本图纸,共10张
摘要
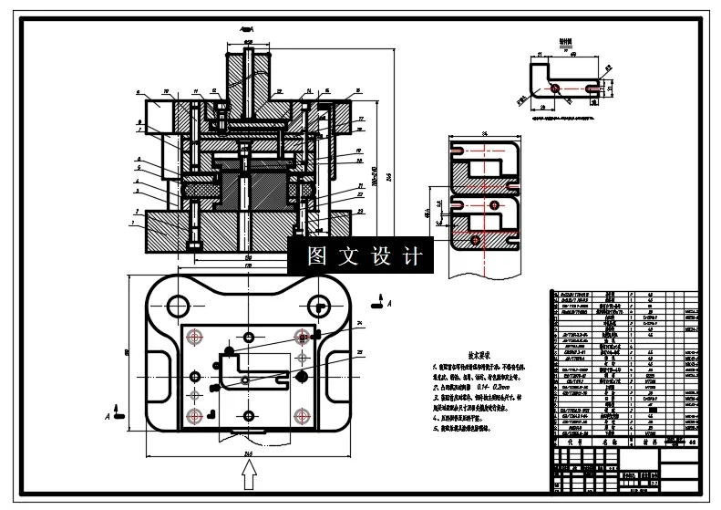
本次是叉板零件制件的复合模具设计,制件设计使用的材质是45钢。叉板零件的外形是不对称的,钢板厚度为2.5mm, 叉板零件为落料、冲孔件,上面有一个圆孔。所以叉板零件可以采用常用的复合冲裁模。根据所给的任务书中的零件和基本参数,参考相关冲孔模的资料,确定叉板零件冲压模的加工工艺过程,确定工序方案。计算冲孔模各部分工艺力尺寸,如冲孔力、卸料力和总冲压力,设计叉板零件冲压模的排样图,利用CAD确定压力中心位置。计算冲孔凸模、凹模刃口的尺寸,并考虑刃口需要的性能要求。分析设计模具结构,如模架结构,导向零件,定位零件,卸料零件,选择合适的冲压设备,校核压力设备。最后绘画各零件简图和装配图,确定各个零件的加工方法。
温馨提示:
1、题目前面的备注【字母数字编号】为本站整理分类的编号,与课题内容无关,请选题时忽视;
2、若题目上备注三维,则表示文件里包含三维源文件,由于三维组成零件数量较多,为保证预览截图的简洁性,本站将三维文件夹进行了打包。三维及CAD预览截图,均为本站电脑打开软件进行截图的,保证能够打开,下载原件超高清,下载后解压即可;
3、本站所有资源如无特殊说明,都需要本地电脑安装Office2007。图纸软件为AutoCAD,PROE,UG,SolidWorks,CATIA等;
4、本站所有图文资料仅供用户学习参考,不作为任何商用或其他用途;
5、本站不保证下载资源的准确性、安全性和完整性, 不包修改,不支持退换,同时也不承担用户因使用这些下载资源对自己和他人造成任何形式的伤害或损失;
6、 下载文件中如有侵权或不适当内容,请与我们联系,我们立即纠正。