

作品包括:
Word版说明书1份,共49页,约17000字
任务书一份
开题报告一份
外文翻译一份
PPT答辩一份
CAD版本图纸,共4张
UG三维塑件图一份
模流分析一份

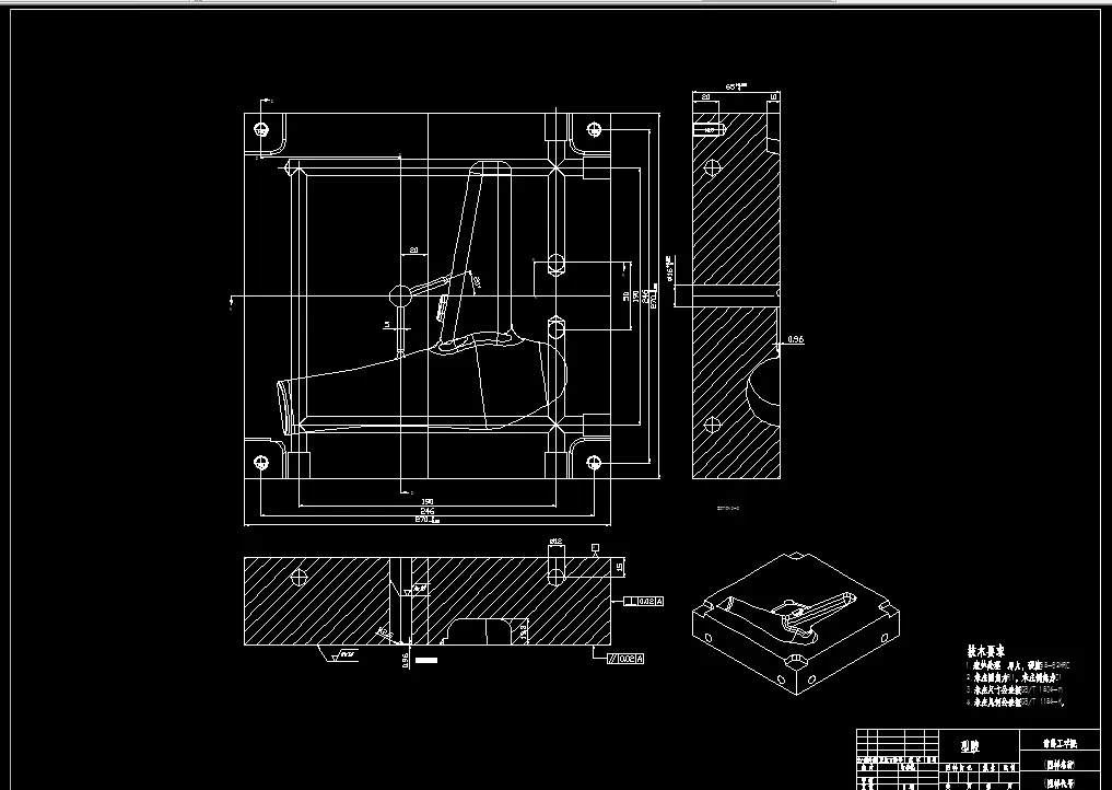
本次毕业设计电吹风外壳注塑模具设计,首先对原材料进行选择,利用UG软件对电吹风外壳进行建模结构设计,选择合适的分型面及顶出机构设计,同时利用Moldflow软件分析充填系统设计、熔接痕、气穴、冷却系统设计等。
本次毕业设计采用图文结合的方式,通过对材料流动性以及产品形状特点的考量,合理设定了入料口,以此确保材料充填均匀且不存在气泡。注塑机的选择与校核同时,按照塑件的尺寸和形状,设计出了恰当的冷却系统,让冷却水能够均匀地分布在塑件周边,提升注塑效率与产品质量。通过合理确定顶出机构的数量与位置,保障塑件能够顺利脱模,达成预期的形状和尺寸要求。选用了标准模架系统,是采用了GB国标标准模架。该模架系统设计科学合理,便于加工和安装,而且能够契合注塑模具的需求。
关键词:注塑模具;结构设计;校核;冷却系统
目 录
1 绪论 1
1.1 课题背景 1
1.2 国内外研究现状 1
1.2.1 国内研究现状 1
1.2.2 国外研究现状 2
1.3 研究目的 2
1.4 研究内容 3
2 塑件工艺分析与材料的选择 4
2.1 UG建模过程 4
2.2 材料的选择 12
2.3 塑件的体积与质量 13
2.4 注塑成型工艺参数 14
3 模具结构方案的确定 15
3.1 厚度检测和分型面的设计 15
3.2 设计分型面 16
3.3 出模数量与型腔布局 17
3.4 成型设备初选 18
4 模具方案的设计 20
4.1 主流道的设计 20
4.2 分流道的设计 20
4.3 浇口冷料穴的设计 20
4.4 模具成型系统设计 21
4.4.1 型芯结构设计 22
4.4.2 模具温度调节系统概述 23
4.4.3 模具冷却系统设计要求 23
4.5 顶出脱模机构概述 25
4.6 顶出脱模机构设计 26
4.7 标准模架的选用 27
5 注塑机的选择与校核 29
5.1 校核压力 29
5.2 校核模具安装尺寸 29
5.3 校核移模行程 29
5.4 校核注塑机锁模力 29
6 Moldflow分析 30
6.1 Moldflow分析软件介绍 30
6.2 模型网格修整 30
6.3 浇口位置分析 30
6.4 充填流动初步分析 31
6.5 分析结果 32
6.5.1 充填时间 32
6.5.2 熔接痕 32
6.5.3 体积收缩率 33
6.5.4 注射成型压力 34
6.5.5 锁模力 35
6.5.6 气穴 35
6.5.7 综合变形 35
6.6 冷却系统Moldflow模拟结果 36
7 结论与展望 39
7.1 主要结论 39
7.2 研究与展望 39
参考文献 41
致谢 42
温馨提示:
1、题目前面的备注【字母数字编号】为本站整理分类的编号,与课题内容无关,请选题时忽视;
2、若题目上备注三维,则表示文件里包含三维源文件,由于三维组成零件数量较多,为保证预览截图的简洁性,本站将三维文件夹进行了打包。三维及CAD预览截图,均为本站电脑打开软件进行截图的,保证能够打开,下载原件超高清,下载后解压即可;
3、本站所有资源如无特殊说明,都需要本地电脑安装Office2007。图纸软件为AutoCAD,PROE,UG,SolidWorks,CATIA等;
4、本站所有图文资料仅供用户学习参考,不作为任何商用或其他用途;
5、本站不保证下载资源的准确性、安全性和完整性, 不包修改,不支持退换,同时也不承担用户因使用这些下载资源对自己和他人造成任何形式的伤害或损失;
6、 下载文件中如有侵权或不适当内容,请与我们联系,我们立即纠正。