

作品包括:
Word设计说明书1份
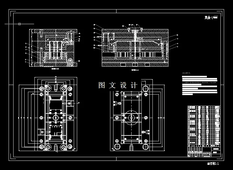
CAD版本图纸,共13张
UG三维图一份
摘要
通过制作塑料制品完成毕业设计,自选对象自行查找资料进行研究设计。此次选择设计制造的是一个前灯饰圈注射模具设计,我将通过3D程序UG,cad等等来进行更为详细的设计。除了设计前灯饰圈三维造型还需要设计它的注塑模具的建模的制作,因此我们需要设计装配图、零件设计图等等一些图纸,通过对前灯饰圈注射模具设计的结构要求,我们最终决定采取最常用而且使用颇为广泛的型腔:一模两腔的设计。通过上面的描述,这次的模具结构相对简洁,生产不易出现差错,结构合理简单好维修,而且精度高,使用年限长等多种优势方面。上述的设计之外我们还需要对模具的分型面、浇注系统、脱模机构、冷却方法进行更为具体的制定和研究制作
温馨提示:
1、题目前面的备注【字母数字编号】为本站整理分类的编号,与课题内容无关,请选题时忽视;
2、若题目上备注三维,则表示文件里包含三维源文件,由于三维组成零件数量较多,为保证预览截图的简洁性,本站将三维文件夹进行了打包。三维及CAD预览截图,均为本站电脑打开软件进行截图的,保证能够打开,下载原件超高清,下载后解压即可;
3、本站所有资源如无特殊说明,都需要本地电脑安装Office2007。图纸软件为AutoCAD,PROE,UG,SolidWorks,CATIA等;
4、本站所有图文资料仅供用户学习参考,不作为任何商用或其他用途;
5、本站不保证下载资源的准确性、安全性和完整性, 不包修改,不支持退换,同时也不承担用户因使用这些下载资源对自己和他人造成任何形式的伤害或损失;
6、 下载文件中如有侵权或不适当内容,请与我们联系,我们立即纠正。