

作品包括:
Word版说明书1份,共41页,约22000字
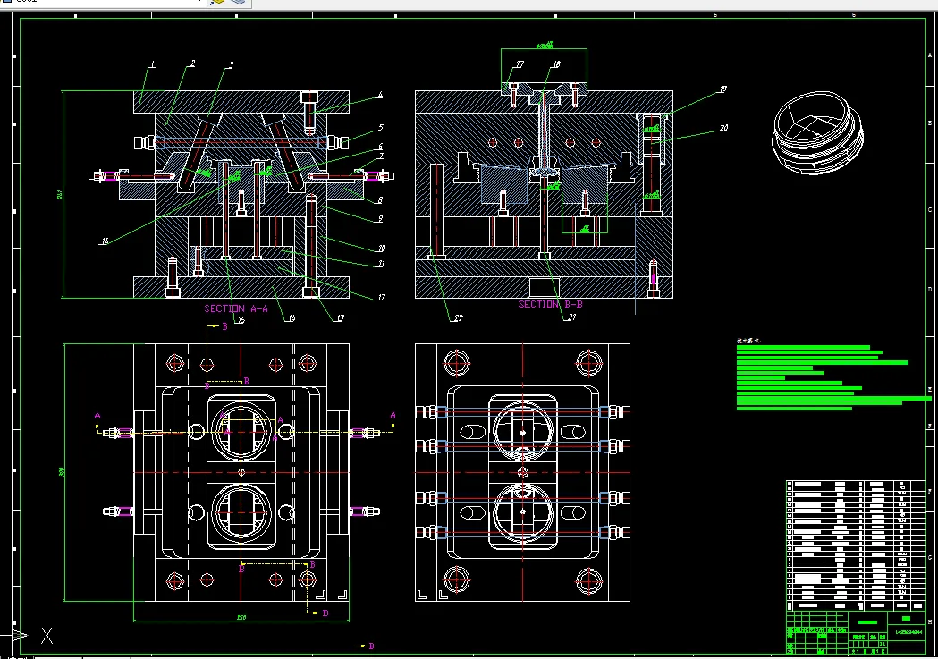
CAD版本图纸,共7张
UG三维图一份

摘要
本次设计的制品为ABS螺旋盖注射模设计,利用UG来完成制品模3D模型,利用CAD/UG来完成其装配图和零件图。模具采用了侧抽芯。模具结构紧凑、工作可靠、操作方便、运转平稳、冷却效果好、劳动强度低、生产效率高、生产的塑件精度高、生产成本低。本文从型腔数量和布局的确定、注射机选择、流道的设计、模板及其标准件的选用、冷却系统、成型部件的设计等给出了详细的设计过程。
在设计该模具的同时总结了以往模具设计的一般方法、步骤,模具设计中常用的公式、数据、模具结构及零部件。把以前学过的基础课程融汇到综合应用本次设计当中来。
【关键词】 塑料 注射模 UG CAD
目 录
前 言 1
第一章 塑件成型工艺性分析 2
1.1 软件简介 2
1.2 塑件(某螺旋盖)分析 3
1.3 零件结构特征、塑料的性能、技术要求及结构工艺性的分析 3
1.3.1尺寸及精度 3
1.3.2壁厚 4
1.3.4 脱模斜度 4
1.3.5 圆角 4
1.3.6 粗糙度 4
1.3.7 塑料性能的分析 5
第二章 模具的设计 6
2.1 拟定模具结构形式 6
2.2 确定型腔数量及排列形式 6
2.3 分型面的确定 7
2.4 注射机型号的确定 7
2.4.1 注射机的选择 7
2.4.2注射成型工艺的参数 8
2.4.3注塑机的校核 10
2.5浇注系统设计 11
2.5.1 浇注系统的设计原则 11
2.5.2 浇注系统的组成 12
2.5.3 浇注系统的作用 12
2.5.4 浇注系统各部件设计 12
2.5.5浇口的设计 15
2.5.6浇注系统的平衡 15
2.5.7 浇注系统凝料体积计算 15
2.5.8 注塑时间的计算 16
2.5.8 排气系统设计 16
2.6成型零件的结构设计和计算 16
2.6.1成型零件钢材的选用 17
2.6.2成型零件工作尺寸计算 17
2.6.3 成型零件强度、刚度的校核 20
2.7模架的确定和标准件的选用 21
2.8 合模导向机构的设计 22
2.8.1 合模导向零件机构的作用 22
2.8.2 导向机构的设计 22
2.9脱模推出机构的设计 23
2.9.1 推出机构的组成 23
2.9.2 推出机构的分类 23
2.9.3 推出机构的设计原则 23
2.9.4 脱模力的计算 24
2.9.5合模导向机构的设计 25
2.10 侧向分型与抽芯机构的设计 26
2.10.1 侧向抽芯机构的分类及特点 26
2.10.2 本模具的侧抽芯设计 27
2.10.3 斜滑块侧抽芯机构 28
2.11注射模温度调节系统设计 29
2.11.1 冷却系统设计原则 30
2.11.2 冷却系统的简单计算 30
第三章 模具的试模与修模 33
3.1制品的粘着 33
3.2成型缺陷 33
3.3注射填充不足 34
3.4注射工艺不足 34
第四章 次品分析 34
致谢 36
参考文献 37
温馨提示:
1、题目前面的备注【字母数字编号】为本站整理分类的编号,与课题内容无关,请选题时忽视;
2、若题目上备注三维,则表示文件里包含三维源文件,由于三维组成零件数量较多,为保证预览截图的简洁性,本站将三维文件夹进行了打包。三维及CAD预览截图,均为本站电脑打开软件进行截图的,保证能够打开,下载原件超高清,下载后解压即可;
3、本站所有资源如无特殊说明,都需要本地电脑安装Office2007。图纸软件为AutoCAD,PROE,UG,SolidWorks,CATIA等;
4、本站所有图文资料仅供用户学习参考,不作为任何商用或其他用途;
5、本站不保证下载资源的准确性、安全性和完整性, 不包修改,不支持退换,同时也不承担用户因使用这些下载资源对自己和他人造成任何形式的伤害或损失;
6、 下载文件中如有侵权或不适当内容,请与我们联系,我们立即纠正。