

作品包括:
Word设计说明书1份,共48页,约13000字
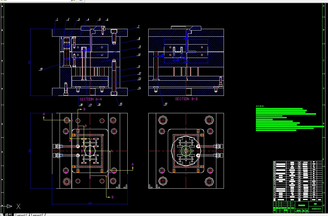
CAD版本图纸,共10张
UG三维图一套

摘要
本文是关于U盘壳塑料件注塑模的设计,主要内容包括塑件的成形工艺分析,模具结构形式的确定,分型面位置的确定,浇注系统的形式和浇口的设计,成形零件的结构设计和计算,模架的确定和标准件的选用,合模导向机构的设计,脱模推出机构的设计等。
在正确分析塑件工艺特点和材料的性能后,涉及模具结构计算及熔融塑料在模具中流动预测等复杂的工程运算问题;运用CAD等不同的软件分别对模具的设计、制造和产品质量进行分析。塑料件注塑模设计,采用一般精度,利用CAD、二维软件来设计或分析注射模的成型零部件,浇注系统,导向部件和脱模机构等等。综合运用了专业基础、专业课知识设计,其核心知识是塑料成型模具、材料成型技术基础、机械设计、塑料成型工艺、计算机辅助设计、模具CAD等。
关键词:模架,标准件,脱模推出机构.
目 录
绪论 6
第一章 塑件的结构材料工艺分析 9
1.1.1塑件的材料 9
1.1.2 ABS的成型工艺特性与性能 : 9
1.1.3塑件的工艺性分析 9
2.1.4苯乙烯-丁二烯-丙烯腈(ABS)的注射成型工艺参数 10
第二章 拟定模具结构 11
2.1分型面的选择 11
2.2型腔数量的确定 12
2.3模具结构的确定 12
2.4注射机型号的确定 13
2.5型腔数量的校核 15
第三章 浇注系统的设计 16
3.1主流道的设计 16
3.2分流道的设计 18
3.3浇口的设计 19
3.4校核主流道的剪切速率 21
3.5冷料穴的设计及计算 21
3.6模流分析 21
3.6.1几何建模 21
3.6.2网格划分 21
3.6.3最佳浇口位置 22
3.6.4模拟结果分析 23
第四章 成型零件的结构设计与计算 32
4.1成型零件的结构设计 32
5.2成型零件钢材的选用 33
5.3 成型零件工作尺寸的计算 33
5.4成型零件尺寸计算 35
第五章 模架的确定 36
6.1各模板尺寸的确定 36
6.2模架各尺寸的校核 37
第六章 推出机构和复位机构的设计 39
7.1推出方式的确定 39
7.2脱模力的计算 40
7.3推杆的直径 40
7.4推杆强度校核 41
7.5校核推出机构在塑件上的单位压应力 41
7.6 顶针的设计 41
第七章 模具冷却系统 43
8.1冷却介质 43
8.2冷却系统的简单计算 43
8.3凹模和型芯冷却水道的设置 44
第八章 排气系统与引气系统的设计 45
第九章 模具材料的选择 46
第十章 装配图的绘制 47
温馨提示:
1、题目前面的备注【字母数字编号】为本站整理分类的编号,与课题内容无关,请选题时忽视;
2、若题目上备注三维,则表示文件里包含三维源文件,由于三维组成零件数量较多,为保证预览截图的简洁性,本站将三维文件夹进行了打包。三维及CAD预览截图,均为本站电脑打开软件进行截图的,保证能够打开,下载原件超高清,下载后解压即可;
3、本站所有资源如无特殊说明,都需要本地电脑安装Office2007。图纸软件为AutoCAD,PROE,UG,SolidWorks,CATIA等;
4、本站所有图文资料仅供用户学习参考,不作为任何商用或其他用途;
5、本站不保证下载资源的准确性、安全性和完整性, 不包修改,不支持退换,同时也不承担用户因使用这些下载资源对自己和他人造成任何形式的伤害或损失;
6、 下载文件中如有侵权或不适当内容,请与我们联系,我们立即纠正。