

作品包括:
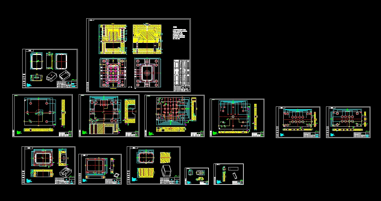
Word版设计说明书1份,共32页,约12000字
CAD版本图纸,共13张
UG三维图一套
模流分析一份

摘要
本次设计是基于“收纳盒”这一塑件产品完成注塑模具工艺设备的设计装置。首选针对“收纳盒”这一塑件产品进行结构分析,决定以注塑模具注射生产该产品,基于实际情况选用了较为适宜的高分子塑料材料,并根据实际情况确定了注射模具的型腔出模数。基于模具设计的各项基本原则以及相关设计规范,确定了注射模具的分型面,基于相关设计参数设计了模具成型系统的各个相关零件,设计注射模具浇注系统的时候,确保充填过程要保持相对较为均匀的状态,模具流道中存在的废料要尽量少,且要尽量短。注射模具的冷却系统需要较为均匀的分布在本文设计收纳盒塑件的周边位置,塑件产品的温度冷却过程要合理且均匀。在设计模具脱模顶出机构的时候,设计制造成均匀分布式结构的顶出系统,确保本文收纳盒塑件产品能够在均匀受力状态下顶出模具型腔。本文设计注射模具选用龙记生产制造的GB国标生产的模架类型。此种标准模架可以确保模具的生时间段,有利于降低生产周期,具备更好的经济性。且具有相对较高的生产制造效率。
在设计完成全套注射模具总体结构后,需要基于生产所需选用较为适宜的注塑机设备,并对其主要参数进行校核计算,需要对设备注塑量大小、以及注射压力,锁模力数值和模具的安装尺寸等做出相应校核,确保其满足实际注射生产。
本次的注塑模具通过三维建模软件,以及二维工程制图软件,对模具进行建模,同时绘制模具的工程图纸。完成本文收纳盒塑件产品的三维模型,同时绘制了注射模具的实体模型。
本次设计的课题内容来源于我们日常的生活实践,具有相对较广的应用场景,设计过程中大量使用了计算机辅助设计软件,使得整体的设计效率在一定程度上得到有效提升。设计完成之后,校核了注射模具的各项参数,所得注射模具满足生产实践的实际需求,设计合理。
关键词:收纳盒;注塑模具;注塑机;校核;AutoCAD
目录
摘要 1
Abstract 2
第一章 绪论 7
1.1 注塑模具的简介 7
1.2 注塑模具发展国内外现状 7
1.3 本课题研究内容 9
第二章 塑件工艺分析与材料的选择 9
2.1 塑件工艺分析 9
2.2 塑件材料的选择 10
2.2.1 ABS塑料的特点 10
2.2.1 ABS的技术指标 11
2.1.3 ABS的工艺性能参数 11
2.3 ABS材料的应用 11
2.4 计算塑件体积 12
2.5 塑件壁厚的分析 12
第三章 模具结构方案的确定 13
3.1 模具型腔数量及布置 13
3.2 分型面的设计 14
3.2.1 分型面设计的原则 14
第四章 模具浇注系统的设计 15
4.1 浇注系统的组成 15
4.2 浇注系统的设计原则 15
4.3 流道的设计 16
4.3.1 主流道的设计 16
4.3.2 分流道的设计 16
4.3.3 浇口的设计 16
4.4 浇注系统标准件的选用 17
第五章 模具成型系统设计 18
5.1 型腔结构设计 18
5.2 型芯结构设计 19
5.3 型腔成型零件尺寸计算 20
5.4 型芯成型零件尺寸计算 21
5.5 成型钢材的选用 21
第六章 模具温度系统设计 22
6.1 模具温度调节系统概述 22
6.2 模具冷却系统设计要求 22
6.3 冷却水道的形式类型 23
6.4 模具冷却水道的计算校核 24
第七章 模具顶出脱模机构 25
7.1 顶出脱模机构概述 25
7.3 顶出脱模机构的分类 25
第八章 模具抽芯机构 26
8.1 抽芯机构概述 26
8.2 抽芯机构的类型 26
8.3 抽芯距离和斜拨块 27
8.3.1 抽芯距的计算 27
8.3.2 斜拨块倾斜角度 27
第九章 标准模架的选用 28
9.1 模架概述 28
9.2 标准模架的选用 28
9.3 模架型号的确定 28
第十章 注塑机的选择与校核 29
10.1 注塑机的概述 29
10.2 初选注塑机型号 30
10.3 校核注塑机注塑量 31
10.4 校核压力 31
10.5 校核模具安装尺寸 31
10.6 校核移模行程 31
10.7 校核注塑机锁模力 32
总 结 33
致 谢 33
参考文献 34
温馨提示:
1、题目前面的备注【字母数字编号】为本站整理分类的编号,与课题内容无关,请选题时忽视;
2、若题目上备注三维,则表示文件里包含三维源文件,由于三维组成零件数量较多,为保证预览截图的简洁性,本站将三维文件夹进行了打包。三维及CAD预览截图,均为本站电脑打开软件进行截图的,保证能够打开,下载原件超高清,下载后解压即可;
3、本站所有资源如无特殊说明,都需要本地电脑安装Office2007。图纸软件为AutoCAD,PROE,UG,SolidWorks,CATIA等;
4、本站所有图文资料仅供用户学习参考,不作为任何商用或其他用途;
5、本站不保证下载资源的准确性、安全性和完整性, 不包修改,不支持退换,同时也不承担用户因使用这些下载资源对自己和他人造成任何形式的伤害或损失;
6、 下载文件中如有侵权或不适当内容,请与我们联系,我们立即纠正。