

作品包括:
Word版设计说明书1份,共39页,约12000字
CAD版本图纸,共13张
UG三维图一套
模流分析一份

摘 要
这次的模具设计主要是针对于透明盖注塑模具的构建设计,首先是对模具产品透明盖进行相应的分析,对产品尺寸、产品特性等进行分析,采用相应的建模软件对其进行建模,准确地构建出产品模型,并结合塑料产品的状况、产品的锁模力、产品锁模位,选择相应的注塑机型号,其次,在Autocad软件下构建活动型芯、固定型芯、浇口系统、浇道设计、定位圈设计、型芯、型腔、顶出机构,推杆固定平台、推杆、标准结构的注塑模架、回程杆、冷却装置,并且完成活动、固定模板,最后对注射机的性能进行检查,绘制模具总装配图和各系统的加工图以及编写出整个系统的使用说明书。
关键词 :透明盖;AutoCAD;型芯;注射机
目 录
绪 论 1
1.研究背景和现状 1
2.本次设计的目的 3
1 塑件工艺分析 4
1.1塑件的原材料分析 4
1.2塑件的结构和尺寸精度及表面质量分析 5
1.3注塑机的选用 5
1.4模架的选用 7
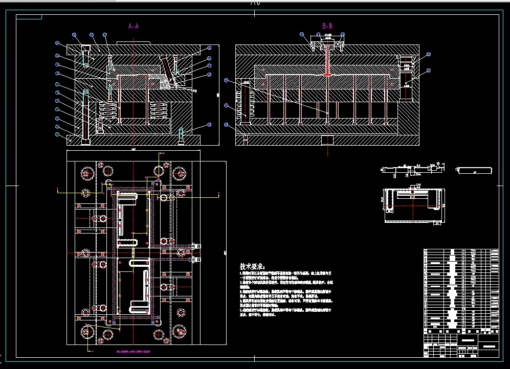
2 注塑模的结构设计 9
2.1分型面选择 9
2.2确定型腔的数目及排列方式 9
2.3浇注系统设计 10
2.4排气系统的设计 12
2.5脱模机构的设计 13
2.6 导向机构的设计 14
2.7成型零件工作尺寸的计算 15
2.8模具冷却系统的设计 18
2.9侧向抽芯机构设计 20
3 模具材料的选取以及总装图的绘制 22
3.1 模具材料的选取 22
3.2模具总装图的绘制 23
3.3本模具的工作原理 24
4.注塑机有关参数的校核 25
4.1模具合模时校核: 25
4.2模具开模时校核: 25
4.3 最大注塑量校核 25
4.4锁模力校核 26
5 .MoldFlow方案分析论证 27
5.1 有限元的划分 27
5.2 浇口方案位置的确定 28
5.3 整体方案设计 28
5.4 分析填充保压阐述 29
5.5 分析冷却翘曲阐述 31
5.6 最终方案确定 32
结 论 33
致 谢 34
参考文献 35
温馨提示:
1、题目前面的备注【字母数字编号】为本站整理分类的编号,与课题内容无关,请选题时忽视;
2、若题目上备注三维,则表示文件里包含三维源文件,由于三维组成零件数量较多,为保证预览截图的简洁性,本站将三维文件夹进行了打包。三维及CAD预览截图,均为本站电脑打开软件进行截图的,保证能够打开,下载原件超高清,下载后解压即可;
3、本站所有资源如无特殊说明,都需要本地电脑安装Office2007。图纸软件为AutoCAD,PROE,UG,SolidWorks,CATIA等;
4、本站所有图文资料仅供用户学习参考,不作为任何商用或其他用途;
5、本站不保证下载资源的准确性、安全性和完整性, 不包修改,不支持退换,同时也不承担用户因使用这些下载资源对自己和他人造成任何形式的伤害或损失;
6、 下载文件中如有侵权或不适当内容,请与我们联系,我们立即纠正。