

作品包括:
Word设计说明书1份
任务书一份
开题报告一份
外文翻译一份
PPT答辩一份
CAD版本图纸,共3张
Proe三维图一套
摘要
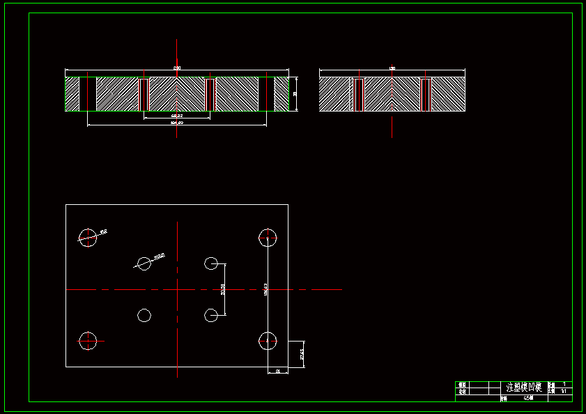
家用小电器按钮零件的注塑模具设计 在按钮注塑模结构被设计过程中,设计针对产品材料性能、结构特点进行工艺分析;通过分析,确定该模具的型腔建数模、分型面、初选了注塑机。然后在PRO-e环境下进行该模具的成型零件设计、模架结构系统设计,最后模具总成
温馨提示:
1、题目前面的备注【字母数字编号】为本站整理分类的编号,与课题内容无关,请选题时忽视;
2、若题目上备注三维,则表示文件里包含三维源文件,由于三维组成零件数量较多,为保证预览截图的简洁性,本站将三维文件夹进行了打包。三维及CAD预览截图,均为本站电脑打开软件进行截图的,保证能够打开,下载原件超高清,下载后解压即可;
3、本站所有资源如无特殊说明,都需要本地电脑安装Office2007。图纸软件为AutoCAD,PROE,UG,SolidWorks,CATIA等;
4、本站所有图文资料仅供用户学习参考,不作为任何商用或其他用途;
5、本站不保证下载资源的准确性、安全性和完整性, 不包修改,不支持退换,同时也不承担用户因使用这些下载资源对自己和他人造成任何形式的伤害或损失;
6、 下载文件中如有侵权或不适当内容,请与我们联系,我们立即纠正。