

作品包括:
Word设计说明书1份
CAD版本图纸,共14张
Proe三维造型图一份
仿真加工文件一份
工艺卡一套
摘要
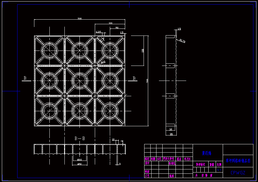
草坪塑料网格砖注塑模具设计 注塑模具是现在所有塑料模具中使用最广的模具,能够成型高精度的复杂塑料制品。本课题是对草坪塑料网格砖模具设计及型腔仿真加工。 考虑到该产品大批量生产,故设计的模具要有较高的注塑效率,浇注系统要能自动脱模,可采用点浇口自动脱模结构。由于该塑件较大且为网格状,所以模具采用一模一腔结构,浇口形式采用点浇口,并采用四点进料,以利于充满型腔。为了使动、定模能够准确地动作,导向定位机构利用导柱与导套的配合。考虑到零件的位置关系,冷却水道采用循环式分布,以便冷却均匀、快速。
温馨提示:
1、题目前面的备注【字母数字编号】为本站整理分类的编号,与课题内容无关,请选题时忽视;
2、若题目上备注三维,则表示文件里包含三维源文件,由于三维组成零件数量较多,为保证预览截图的简洁性,本站将三维文件夹进行了打包。三维及CAD预览截图,均为本站电脑打开软件进行截图的,保证能够打开,下载原件超高清,下载后解压即可;
3、本站所有资源如无特殊说明,都需要本地电脑安装Office2007。图纸软件为AutoCAD,PROE,UG,SolidWorks,CATIA等;
4、本站所有图文资料仅供用户学习参考,不作为任何商用或其他用途;
5、本站不保证下载资源的准确性、安全性和完整性, 不包修改,不支持退换,同时也不承担用户因使用这些下载资源对自己和他人造成任何形式的伤害或损失;
6、 下载文件中如有侵权或不适当内容,请与我们联系,我们立即纠正。