

作品包括:
Word设计说明书1份
CAD版本图纸,共4张
UG三维图一份
摘要
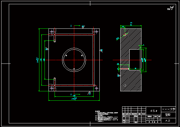
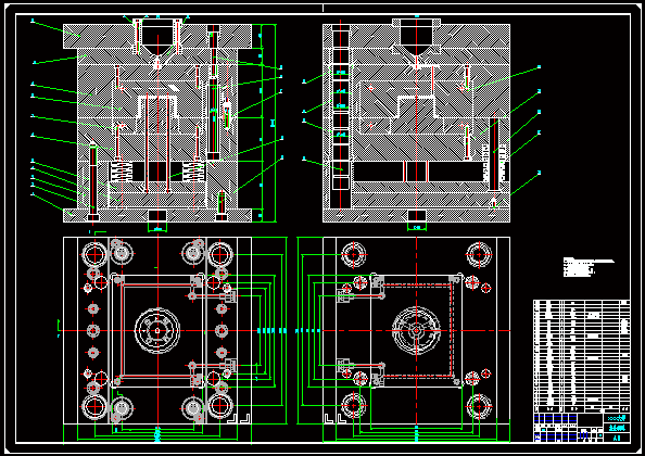
本次设计是为了让我们能综合运用机模具设计基本理论,并结合生产实习中学到的实践知识,独立的分析和解决工艺问题,具备设计一个简单程度零件的注塑模设计的基本原理和方法,完成结构设计的能力,也能熟悉和运用有关手册、图表等技术资料及编写技术文件等基本技能的一次实践。该课题从产品结构工艺性,具体模具结构出发,对模具的浇注系统、模具成型部分的结构、顶出系统、冷却系统、注塑机的选择及有关参数的校核、都有详细的设计。通过整个设计过程表明该模具能够达到此塑件所要求的加工工艺。也就是设计一副注塑模具来生产塑件产品,以实现自动化提高产量。针对的具体结构,该模具是点胶口的单分型面注射模具。通过模具设计表明该模具能达到的质量和加工工艺要求。
温馨提示:
1、题目前面的备注【字母数字编号】为本站整理分类的编号,与课题内容无关,请选题时忽视;
2、若题目上备注三维,则表示文件里包含三维源文件,由于三维组成零件数量较多,为保证预览截图的简洁性,本站将三维文件夹进行了打包。三维及CAD预览截图,均为本站电脑打开软件进行截图的,保证能够打开,下载原件超高清,下载后解压即可;
3、本站所有资源如无特殊说明,都需要本地电脑安装Office2007。图纸软件为AutoCAD,PROE,UG,SolidWorks,CATIA等;
4、本站所有图文资料仅供用户学习参考,不作为任何商用或其他用途;
5、本站不保证下载资源的准确性、安全性和完整性, 不包修改,不支持退换,同时也不承担用户因使用这些下载资源对自己和他人造成任何形式的伤害或损失;
6、 下载文件中如有侵权或不适当内容,请与我们联系,我们立即纠正。