

作品包括:
Word设计说明书1份,共34页,约12000字
CAD版本图纸,共10张
UG三维图一份
摘要
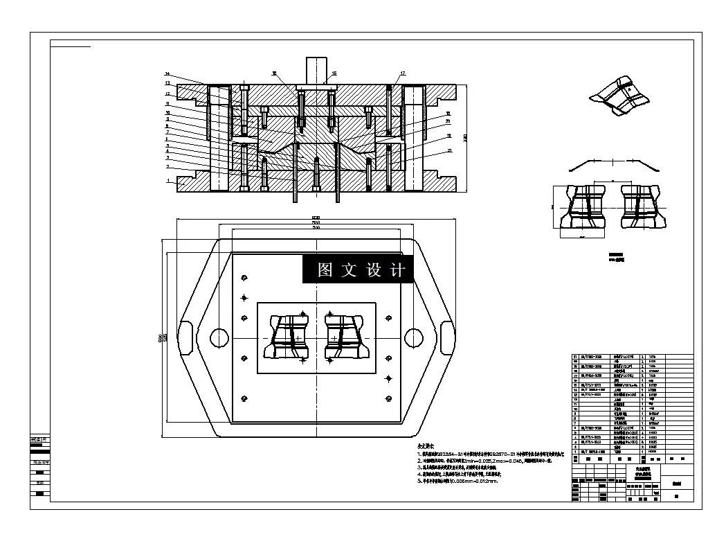
此设计的工件为汽车后轮罩,该工件为弯曲成型片类零件,需要使用到的工序有落料、冲孔、弯曲成型、翻边等工序,设计采用了一套落料冲孔复合模、一套成型模、一套翻边冲孔的工序。本次设计的为第二工序的成型模具,接着进行排样图的设计,排样图的设计是冲压模具设计的基石,通过对排样图的设计,本次所设计的弯曲模确定了采用左右侧导柱模架的设计方案。然后对工件的冲压力进行了详细的计算,并且选择出了合适的压力机,最后通过对刃口尺寸进行计算,设计出了模具的凸模,凹模,以及卸料板固定板等等,最终对模具整体进行整合,利用cad二维软件和三维软件对模具整体装配图以及零件图进行了绘制,整理出设计报告文档(字数约1.2W,34页),并且进行了最后总结。
温馨提示:
1、题目前面的备注【字母数字编号】为本站整理分类的编号,与课题内容无关,请选题时忽视;
2、若题目上备注三维,则表示文件里包含三维源文件,由于三维组成零件数量较多,为保证预览截图的简洁性,本站将三维文件夹进行了打包。三维及CAD预览截图,均为本站电脑打开软件进行截图的,保证能够打开,下载原件超高清,下载后解压即可;
3、本站所有资源如无特殊说明,都需要本地电脑安装Office2007。图纸软件为AutoCAD,PROE,UG,SolidWorks,CATIA等;
4、本站所有图文资料仅供用户学习参考,不作为任何商用或其他用途;
5、本站不保证下载资源的准确性、安全性和完整性, 不包修改,不支持退换,同时也不承担用户因使用这些下载资源对自己和他人造成任何形式的伤害或损失;
6、 下载文件中如有侵权或不适当内容,请与我们联系,我们立即纠正。