

作品包括:
Word版说明书1份,共42页,约14000字
CAD版本图纸,共4张
UG三维图一份

摘 要
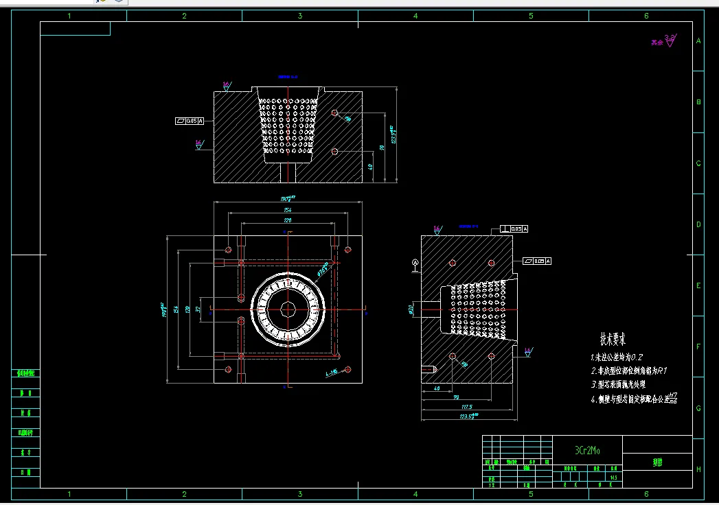
塑料网孔垃圾桶塑件,该塑件外形尺寸比较偏大,是一款较为廉价的家用塑料品。根据其用途方面考虑,也考量到塑件的造型,以及塑件自身的外观要求。本次以环保较好的PP材料为主,用于本次课题塑料网孔垃圾桶塑件批量的模具设计。塑料网孔垃圾桶塑件属于较大批量,因此这类塑件的生产将以注塑模具成型进行了批量注塑,其也可以更好的塑件的精度需求以及外表面粗糙度等控制得比较佳。前端,先针对塑件进行工艺性分析后,确定模具分型面、 型腔数目、浇口形式、位置大小等等工艺方案上进行分析,确定对其采用了单分型面的两模板、模数因塑件需求中等批量生产,对精度要求不高,但是塑件对外观表面需求很高。因此采用较好控制的一模四腔、浇口方面则选择侧边浇口、推出方式选择推杆推出。设计中,其中最重要的还是确定型芯和型腔的成型零部件的最终设计,以及它们的定位和紧固方式。此外还进行了脱模机构的设计,合模导向机构的设计,冷却系统的设计等。
关键词:塑料模 , 注塑成形 , 模具设计,塑料网孔垃圾桶,批量成型
目 录
摘 要 I
第1章 前言 1
1.1 模具在加工工业中的地位 1
1.2 设计在学习模具制造中的作用 1
第2章 塑料的工艺分析 3
2.1 塑件零件图及技术要求 3
2.2 原料(PP)的成型特性和工艺参数 3
第3章 注塑设备的选择 5
3.1 注射成型工艺条件 5
3.1.1 模具所需塑料熔体注射量 5
3.1.2 分型面上的投影面积及所需锁模力 5
3.2 选择注射机 6
3.3 模架的选定 7
3.3.1 导柱导套导向安装与配合 8
3.4 注射机的校核 9
3.4.1 最大注射量的校核 9
3.4.2 锁模力校核 10
3.4.3 模具与注射机安装部分相关尺寸校核 11
第4章 型腔布局与分型面设计 12
4.1 型腔的布局 12
4.2 分型面的设计 12
第5章 浇注系统的设计 14
5.1 主流道的设计 14
5.2 主流道衬套的设计 15
5.3 分流道的设计 15
5.4 浇口的选择 17
5.4.1 浇口形式的选用 17
5.4.2 浇口位置的选用 17
5.4.3 浇注系统的平衡 18
5.4.4 排气的设计 18
第6章 成型零件的设计 20
6.1 成型零件的结构设计 20
6.1.1 成型型腔结构设计 20
6.2 成型零件工作尺寸计算 22
6.2.1成型零部件工作尺寸的计算 23
第7章 合模导向机构的设计 26
7.1导柱导向机构设计要点 26
第8章 脱模机构的设计 27
8.1 脱模机构设计的总原则 27
8.2 推出脱模机构设计 27
8.2.1 推杆的形状 27
8.2.2 推杆的位置和布局 27
第9章 温度调节系统的设计 29
9.1 模具冷却系统的设计 30
9.2 模具温控系统的设计 30
第9章 模具的装配 32
10.1 模具的装配顺序 32
参考文献 34
致谢 35
附图:装配图 36
温馨提示:
1、题目前面的备注【字母数字编号】为本站整理分类的编号,与课题内容无关,请选题时忽视;
2、若题目上备注三维,则表示文件里包含三维源文件,由于三维组成零件数量较多,为保证预览截图的简洁性,本站将三维文件夹进行了打包。三维及CAD预览截图,均为本站电脑打开软件进行截图的,保证能够打开,下载原件超高清,下载后解压即可;
3、本站所有资源如无特殊说明,都需要本地电脑安装Office2007。图纸软件为AutoCAD,PROE,UG,SolidWorks,CATIA等;
4、本站所有图文资料仅供用户学习参考,不作为任何商用或其他用途;
5、本站不保证下载资源的准确性、安全性和完整性, 不包修改,不支持退换,同时也不承担用户因使用这些下载资源对自己和他人造成任何形式的伤害或损失;
6、 下载文件中如有侵权或不适当内容,请与我们联系,我们立即纠正。