

作品包括:
Word版说明书一份,共28页,约8200字
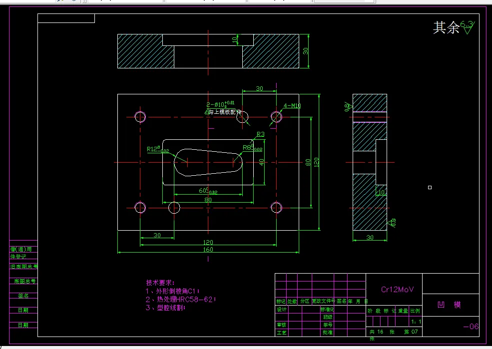
CAD版本图纸,共7张
摘 要
本设计是对给定的产品图进行冲压模具设计。冲压工艺的选择是经查阅相关资料和和对产品形状仔细分析的基础上进行的;冲压模具的选择是在综合考虑了经济性、零件的冲压工艺性以及复杂程度等诸多因素的基础上进行的;产品毛坯展开尺寸的计算是在方便建设又不影响模具成型的前提下简化为所熟悉的模型进行的。文中还对冲压成型零件和其它相关零件的选择原则及选择方法进行了说明,另外还介绍了几种产品形状的毛坯展开尺寸计算的方法和简化模型,以及冲压模具设计所需要使用的几种参考书籍的查阅方法。
【关键词】工艺、工艺性、冲压工序、冲压模具、尺寸
目 录
摘 要2
前 言4
第一章、零件图及工艺方案的拟订7
1.1.零件图及零件工艺性分析7
1.2.工艺方案的确定8
第二章、工艺设计9
2.1.确定排样方案9
2.2.计算各工序的压力10
2.3.压力机的选择11
2.4.压力中心的计算11
第三章、模具类型及结构形式的选择14
3.1.复合模的设计14
第四章、模具工作零件刃口尺寸及公差的计算16
4.1.冲孔、落料模16
第五章、模具零件的选用,设计及必要的计算18
5.1.模具零件的选用18
5.2.选择标准模架21
5.3.卸料、压边弹性元件的确定21
第六章、压力机的校核23
6.1.压力机的校核23
设计心得24
致 谢25
主要参考文献26
温馨提示:
1、题目前面的备注【字母数字编号】为本站整理分类的编号,与课题内容无关,请选题时忽视;
2、若题目上备注三维,则表示文件里包含三维源文件,由于三维组成零件数量较多,为保证预览截图的简洁性,本站将三维文件夹进行了打包。三维及CAD预览截图,均为本站电脑打开软件进行截图的,保证能够打开,下载原件超高清,下载后解压即可;
3、本站所有资源如无特殊说明,都需要本地电脑安装Office2007。图纸软件为AutoCAD,PROE,UG,SolidWorks,CATIA等;
4、本站所有图文资料仅供用户学习参考,不作为任何商用或其他用途;
5、本站不保证下载资源的准确性、安全性和完整性, 不包修改,不支持退换,同时也不承担用户因使用这些下载资源对自己和他人造成任何形式的伤害或损失;
6、 下载文件中如有侵权或不适当内容,请与我们联系,我们立即纠正。