

作品包括:
Word版说明书1份,共36页,约17000字
任务书一份
外文翻译一份
CAD版本图纸,共9张
摘 要
注射成型是热塑性塑料成型的主要方法之一,可以一次成型形状复杂的精密塑件。塑料模具的发展是随着塑料工业的发展而发展的。近年来,人们对各种设备和用品轻量化要求越来越高,这就为塑料制品提供了更为广阔的市场。
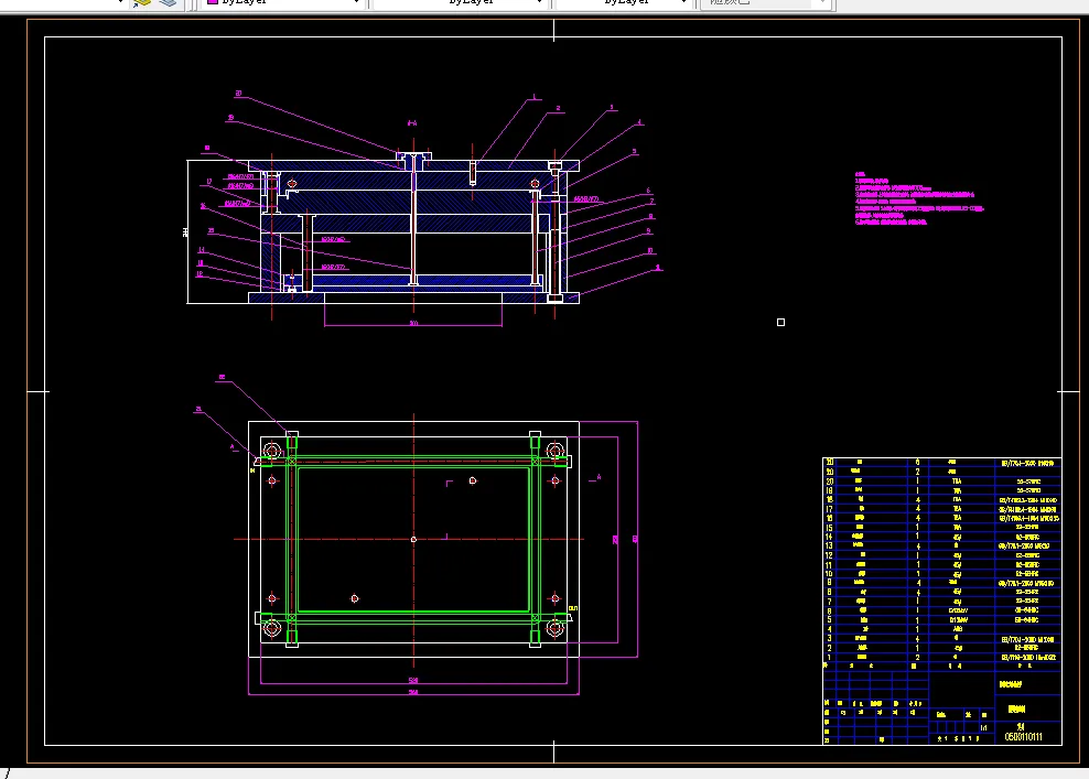
本设计对“液晶显示器外壳前面板”进行研究和讨论,分析了其工艺特点,介绍其注射模具的工作过程,系统的阐述了液晶显示器前面板的注射模设计过程,并对模具的选材,模具的生产工艺也做了详细的介绍。本设计采用Pro/E的数值模拟技术和经验设计计算相结合的方法优化设计,仿真了塑料熔体在型腔内的充模流动以及冷却分析过程,合理的浇注系统和排溢系统,优化了工艺方案及工艺参数,降低了缺陷出现的可能性。利用参数化实体造型的方法,为更加高速、快捷的造型、生产提供了一种切实可行的办法。设计中对注射模结构尺寸进行相关的计算,确定模具的最佳方案,并对主要零件结构设计进行相关的参数校核。
本设计方案结构紧凑,满足制品大批量生产、高精度、外形复杂的要求,设计参考了以往注射模具的设计经验,并结合制件性能,简化设计机构,并且运用AutoCAD、Pro/E等软件进行二维和三维绘图,缩短了生产周期,获得良好的经济性能。
关键词:液晶显示器前面板;塑料;塑料注射模;Pro/E的数值模拟
目 录
引言………………………………………………………………………1
1 概论…………………………………………………..………………2
1.1液晶显示器前面板设计总体方案…..…………………………………………………. 2
1.2 研究背景……………………………….…………………………….………………2
1.3 设计基本过程……………………………….…………………………….………………3
2 塑料工艺规程的分析…………...…………………………………………..4
2.1 注塑材料………………..…………………………………………………………………4
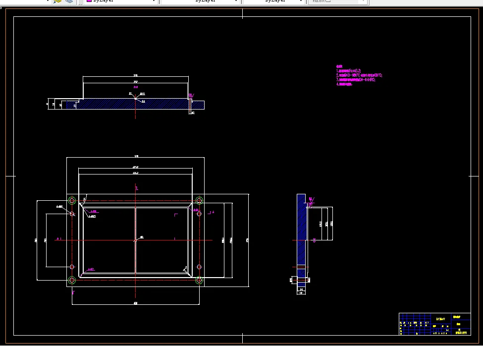
2.2 塑件制件设计的工艺分析………………..………………………………………………6
2.2.1 设计尺寸和精度的要求…………….………………………….………….……………6
2.2.2加强筋等防止变形的结构设计………….……...………………..……….………..…6
2.3塑件的体积和重量的计算……………………………………………………….6
3 模具设计…………………………...…………………………………..7
3.1 注射机的计算与选择………………………..……………………………………………7
3.1.1型腔数量的确定和校核……………………………………………………………….7
3.1.2注射量校核……………..…………………...……………………….….……………….8
3.1.3注射压力的校核………………………………………………………..………………8
3.1.4对于塑件按键投影面积校核……………………………………………………………9
3.1.5塑件在分型面上锁模力校核…………….…………………………………………….9
3.2 分型面的设计…………………………………………………………………….……...10
3.3 浇注系统设计……………………………………………………………………12
3.3.1主流道设计……………………………………………………………………………..12
3.3.2浇口设计………………………………………………………………………………..13
3.4 排溢系统的设计……………………………………………………………….…...18
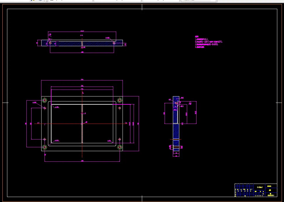
3.5 成型零件工作尺寸的计算…………………………………………………..……...18
3.5.1型腔和型芯的计算………………………………………………………………20
3.6 合模导向机构设计……………………………………………………………...22
3.6.1导向机构的作用………………………………………………………………22
3.6.2导柱导向机构设计………………………………………………………………22
3.7 推出机构设计与计算…………………………………………………………………...23
3.8 温度调节系统设计…………………………………………………………………..24
3.8.1模具温度调节的重要性………………………………………………………………24
3.8.2冷却系统的设计原则………………………………………………………………25
3.9注塑机各项行程校核…………………………………………………………………….25
3.9.1注塑机开模行程的校核…………………………………..……………………………25
3.9.2注塑机固定板及厚度的校核…………………………………………………………25
4 模架设计………………………………………………………….…………26
5 结论………………………………………………………………….………27
谢 辞………………………………………………………...………………..28
参考文献……………………………………………………………...………..32
附 录……………………………………………………...…………………..30
温馨提示:
1、题目前面的备注【字母数字编号】为本站整理分类的编号,与课题内容无关,请选题时忽视;
2、若题目上备注三维,则表示文件里包含三维源文件,由于三维组成零件数量较多,为保证预览截图的简洁性,本站将三维文件夹进行了打包。三维及CAD预览截图,均为本站电脑打开软件进行截图的,保证能够打开,下载原件超高清,下载后解压即可;
3、本站所有资源如无特殊说明,都需要本地电脑安装Office2007。图纸软件为AutoCAD,PROE,UG,SolidWorks,CATIA等;
4、本站所有图文资料仅供用户学习参考,不作为任何商用或其他用途;
5、本站不保证下载资源的准确性、安全性和完整性, 不包修改,不支持退换,同时也不承担用户因使用这些下载资源对自己和他人造成任何形式的伤害或损失;
6、 下载文件中如有侵权或不适当内容,请与我们联系,我们立即纠正。