

作品包括:
Word版说明书1份,共44页,约22000字
任务书一份
开题报告一份
外文翻译一份
CAD版本图纸,共10张
摘要
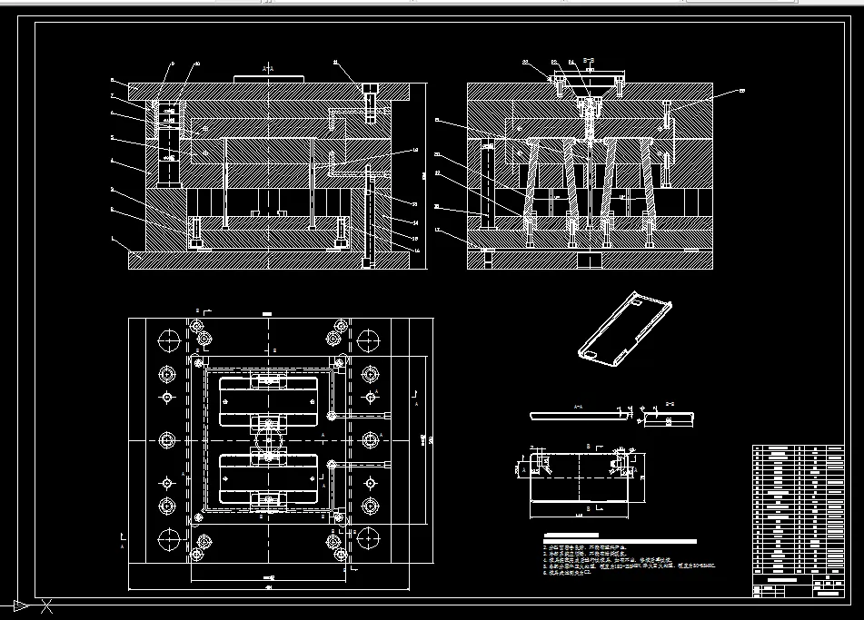
本设计介绍了手机保护壳注射成型的基本过程,此塑件内侧有凹凸结构,因此,必须有内抽芯机构,形状方形,属于简单几何形状,因此可以采用推杆推出,侧浇口进胶,再根据塑料零件的具体结构,设计了其他模具零件的设计。首先整体介绍了我国塑料模具行业的前景和发展状况,对塑件结构,包括尺寸精度、表面质量、材料性能、塑件注塑工艺参数的分析,还有进行注塑机的选择,通过对塑件加工工艺、生产条件和制造水平的分析,讨论了塑料件成型工艺及脱模系统的可行性,结合生产实践的实践知识,对注塑产品提出了基本的设计原则,详细介绍了塑件成型工艺设计,注射机的选择,浇注系统的的设计,成型零件的结构设计,脱模推出机构的设计,冷却系统的设计的过程,这几个步骤是本次设计的重点设计内容,包含了整个注塑过程(充模、保压、倒流、冷却、脱模)的设计分析,确保注塑过程能够实现。最后设计了模具导向机构,选择了模具标准件,计算模具的尺寸,绘制模具装配图、导向件等。
关键词:装配图,注塑模,设计
目 录
摘要 II
ABSTRACT III
目 录 IV
1 绪论 1
1.1 我国模具行业前景 1
1.2 塑料模具发展状况 2
1.3 设计任务 3
1.3.1 设计有关内容 3
1.3.2 拟解决关键问题 3
1.3.3 设计技术路线 3
1.4 本设计目的及意义 4
2 塑件分析 5
2.1 塑件结构工艺性分析 5
2.1.1 尺寸精度分析 5
2.1.2 表面质量分析 6
2.1.3 材料的性能 6
2.1.4 塑件注射工艺参数的确定 6
2.2 选择注塑机 7
2.2.1 注塑机概述 7
2.2.2 注塑机的计算 8
2.2.2 注塑机的校核 9
3 分型面选择和浇注系统设计 11
3.1 型腔数目的确定 11
3.2 型腔的分布 11
3.3 分型面的设计 12
3.4 浇注系统设计 13
3.4.1 主流道设计 14
3.4.2 分流道设计 15
3.4.3 浇口形式及位置的设计 16
3.4.4 冷料穴和拉料杆的设计 17
3.4.5 浇注系统的校核 17
3.5 排气系统设计 20
4 成型零件结构和推杆结构设计 21
4.1 成型零件结构设计 21
4.1.1 型腔和型芯工作尺寸计算 21
4.1.2 型腔侧壁厚度校核计算 24
4.2 推杆结构设计 27
4.2.1 脱模力的计算 27
4.2.2 推杆的材料及各部分尺寸 28
4.2.3 顶杆强度校核 28
5 冷却系统和内抽芯系统设计 29
5.1 冷却系统设计 29
5.1.2 冷却系统计算与校核 29
5.1.3 冷却系统在型腔型芯的布置形式 32
5.2 内抽芯系统的设计 32
5.2.2 抽芯力的计算 33
5.2.3 抽芯距离的计算 33
5.2.4 斜推杆的设计 34
5.3 模架的选择 34
6 引导装置设计 35
6.1 引导装置的作用 35
6.2 导柱设计 35
6.3 导套设计 35
6.4 小结 36
结论 37
致谢 38
参考文献 39
温馨提示:
1、题目前面的备注【字母数字编号】为本站整理分类的编号,与课题内容无关,请选题时忽视;
2、若题目上备注三维,则表示文件里包含三维源文件,由于三维组成零件数量较多,为保证预览截图的简洁性,本站将三维文件夹进行了打包。三维及CAD预览截图,均为本站电脑打开软件进行截图的,保证能够打开,下载原件超高清,下载后解压即可;
3、本站所有资源如无特殊说明,都需要本地电脑安装Office2007。图纸软件为AutoCAD,PROE,UG,SolidWorks,CATIA等;
4、本站所有图文资料仅供用户学习参考,不作为任何商用或其他用途;
5、本站不保证下载资源的准确性、安全性和完整性, 不包修改,不支持退换,同时也不承担用户因使用这些下载资源对自己和他人造成任何形式的伤害或损失;
6、 下载文件中如有侵权或不适当内容,请与我们联系,我们立即纠正。