

作品包括:
Word版说明书一份,31页,约9900字
CAD版本图纸,共9张
目录
前言…………………………………………………………………………………02
摘要…………………………………………………………………………………03
概述…………………………………………………………………………………05
第一节 塑料及塑料工业的发展……………………………………05
第二节 塑料成型在工业生产中的重要作用………………………06
第三节 塑料成型技术的发展趋势…………………………………07
第一章 塑件分析……………………………………………………………07
第二章 型腔数量和布局…………………………………………………10
第一节 型腔数量和布局……………………………………………………11
第二节 选用注射机…………………………………………………………12
第三节 分型面……………………………………………………………… 13
第三章 模具基本构造……………………………………………………14
第一节 成型零部件…………………………………………………………14
第二节 浇注系统…………………………………………………………… 15
第三节 开合模机构…………………………………………………………18
第四节 冷却系统…………………………………………………………… 21
第五节 支承零部件…………………………………………………………21
第四章 模具零件的加工…………………………………………………23
第一节 塑料模具制造技术要求…………………………………………25
第二节 零件加工……………………………………………………………26
第三节 零件工艺路线………………………………………………… 27设计总结…………………………………………………………………………29 致谢……………………………………………………………………………………29
参考文献……………………………………………………………………………31
摘 要
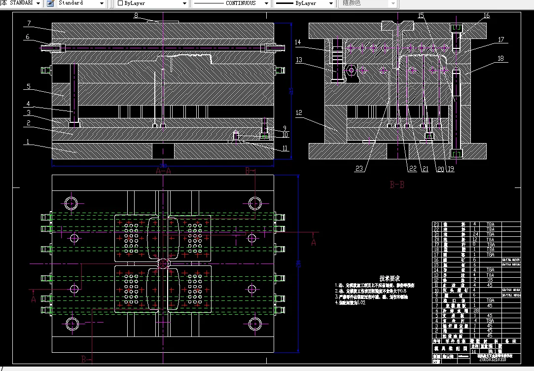
本次毕计业设的题目是:遥控器电池回收盖的塑件注射模。本次设计主要是通过对塑件的形状、尺寸及其精度的要求来进行注射成型工艺的可行性分析。塑件的成型工艺性主要包括塑件的壁厚,斜度和圆角以及是否有抽芯机构。通过以上的分析来确定模具分型面、型腔数目、浇口形式、位置大小;其中最重要的是确定型芯和型腔的结构,例如是采用整体式还是镶拼式,以及它们的定位和固紧方式。此外还分析了模具受力,脱模机构的设计,合模导向机构的设计,冷却系统的设计等。最后绘制完整的模具装配总图和主要的模具零件图及编制成型零部件的制造加工工艺过程卡片。
关键词:分型面、浇口、型腔,型芯,脱摸力,潜伏浇口。
温馨提示:
1、题目前面的备注【字母数字编号】为本站整理分类的编号,与课题内容无关,请选题时忽视;
2、若题目上备注三维,则表示文件里包含三维源文件,由于三维组成零件数量较多,为保证预览截图的简洁性,本站将三维文件夹进行了打包。三维及CAD预览截图,均为本站电脑打开软件进行截图的,保证能够打开,下载原件超高清,下载后解压即可;
3、本站所有资源如无特殊说明,都需要本地电脑安装Office2007。图纸软件为AutoCAD,PROE,UG,SolidWorks,CATIA等;
4、本站所有图文资料仅供用户学习参考,不作为任何商用或其他用途;
5、本站不保证下载资源的准确性、安全性和完整性, 不包修改,不支持退换,同时也不承担用户因使用这些下载资源对自己和他人造成任何形式的伤害或损失;
6、 下载文件中如有侵权或不适当内容,请与我们联系,我们立即纠正。