

作品包括:
Word版说明书一份,32页,约11000字
CAD版本图纸,共8张
目 录
摘 要 1
前 言 - 1 -
1、塑件的工艺分析 2
1.1塑件的成形工艺分析 2
1.1.1塑件零件图 2
1.1.2件材料特性 3
1.2.3塑件材料成形性能 4
1.2、塑件成形工艺参数确定 4
2、模具的基本机构与模架选择 6
2.1、模具的基本结构 6
2.1.1确定成形方法 6
2.1.2型腔布置 6
2.1.3确定分型面 6
2.1.4选择浇注系统 7
2.1.5确定推出方式 8
2.1.6侧向抽芯机构 9
2.1.7选择成形设备 9
2.2 选择模架 10
2.2.1模架结构 10
2.2.2模架安装尺寸校核 10
3、模具结构、尺寸的设计计算 11
3.1模具结构设计计算 11
3.1.1 型腔结构 11
3.1.2 型芯结构 11
3.1.3斜导柱结构 11
3.1.4模具的导向结构 12
3.1.5结构强度计算 13
3.2 模具成形尺寸设计计算 13
3.2.1型腔径向尺寸 13
3.2.2型腔深度尺寸 14
3.2.3型芯径向尺寸 15
3.2.4型芯高度尺寸 15
3.3 模具加热、冷却系统计算 15
3.3.1模具加热 15
3.3.2模具冷却 16
4、 模具主要零件图及加工工艺规程 17
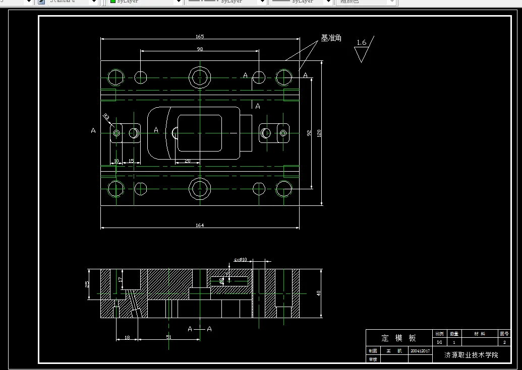
4.1 模具定模板(中间板)零件图及加工工艺规程 17
4.2模具侧滑块零件图及加工工艺规程 18
4.3 模具动模板(型芯固定板)零件图及加工工艺规程 19
5、 模具总装图及模具的装配、试模 20
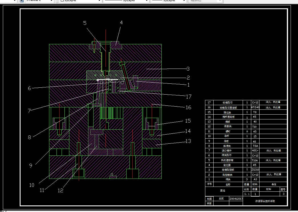
5.1模具总装图及模具的装配 20
5.1.1成形零件及浇注系统 20
5.1.2推出系统零件 21
5.1.3滑块及活动零件 21
5.1.4导向机构 21
5.1.5加热与冷却系统 22
5.1.6模具外观 22
5.2模具的安装试模 22
5.2.1 试模前的准备 22
5.2.2 模具的安装 22
5.2.3试模 23
5.2.4检验 24
结束语 25
致 谢 26
参考文献 26
摘 要
注射成形是现在成形热塑件的主要方法,因此应用范围很广。注射成形是把塑料原料放入料筒中经过加热熔化,使之成为高黏度的流体,用柱塞或螺杆作为加压工具,使熔体通过喷嘴以较高压力注入模具的型腔中,经过冷却、凝固阶段,而后从模具中脱出,成为塑料制品。塑料注射成形工艺的最大特点是复制,能够复制出所需任意数量的可直接使用或稍作处理即可使用的制品,是一种适宜大批量生产的工艺。虽然在设备上投入较大,但是可以生产制品的数量非常大,实属一种经济快捷的生产方式,因此得到广泛的应用和快速的发展
本文针对手机翻盖的结构工艺特点.分析了注射模结构的设计过程,采用热流道系统,提高了塑件表面质量及成型效率.并详细介绍了模具的工作过程。
关键词:注射模;手机翻盖;热流道;工作过程
温馨提示:
1、题目前面的备注【字母数字编号】为本站整理分类的编号,与课题内容无关,请选题时忽视;
2、若题目上备注三维,则表示文件里包含三维源文件,由于三维组成零件数量较多,为保证预览截图的简洁性,本站将三维文件夹进行了打包。三维及CAD预览截图,均为本站电脑打开软件进行截图的,保证能够打开,下载原件超高清,下载后解压即可;
3、本站所有资源如无特殊说明,都需要本地电脑安装Office2007。图纸软件为AutoCAD,PROE,UG,SolidWorks,CATIA等;
4、本站所有图文资料仅供用户学习参考,不作为任何商用或其他用途;
5、本站不保证下载资源的准确性、安全性和完整性, 不包修改,不支持退换,同时也不承担用户因使用这些下载资源对自己和他人造成任何形式的伤害或损失;
6、 下载文件中如有侵权或不适当内容,请与我们联系,我们立即纠正。