

作品包括:
Word版说明书一份,34页,约13000字
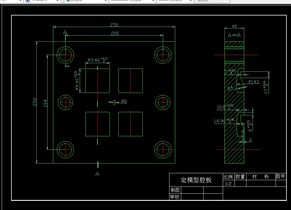
CAD版本图纸,共4张
目录
摘 要 - 4 -
前 言 - 5 -
一、塑件工艺分析 - 6 -
1.1 塑件设计要求 - 6 -
1.2 塑件生产批量要求 - 6 -
1.3 塑件的成型要求 - 6 -
二、塑件的材料选择 - 6 -
2.1 塑料的各种性能特征 - 6 -
2.2 塑件材料的确定 - 8 -
2.3 塑件成形参数确定 - 8 -
三、塑料的收缩率及密度的确定 - 9 -
四、模具种类与模具设计的关系 - 9 -
五、塑件的尺寸精度与结构 - 10 -
六、注射机的选择 - 11 -
七、模具设计的有关计算 - 12 -
7.1 型腔工作尺寸计算 - 12 -
7.2 型芯的工作尺寸计算 - 13 -
7.3 模具中孔中心距计算 - 13 -
八、注塑机参数校核 - 14 -
8.1最大注射量校核 - 14 -
8.2 锁模力校核 - 14 -
8.3 模具与注塑机安装部分相关尺寸校核 - 15 -
8.4 模具闭合高度校核 - 15 -
8.5 开模行程校核 - 15 -
九、模具结构设计 - 15 -
9.1 制品成型位置及分型面的选择 - 15 -
9.2 模具型腔数的确定,型腔的排列和流道布局 - 16 -
9.3 主流道、主流道衬套及定位环的设计 - 17 -
9.4分流道的形状及尺寸 - 19 -
9.5.1浇口位置的选择 - 22 -
9.6导向机构的设计 - 22 -
9.7 推出机构的设计 - 22 -
9.7.1 复位零件的确定 - 23 -
9.7.2 抽芯距的确定 - 24 -
9.8 拉料杆的形式选择 - 24 -
9.9 模具排气槽设计 - 25 -
十、模具冷却、加热系统计算 - 25 -
10.1 冷却回路的尺寸确定 - 25 -
10.1.1冷却回路所需的总面积计算 - 25 -
10.1.2 冷却回路的总长度的计算 - 26 -
10.1.3冷却水体积流量的计算 - 27 -
10.2 模具加热系统 - 27 -
十一、注射模标准件的选用及技术要求 - 28 -
11.1 注射模标准及模架选用 - 28 -
11.2 模架周界尺寸选择 - 28 -
11.3 塑料注射模具技术要求及总装技术要求 - 29 -
11.3.1 零件的技术要求 - 29 -
11.4 总装技术要求 - 29 -
结 论 - 31 -
致 谢 - 32 -
参 考 文 献 - 33 -
摘 要
本次模具设计是“箱体锁扣”的模具图形及加工制造的全过程,其设计思路是根据多个模具加工事例生产事例总结出来。设计内容是从零件的工艺分析开始的,根据工艺要求来确定设计的大体思路。其开始是从零件的材料选择,接下是成型参数、密度、收缩率的确定,模具种类与模具设计的关系、塑件的尺寸精度与结构、注射机的选择、模具设计有关尺寸的计算(包括模具行腔型芯的计算及其公差的确定)、注塑机参数的校核、模具结构设计、模具冷却、加热系统计算、注射模标准件的选用及总装技术要求等内容。
其中模具结构设计是这次设计的主要内容,其内容包含了模具的分型面选择、主流道及分流道的设计与布局,推出机构导向机构等一系列模具的重要零部件的设计加工方法和加工注意要点。这样更有利于加工人员的一线操作,使其通俗易懂加工方便。本次设计不仅让我熟悉了课本所学的知识,而且让我做到所学的运用到实践当中,更让我了解了塑料模具设计的全过程和加工实践的各种要点。使我在本次设计实践当中有一个质的飞跃。
关键词: 塑模 型腔 型芯 尺寸公差
温馨提示:
1、题目前面的备注【字母数字编号】为本站整理分类的编号,与课题内容无关,请选题时忽视;
2、若题目上备注三维,则表示文件里包含三维源文件,由于三维组成零件数量较多,为保证预览截图的简洁性,本站将三维文件夹进行了打包。三维及CAD预览截图,均为本站电脑打开软件进行截图的,保证能够打开,下载原件超高清,下载后解压即可;
3、本站所有资源如无特殊说明,都需要本地电脑安装Office2007。图纸软件为AutoCAD,PROE,UG,SolidWorks,CATIA等;
4、本站所有图文资料仅供用户学习参考,不作为任何商用或其他用途;
5、本站不保证下载资源的准确性、安全性和完整性, 不包修改,不支持退换,同时也不承担用户因使用这些下载资源对自己和他人造成任何形式的伤害或损失;
6、 下载文件中如有侵权或不适当内容,请与我们联系,我们立即纠正。