

作品包括:
Word版说明书一份,35页,约12000字
CAD版本图纸,共5张
目 录
摘 要 3
前 言 4
1 冲压件的工艺分析 5
1.1 工件的工艺分析 5
1.2 工件的加工可能性验证 5
2 模具的基本类型与结构分析 6
2.1 模具基本类型的确定 6
2.2 排样方式的确定 7
2.3 材料利用率的计算 7
2.4 模具结构形式的确定 8
3 模具各工艺力计算及冲裁设备的确定 10
3.1 落料力的计算 10
3.2 卸料力的计算 10
3.3 翻边力的计算 10
3.4 切边力的计算 11
3.5 推件力的计算 11
3.6 总冲裁力的计算 11
3.7 闭模高度的计算 12
3.8 冲裁设备的选择 12
3.9 冲裁功的验算 13
3.10 压力中心的计算 14
4 模具主要工作部分尺寸的计算 15
4.1 落料刃口尺寸计算 15
4.2 切边刃口尺寸计算 16
4.3 翻边的工作部分尺寸计算 17
5 模具零件结构的设计 18
5.1 成形零件 18
5.2 支撑固定零件 23
5.5 卸料及压料零件 25
5.4 紧固件及其他零件 27
5.5 定位零件 28
5.6 模架选择及模具的动作过程 29
5.7 模具总图及明细表 29
结 束 语 30
致 谢 31
参考文献 32
摘 要
工业生产中普遍采用模具成型工艺方法,有效地保证了产品的生产率和质量,使操作技术简化,还能省料、节能,获得显著的经济效益。
由于产品的材料和工艺特性不同,生产用的设备也各异,模具种类繁多,但用的最为广泛的大约有以下几种:冷冲压模、塑料成型模、锻造模、精密铸造模、粉末冶金模、橡胶成型模、玻璃成型模、窑业制品模、食品糖果模、建材用模等。其中以冷冲压模、塑料模的技术要求和复杂程度较高。
据不完全统计,飞机、汽车、拖拉机、电机电器、仪器仪表等产品的零件,有60%左右是用模具加工完成的;自行车、手表、洗衣机、电冰箱、电风扇等轻工业产品,有80%的零件需由模具来制造。至于标准件中的紧固件、轴承、日用五金、餐具、塑料制品、玻璃制品、玻璃器皿、皮胶鞋等的大批量生产,完全靠模具来保证。例如生产海鸥牌照相机,其占总数的92%的零件就需500套模具,又如解放牌汽车改型后约需400套模具,其总重量达2500t。即使一个自动玩具的生产也需要近90套模具。显而易见,模具作为一种专用的工艺装备,在生产中的决定性作用和重要地位越来越被人们所共认。
实践证明,只有依靠先进的科学技术,广泛地采用新技术、新工艺、新材料和新设备,加强科学管理,才能促进生产的持续发展。而要完成上述新课题和新项目就离不开精密、复杂、大型、长寿命模具的及时工艺。
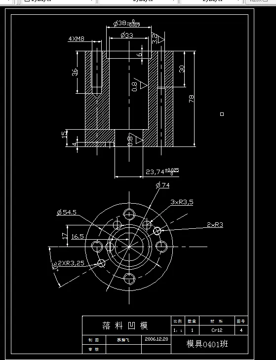
我设计的弯管垫片模具,材料为黄铜H68,厚度t=1.5mm。传统的加工方法为落料、冲孔、翻边、修整。我的加工方法比较特别:由于材料和厚度的原因,我采用的加工方法为:落料、(省去预制孔)直接穿孔、翻孔、再利用翻边凸模与翻边凹模的间隙进行挤切修边。从而完成工件的加工。
关键词:落料、穿孔、翻孔、挤切修边
温馨提示:
1、题目前面的备注【字母数字编号】为本站整理分类的编号,与课题内容无关,请选题时忽视;
2、若题目上备注三维,则表示文件里包含三维源文件,由于三维组成零件数量较多,为保证预览截图的简洁性,本站将三维文件夹进行了打包。三维及CAD预览截图,均为本站电脑打开软件进行截图的,保证能够打开,下载原件超高清,下载后解压即可;
3、本站所有资源如无特殊说明,都需要本地电脑安装Office2007。图纸软件为AutoCAD,PROE,UG,SolidWorks,CATIA等;
4、本站所有图文资料仅供用户学习参考,不作为任何商用或其他用途;
5、本站不保证下载资源的准确性、安全性和完整性, 不包修改,不支持退换,同时也不承担用户因使用这些下载资源对自己和他人造成任何形式的伤害或损失;
6、 下载文件中如有侵权或不适当内容,请与我们联系,我们立即纠正。