

文作品包括:
Word版说明书1份,共46页,约20000字
CAD版本图纸,共11张
充电器外壳注塑模具设计
摘 要
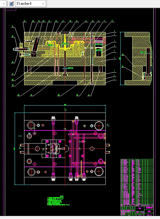
本文主要介绍的是充电器外壳注塑模具的设计方法。首先分析了充电器外壳制件的工艺特点,包括材料性能、成型特性与条件、结构工艺性等,并选择了成型设备。接着介绍了充电器外壳注塑模的分型面的选择、型腔数目的确定及布置,重点介绍了浇注系统、成型零件、合模导向机构、脱模机构、定距分 型机构以及冷却系统的设计。然后选择标准模架和模具材料,并对注射机的工艺参数进行相关校核。最后对模具零件的加工进行了阐述。本文论述的充电器外壳注塑模具采用三板式结构,即浇注系统凝料和制件在不同的分型面脱出,采用一模二腔的型腔布置,最后利用推板将制件推出。
关键词:充电器外壳;注塑模;三板模;浇注系统;脱模机构
目 录
1 绪论 1
2 塑件成型工艺分析 4
2.1 塑件材料选择 4
2.1.1 材料基本特性 4
2.1.2 ABS材料主要用途 4
2.1.3 塑件材料成型特点 5
2.2 关于塑件材料的数据 5
2.3 塑件成型工艺参数的确定 5
2.4 塑件的结构工艺性 6
2.4.1 塑件的尺寸精度分析 6
2.4.2 塑件表面质量分析 7
2.4.3 塑件的结构工艺性分析 7
3 注射机的选择 8
3.1 计算塑件的体积和质量 8
3.2 注塑机的选用 8
3.3 注塑机的校核 9
3.3.1 注射量的校核 9
3.3.2 模具闭合高度的确定 9
3.3.3 模具闭合高度的校核 9
3.3.4 模具合模行程的校核 9
4 型腔布置 10
4.1 型腔数目的确定 10
4.2 型腔的排列 10
5 浇注系统设计 11
5.1 浇注系统的组成及设计原则 11
5.1.1 普通流道的组成及作用 11
5.1.2 普通流道浇注系统设计 11
5.2 流道及浇口设计 12
5.2.1 主流道设计 12
5.2.2 冷料穴与拉料杆设计 12
5.2.3 分流道截面设计 14
5.3 浇口设计 15
6 模架的确定及标准件的选用 17
7 分型面与排气系统的设计 18
7.1 分型面的设计 18
7.1.1 分型面的形式 18
7.1.2 分型面的选择 18
7.2 排气系统的设计 20
8 成型零件的设计 21
8.1 成型零件的结构设计 21
8.1.1 凹模的设计 21
8.1.2 凸模 22
8.1.3 成型零件的钢材选用 22
8.1.4 成型零件工件尺寸的计算 23
8.2 模具型腔侧壁和底板厚度的计算 25
8.2.1 强度条件计算 26
8.2.2 刚度的校核 27
9 合模导向机构设计 29
9.1 导向零件的作用 29
9.2 导向零件的设计原则 29
9.3 导柱的结构、特点及选用 29
9.4 导套和导向孔的结构、特点及用途 30
10 推出机构的设计 31
10.1 推杆的基本概况 31
10.2 脱模力及推杆的尺寸计算及校核 32
10.2.1 脱模力的计算 32
10.2.2 推出零件的校核 33
11 抽芯机构设计 35
11.1 工艺分析 35
11.2 斜导柱分型与抽芯机构的设计 35
11.2.1 斜导柱的形式 35
11.2.2 斜导柱斜角的确定 35
11.2.3 斜导柱的设计 35
11.3 关于斜导柱的计算 35
11.3.1 斜导柱分型的抽拔距 36
11.3.2 斜导柱的直径计算 36
11.4 侧滑块的设计 37
11.5 导滑槽的选取 37
11.6 楔紧块的选取 37
12 温度调节系统的设计 38
12.1 冷却系统的设计准则 38
12.2 冷却系统的设计计算 38
13 零件的加工 41
设计总结 44
致谢 45
参考文献 46
温馨提示:
1、题目前面的备注【字母数字编号】为本站整理分类的编号,与课题内容无关,请选题时忽视;
2、若题目上备注三维,则表示文件里包含三维源文件,由于三维组成零件数量较多,为保证预览截图的简洁性,本站将三维文件夹进行了打包。三维及CAD预览截图,均为本站电脑打开软件进行截图的,保证能够打开,下载原件超高清,下载后解压即可;
3、本站所有资源如无特殊说明,都需要本地电脑安装Office2007。图纸软件为AutoCAD,PROE,UG,SolidWorks,CATIA等;
4、本站所有图文资料仅供用户学习参考,不作为任何商用或其他用途;
5、本站不保证下载资源的准确性、安全性和完整性, 不包修改,不支持退换,同时也不承担用户因使用这些下载资源对自己和他人造成任何形式的伤害或损失;
6、 下载文件中如有侵权或不适当内容,请与我们联系,我们立即纠正。