

作品包括:
Word版说明书1份,共27页,约8700字
CAD版本图纸,共9张
导航仪前盖板注射工艺及其注射模设计
摘要
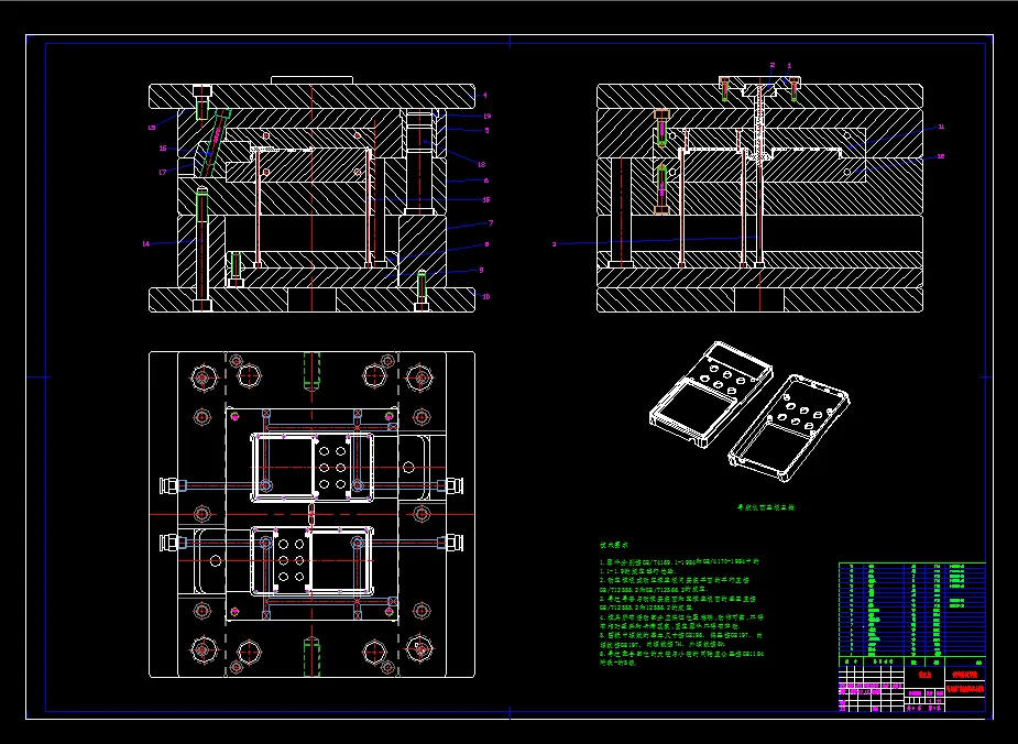
导航仪前盖板属于不透明多孔平面板类塑件,应用 Pro/E绘制了三维造型图。本文在分析塑件结构工艺性的基础上阐述了塑件注射成型工艺以及注射模设计过程,从控制塑件尺寸精度出发,对注射模的各主要尺寸进行了理论计算以确定模具各工作零件的尺寸,采用CAD进行主要零件的设计,制定了模具及主要工作零件的加工工艺以及准备工艺。设计单分型面注射模,采用一模二腔的结构,并对模具浇注系统、导向结构及定位结构、脱模结构、冷却系统等进行了设计。
关键词:导航仪前盖板,塑件,注射模具,一模二腔,浇注系统,脱模结构
目 录
1 绪论 1
2 塑件的工艺分析 3
2.1 塑件材料的选择 3
2.2 塑件结构工艺性分析 4
2.3 初步确定型腔数目 4
3 注射机的选择 6
3.1 塑件体积的计算 6
3.2塑件质量的计算 7
3.3 确定型腔数目 9
3.4注塑机选择 9
4 浇注系统的设计 10
4.1主流道的设计 10
4.2 分流道的设计 12
4.3分型面选择的原则 12
4.3.1分型面的形式 12
4.3.2分型面的设计原则 12
4.4浇口的设计 13
4.5冷料穴的设计 14
5 模具工作零件的设计 15
5.1 型腔、型芯工作尺寸计算 16
5.2 侧抽芯机构设计 17
5.2.1 抽芯距的计算与抽拔力的确定 17
5.2.2 斜导柱分型抽芯机构的设计 17
6模架的选择 18
7 导向机构的设计 19
7.1导柱的设计 19
7.2导套的结构设计 19
7.3推出机构的设计 19
7.3.1推件力的计算 20
7.3.2 推杆的设计 20
8 冷却系统的设计 21
8.1 确定冷却水道直径 22
8.2模具排气槽的设计 22
9 注射机校核 24
9.1注射机锁模力的校核 24
9.2模具厚度H与注射机闭合高度 24
结 论 25
致 谢 26
参考文献 27
温馨提示:
1、题目前面的备注【字母数字编号】为本站整理分类的编号,与课题内容无关,请选题时忽视;
2、若题目上备注三维,则表示文件里包含三维源文件,由于三维组成零件数量较多,为保证预览截图的简洁性,本站将三维文件夹进行了打包。三维及CAD预览截图,均为本站电脑打开软件进行截图的,保证能够打开,下载原件超高清,下载后解压即可;
3、本站所有资源如无特殊说明,都需要本地电脑安装Office2007。图纸软件为AutoCAD,PROE,UG,SolidWorks,CATIA等;
4、本站所有图文资料仅供用户学习参考,不作为任何商用或其他用途;
5、本站不保证下载资源的准确性、安全性和完整性, 不包修改,不支持退换,同时也不承担用户因使用这些下载资源对自己和他人造成任何形式的伤害或损失;
6、 下载文件中如有侵权或不适当内容,请与我们联系,我们立即纠正。