

作品包括:
Word版说明书1份,共22页,约4000字
开题报告一份
CAD版本图纸,共6张
摘 要
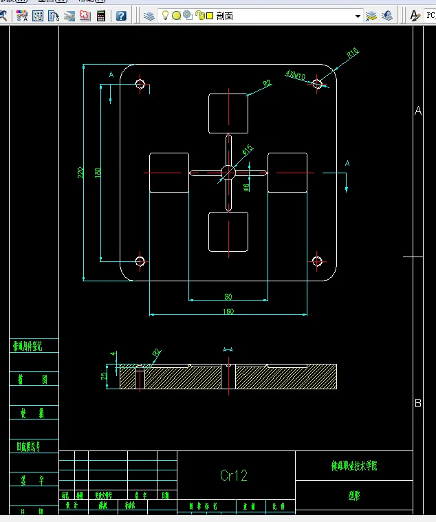
本文是关于注塑模具的设计板凳脚套。因为在平时的观察,我发现家具一般有这些板凳脚套,但形状不一样,所以我根据这一点,我将要设计的注塑模具是设计板凳脚套。设计过程是基于一般的模具的设计过程中,使用注塑模具设计的基本知识。分析零件的大小、形状,确定流程计划。然后模具设计、主要结构、零件、注塑设备选择和画图纸。板凳脚套的形状相对简单,所以模具的设计在结构方面相对比较简单,和产品适合大规模的生产。
关键词:模架;注塑;材料
目 录
前 言 1
1 塑件的工艺分析 2
1.1 塑料件成型工艺 2
1.1.1 板凳脚套孔塞零件图 2
1.1.2 塑件外形尺寸 2
1.1.3 脱模斜度 2
1.2 塑料工艺性 3
1.3 塑件的结构工艺性 3
1.3.1 塑件的结构分析 3
1.3.2 塑件的尺寸精度分析 3
1.3.3 塑件表面质量分析 3
2 拟定模具的结构形式 4
2.1 分型面设计 4
2.2 型腔数量的确定 4
此次要做的塑件是板凳脚套, 4
3 注射机的选择与校证 5
3.1 零件体积和质量的计算 5
3.2 注塑机的选择 5
3.3 注射压力校核 5
4 浇注系统设计 6
4.1如何设计浇注系统 6
4.2浇口 位置的 选取 6
5 模架型腔与型芯的设计 8
5.1 模架的选择 8
5.2 型腔的结构设计 8
5.3 型芯的结构设计 9
6 顶出机构的设计 10
7 冷却系统设计 11
8 导向系统设计 12
9 模具制图 13
总 结 14
致 谢 14
参考文献 16
温馨提示:
1、题目前面的备注【字母数字编号】为本站整理分类的编号,与课题内容无关,请选题时忽视;
2、若题目上备注三维,则表示文件里包含三维源文件,由于三维组成零件数量较多,为保证预览截图的简洁性,本站将三维文件夹进行了打包。三维及CAD预览截图,均为本站电脑打开软件进行截图的,保证能够打开,下载原件超高清,下载后解压即可;
3、本站所有资源如无特殊说明,都需要本地电脑安装Office2007。图纸软件为AutoCAD,PROE,UG,SolidWorks,CATIA等;
4、本站所有图文资料仅供用户学习参考,不作为任何商用或其他用途;
5、本站不保证下载资源的准确性、安全性和完整性, 不包修改,不支持退换,同时也不承担用户因使用这些下载资源对自己和他人造成任何形式的伤害或损失;
6、 下载文件中如有侵权或不适当内容,请与我们联系,我们立即纠正。