

作品包括:
Word版说明书1份,共29页,约5800字
开题报告一份
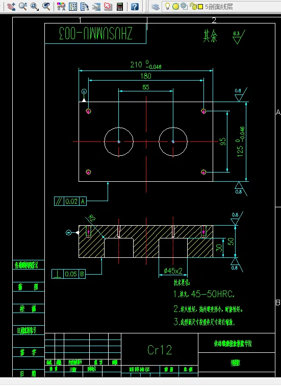
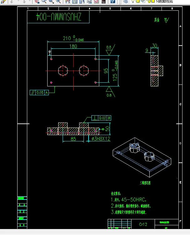
CAD版本图纸,共4张
UG三维图一份
摘 要
本次设计主要研究的是月饼模注塑模设计。首先对月饼模的工艺性进行分析,其中包括材料的选定和性能、脱模斜度的设计、塑件的结构工艺性等,接着运用CAD、UG两种软件介绍了月饼模注塑模具型腔的数目及分布、分型面的选择。之后是通过对型芯、型腔的尺寸计算,而推算出A/B板的尺寸,并结合型腔的分布方式确定合理出模架的类型及方案。最后文章介绍的是如何结合模架的类型对浇注系统、推出机构及冷却系统进行设计。
关键词:月饼模;注塑模;分析型面;浇注系统
目 录
前 言 1
1塑件的成型工艺性分析 2
1.1 塑件分析 2
1.1.1 塑件几何形状 2
1.1.2 塑料的选择和工艺特性 2
1.2塑料制作的结构工艺性 3
1.2.1 脱模斜度的设计 3
1.2.2塑件的结构设计 3
1.2.3塑件的表面质量分析 4
2 模具结构方案与计算 5
2.1 型体的数目及分布 5
2.2 分型面的选择 5
2.3 型芯、型腔的尺寸计算 6
2.3.1型腔尺寸计算 6
2.3.2型芯尺寸计算 6
2.4 A∕B板各尺寸的确定 7
2.5 选择标准模架 8
3浇注系统的确定 10
3.1浇口设计 10
3.2主流道设计 11
3.3分流道设计 12
3.3.1分流道形式及截面形状的选定 12
3.3.2分流道尺寸和长度 13
3.4注塑系统标准件的选用 13
3.4.1浇口套的选用 13
3.4.2定位圈的选用 14
3.5运用Moldfolw对注塑系统成型分析 15
4 成型零件结构设计 17
4.1脱模系统设计 17
4.1.1推出机构设计原则 17
4.1.2推杆的设计 17
4.2温度调节系统设计 18
总结 20
致 谢 21
附录 22
参考文献 23
温馨提示:
1、题目前面的备注【字母数字编号】为本站整理分类的编号,与课题内容无关,请选题时忽视;
2、若题目上备注三维,则表示文件里包含三维源文件,由于三维组成零件数量较多,为保证预览截图的简洁性,本站将三维文件夹进行了打包。三维及CAD预览截图,均为本站电脑打开软件进行截图的,保证能够打开,下载原件超高清,下载后解压即可;
3、本站所有资源如无特殊说明,都需要本地电脑安装Office2007。图纸软件为AutoCAD,PROE,UG,SolidWorks,CATIA等;
4、本站所有图文资料仅供用户学习参考,不作为任何商用或其他用途;
5、本站不保证下载资源的准确性、安全性和完整性, 不包修改,不支持退换,同时也不承担用户因使用这些下载资源对自己和他人造成任何形式的伤害或损失;
6、 下载文件中如有侵权或不适当内容,请与我们联系,我们立即纠正。