

作品包括:
Word版说明书1份,共25页,约4600字
开题报告一份
CAD版本图纸,共4张
UG三维图一份
摘 要
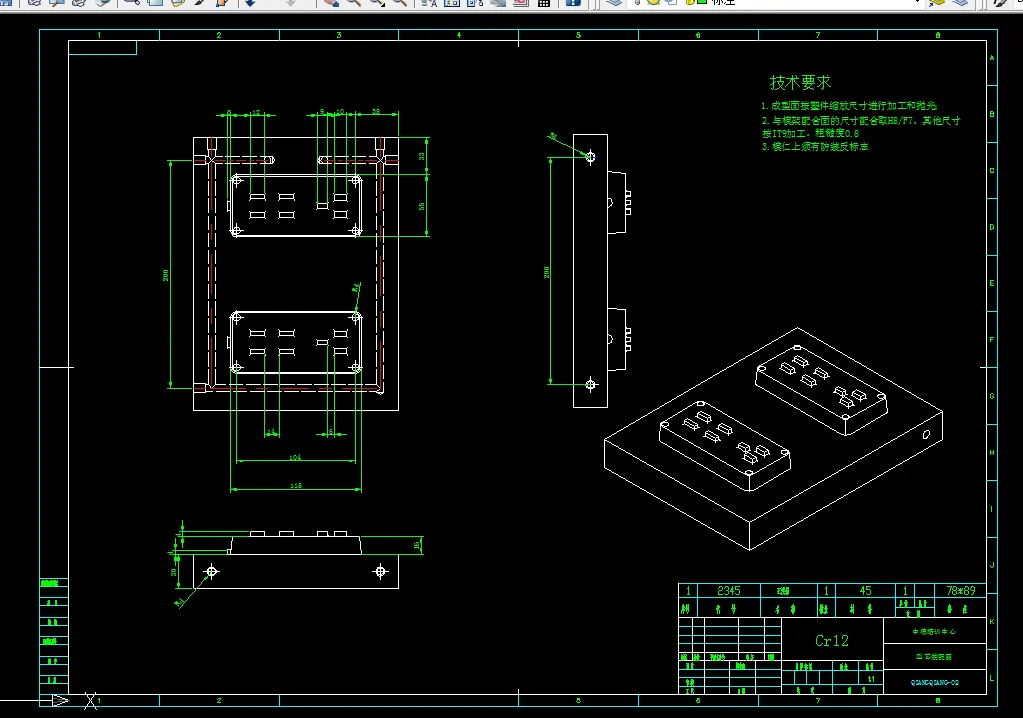
本设计是注塑模具的设计。需要设计浇注系统,浇注系统,冷却系统等,分型面选在最大的横截面,塑料成型产品放上工作,使用复位杆复位时返回。
设计需要计算塑件的尺寸,确定尺寸精度,然后注射机的选择。检查注塑机参数,包括厚度,模具安装尺寸,模具开模行程等参数,所有符合要求的确定注射机的类型。在设计过程中,插入了模具结构和模具的局部图,还有通过CAD等软件绘制的二维图。
关键词:塑件,浇注系统,模具尺寸,冷却系统
目 录
前 言 1
1 塑件分析 2
2 成型分析 3
2.1 分型面的确定 3
2.2 塑件体积与质量 3
2.3 模具方案的确定 4
3 模具结构设计与尺寸计算 6
3.1 结构设计 6
3.1.1 模仁结构设计 6
3.1.2 开闭器设计 6
3.1.3 小拉杆设计 6
3.2 模具尺寸 7
3.2.1 动定模板尺寸 7
3.2.2 模脚尺寸 7
3.2.3 定位圈尺寸 8
4 冷却系统设计 9
4.1 水路 10
4.2 水路选取 10
5.1 主流道 11
5.2 分流道 11
5.3 浇口 11
5.4 冷料穴 12
6 排气方式 13
7 注塑机的选择 14
7.1 注射工艺成型参数 14
7.2 选定注射机 14
7.3 开模行程 15
总 结 16
附录 17
致 谢 18
参考文献 19
温馨提示:
1、题目前面的备注【字母数字编号】为本站整理分类的编号,与课题内容无关,请选题时忽视;
2、若题目上备注三维,则表示文件里包含三维源文件,由于三维组成零件数量较多,为保证预览截图的简洁性,本站将三维文件夹进行了打包。三维及CAD预览截图,均为本站电脑打开软件进行截图的,保证能够打开,下载原件超高清,下载后解压即可;
3、本站所有资源如无特殊说明,都需要本地电脑安装Office2007。图纸软件为AutoCAD,PROE,UG,SolidWorks,CATIA等;
4、本站所有图文资料仅供用户学习参考,不作为任何商用或其他用途;
5、本站不保证下载资源的准确性、安全性和完整性, 不包修改,不支持退换,同时也不承担用户因使用这些下载资源对自己和他人造成任何形式的伤害或损失;
6、 下载文件中如有侵权或不适当内容,请与我们联系,我们立即纠正。