

作品包括:
Word版说明书1份,共21页,约3200字
开题报告一份
CAD版本图纸,共6张
UG三维图一份
摘 要
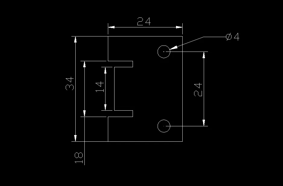
本文的题目为接地片零件的冲压模具设计,是用冷冲模来做的,用我们两学年多所学的专业知识、技能结合的毕业设计分析。这个零件采用级进模来生产,零件所需要的工序比较多,且该零件需要大量生产。其中内容包含:零件排样图、成型分析、材料利用率、模具的装配图、压力机的选择等等。
关键词:排样;级进模;成型分型
目 录
前 言 1
1冲压模具简介 2
1.1 冲压模具 2
1.2冲压模具分类 2
1.3冲压模具结构 2
2冲压件工艺分析 3
2.1零件图 3
2.2材料 3
2.3尺寸 3
3确定加工工艺 3
3.1加工顺序 4
3.2冲裁间隙 5
3.3搭边值 6
3.4材料利用率 6
4压力计算与压力机的选择 8
4.1压力计算 8
4.2压力机选择 8
5模具结构设计 10
5.1凹凸模的分析 10
5.2 模板 10
5.2.1凸模板 10
5.2.2凹模板 11
5.2.3上垫板 11
5.2.4下垫板 11
5.3卸料装置和导料装置 12
5.4侧压 12
5.5模架简图 12
结论 13
致谢 14
参考文献 15
温馨提示:
1、题目前面的备注【字母数字编号】为本站整理分类的编号,与课题内容无关,请选题时忽视;
2、若题目上备注三维,则表示文件里包含三维源文件,由于三维组成零件数量较多,为保证预览截图的简洁性,本站将三维文件夹进行了打包。三维及CAD预览截图,均为本站电脑打开软件进行截图的,保证能够打开,下载原件超高清,下载后解压即可;
3、本站所有资源如无特殊说明,都需要本地电脑安装Office2007。图纸软件为AutoCAD,PROE,UG,SolidWorks,CATIA等;
4、本站所有图文资料仅供用户学习参考,不作为任何商用或其他用途;
5、本站不保证下载资源的准确性、安全性和完整性, 不包修改,不支持退换,同时也不承担用户因使用这些下载资源对自己和他人造成任何形式的伤害或损失;
6、 下载文件中如有侵权或不适当内容,请与我们联系,我们立即纠正。